| 物件コード | 00050-101041 | ||
|---|---|---|---|
| 物件名 | 丸越ビル(四谷3丁目) | ||
| 交通 | 駅:越後線 東柏崎駅から徒歩13分、バス:中央通長浜から徒歩3分 | ||
| 所在地 | 新潟県柏崎市四谷3-5-33 | ||
| 物件種別 | 事務所 | ||
| 総戸数 | - | ||
| 構造 | 鉄骨 | 階建 | 地上2階建 |
| 所在階/階数 | 2階/2階 | 号室 | A号室 |
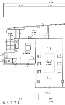
| 面積 | 67.85㎡ (20.52坪) | 方位 | - |
| 間取り |
|
||
| 賃料 | 11万円/月
消費税込み |
管理費 | - |
| 礼金 | -
|
敷金 | 1ヶ月
|
| ほか初期費用 | - | その他諸費用 | - |
| 更新料 | - | 火災(家財)保険 | 9,000円~/月 |
| 共益費 | - | 町内費 | 別途 |
| 駐車場 |
5,000円
4台駐車可能(5,000円/台) |
バイク料金 | - |
| 鍵交換費 |
27,500円
別途相談 |
清掃料 | - |
| 更新事務手数料 | - | ||
| 保証区分 |
保証会社+緊急連絡先 |
||
| 保証会社 |
区分:加入要 保証会社名:CIZ 初回保証料77%+審査事務手数料1,100円+振込手数料330円。更新料2,000円/年 |
||
| 家賃保証金 |
82,280円
駐車場使用台数により保証金変動いたします。 |
||
| 連帯保証人 |
区分:不要 - |
||
| 仲介手数料 |
88,000円
|
||
| 築年月 | 不詳 | ||
| 利用制限 | 法人:可、ペット:不可、事務所利用:可 | ||
| 学校区 | 比角小学校(431m)・第二中学校(469m) | ||
| 設備 | 2階以上、光ファイバー、エアコン、即引き渡し可、給湯、駐車場あり | ||
| 入居時期 | 即入居可 | ||
| 取引態様 | 仲介 | ||
| 備考 | - | ||
| 手数料負担割合/配分割合 | 貸主:-% 借主:-% / 元付:-% 客付:-% | ||
| 情報登録日 | 2025/10/20 | 次回更新予定日 | 2026/04/19 |
|
|
|
|
|
| TEL: | 0257-22-3357 |
|---|---|
| 所在地: | 新潟県柏崎市横山440番地1 |
| 交通: | 柏崎駅 |
| 営業時間: | 9:00~17:30/定休日:日曜・祭日 |
| 免許番号: | 新潟県知事(14)第1377号 |
| 所属団体名: | 新潟県宅地建物取引業協会 柏崎支部 |
| 取引態様: | 仲介 |