| 物件コード | 00040-100985 | ||
|---|---|---|---|
| 物件名 | Campbel town | ||
| 交通 | 駅:信越線 北長岡駅から徒歩18分、バス:新保1丁目から徒歩3分 | ||
| 所在地 | 新潟県長岡市永田2丁目5-4 | ||
| 物件種別 | アパート・マンション・一戸建て | ||
| 総戸数 | - | ||
| 構造 | 木造 | 階建 | 地上2階建 |
| 所在階/階数 | 2階/2階 | 号室 | B号室 |
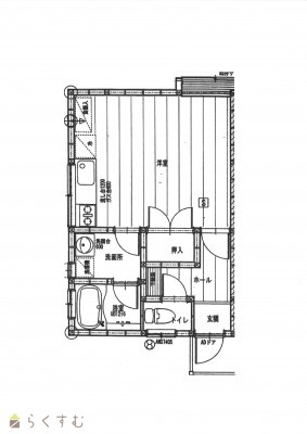
| 面積 | 26.08㎡ (7.88坪) | 方位 | 南 |
| 間取り | 1R (洋室:8)
|
||
| 賃料 | 4万円/月
|
管理費 | - |
| 礼金 | -
|
敷金 | 1ヶ月
|
| ほか初期費用 | - | その他諸費用 | - |
| 更新料 | - | 火災(家財)保険 | 2年 15,000円 |
| 共益費 | - | 町内費 | 月額550円(年払い) |
| 駐車場 | 1台無料 | バイク料金 | - |
| 鍵交換費 | - | 清掃料 | - |
| 更新事務手数料 | - | ||
| 保証区分 |
連帯保証人+保証会社 |
||
| 保証会社 |
区分:加入要 保証会社名:日本インシュア - |
||
| 家賃保証金 |
32,000円
|
||
| 連帯保証人 |
区分:要 - |
||
| 仲介手数料 |
44,000円
|
||
| 築年月 | 1994年7月(築31年) | ||
| 利用制限 | 法人:可、学生:可、単身者:可、ペット:不可、楽器:不可、事務所利用:不可 | ||
| 学校区 | 栖吉小学校(3,170m)・栖吉中学校(3,311m) | ||
| 設備 | バス停近く、日当り良好、最上階、駐車場1台無料、南向き、角住居、システムキッチン、2口コンロ、バストイレ別、浴室乾燥機、暖房便座、洗面所独立、エアコン、LPG、全居室フローリング、洗濯機置場 室内、脱衣所、クロゼット、即入居可 | ||
| 入居時期 | 即入居可 | ||
| 取引態様 | 仲介 | ||
| 備考 | 浴室乾燥機付き | ||
| 手数料負担割合/配分割合 | 貸主:0% 借主:100% / 元付:0% 客付:-% | ||
| 情報登録日 | 2026/03/04 | 次回更新予定日 | 2026/05/22 |
|
|
|
|
|
|
| TEL: | 0120-1818-27 |
|---|---|
| 所在地: | 新潟県長岡市千歳1-3-25 |
| 交通: | 長岡駅 |
| 営業時間: | 8時30分~17時30分(大手支店は9時~18時)/定休日:本社:土日祝日(事前予約での対応可能)、支店:日曜祝日第5土曜(毎年2月下旬から3月は休みなし) |
| 免許番号: | 新潟県知事(17)第191号 |
| 所属団体名: | 新潟県宅地建物取引協会 長岡支部 |
| 取引態様: | 仲介 |