| ご見学のお申込み、またはご不明な点がある場合は、お問い合わせフォームよりお気軽にご相談ください♪お電話でもかまいません。 | |||
| 物件コード | 00030-101053 | ||
|---|---|---|---|
| 物件名 | ホテルニューオータニ長岡 テナントフロア | ||
| 交通 | 駅:上越新幹線 長岡駅から徒歩1分 | ||
| 所在地 | 新潟県長岡市台町2丁目8-35 | ||
| 物件種別 | 事務所 | ||
| 総戸数 | - | ||
| 構造 | 鉄骨鉄筋コン | 階建 | 地上12階地下1階建 |
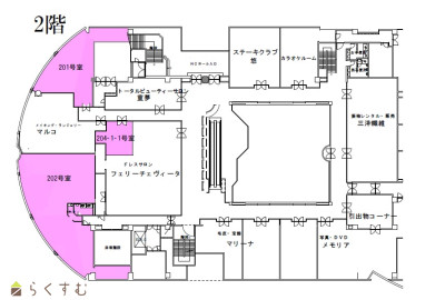
| 所在階/階数 | 2階/12階 | 号室 | 202号室 |
| 面積 | 255.22㎡ (77.2坪) | 方位 | - |
| 間取り |
|
||
| 賃料 | 46.32万円/月
|
管理費 | - |
| 礼金 | -
|
敷金 | 10ヶ月
(家賃・共益費10カ月分) |
| ほか初期費用 | - | その他諸費用 | 敷金・保証金として 家賃+共益費の10ヶ月分が必要となります。 |
| 更新料 | - | 火災(家財)保険 | 別途加入 |
| 共益費 |
386,000円
|
町内費 | - |
| 駐車場 | - | バイク料金 | - |
| 鍵交換費 | - | 清掃料 | - |
| 更新事務手数料 | - | ||
| 保証区分 |
連帯保証人のみ |
||
| 保証会社 |
区分:指定なし - |
||
| 連帯保証人 |
区分:要 - |
||
| 仲介手数料 |
463,200円
|
||
| 築年月 | 1978年11月(築47年) | ||
| 利用制限 | 法人:可、事務所利用:可 | ||
| 学校区 | 阪之上小学校(164m)・南中学校(1,024m) | ||
| 設備 | 2階以上、エアコン、即引き渡し可、エレベーター | ||
| 入居時期 | 即入居可 | ||
| 取引態様 | 仲介 | ||
| 備考 | 機械警備、有人警備、エレベーター、エスカレーター、男女トイレ別 空調:個別 光ケーブル:引込可 ※条件面等につきましては、お気軽にご相談ください。 |
||
| 手数料負担割合/配分割合 | 貸主:-% 借主:-% / 元付:-% 客付:-% | ||
| 情報登録日 | 2024/08/21 | 次回更新予定日 | 2026/05/01 |
|
|
|
|
| TEL: | 0258-46-8777 |
|---|---|
| 所在地: | 新潟県長岡市南七日町89-21 |
| 交通: | バス停「南七日町」徒歩3分 |
| 営業時間: | 9:00~18:00/定休日:日曜・祭日 |
| 免許番号: | 新潟県知事(10)2876号 |
| 所属団体名: | 新潟県宅地建物取引業協会 長岡支部 |
| 取引態様: | 仲介 |