| 物件コード | 00004-100518 | ||
|---|---|---|---|
| 物件名 | 第1コーポ関原 | ||
| 交通 | 駅:上越新幹線 長岡駅から徒歩98分、バス:関原南から徒歩7分 | ||
| 所在地 | 新潟県長岡市関原南2丁目4237 | ||
| 物件種別 | アパート・マンション・一戸建て | ||
| 総戸数 | - | ||
| 構造 | 木造 | 階建 | 地上2階建 |
| 所在階/階数 | 2階/2階 | 号室 | 3号室 |
| 面積 | 40.57㎡ (12.27坪) | 方位 | 指定なし |
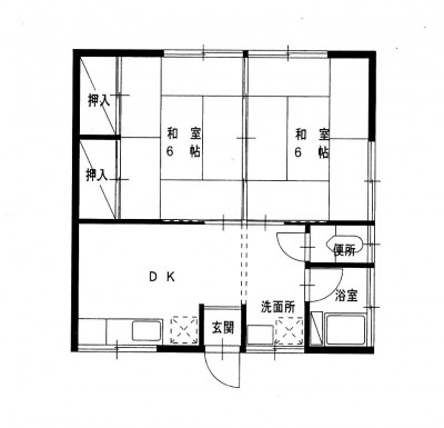
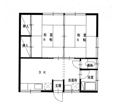
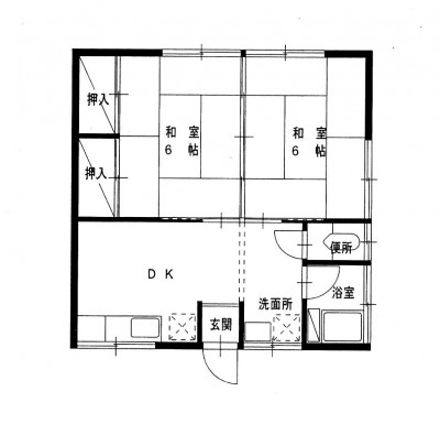
| 間取り | 2DK (和室:6畳、6畳)
|
||
| 賃料 | 3.8万円/月
|
管理費 | - |
| 礼金 | -
|
敷金 | - |
| ほか初期費用 | - | その他諸費用 | - |
| 更新料 | - | 火災(家財)保険 | 要加入 |
| 共益費 | - | 町内費 | 実費 |
| 駐車場 |
付無料 |
バイク料金 | - |
| 鍵交換費 |
17,600円
|
清掃料 | - |
| 更新事務手数料 | - | ||
| 保証区分 |
保証会社+緊急連絡先 |
||
| 保証会社 |
区分:加入要 保証会社名:ジェイリース ①Jフラット 初回保証料 月額の総賃料70%、継続保証料 月額1,200円 ②学生プラン 初回保証料 一律 2万円、継続保証料 月額1,000円 ③留学生 連帯保証人 学校、敷金 4万円 |
||
| 家賃保証金 |
26,600円
|
||
| 連帯保証人 |
区分:不要 - |
||
| 仲介手数料 |
41,800円
|
||
| 築年月 | 1978年3月(築48年) | ||
| 利用制限 | 二人入居:可、ペット:不可、楽器:不可 | ||
| 学校区 | 関原小学校(719m)・関原中学校(195m) | ||
| 設備 | 閑静な住宅街、最上階、駐車場1台無料、角住居、バストイレ別、温水洗浄便座、洗面所独立、都市ガス、洗濯機置場 室内、押入、各居室照明、即入居可、保証会社利用可能、礼金不要、敷金・礼金不要、保証会社要加入 | ||
| 入居時期 | 即入居可 | ||
| 取引態様 | 仲介 | ||
| 備考 | シャワーは釜タイプになります。写真は参考写真になります。 | ||
| 手数料負担割合/配分割合 | 貸主:0% 借主:100% / 元付:50% 客付:50% | ||
| 情報登録日 | 2025/11/21 | 次回更新予定日 | 2026/04/20 |
|
|
|
|
|
|
| TEL: | 0258-28-1414 |
|---|---|
| 所在地: | 新潟県長岡市三ツ郷屋2丁目5-23 |
| 交通: | 西長岡案内所バス停徒歩2分 |
| 営業時間: | 平日9時~18時・土曜日10時~15時(3月休みなし)/定休日:日曜、祝祭日、年末年始(12/27~1/4) |
| 免許番号: | 新潟県知事(14)1645号 |
| 所属団体名: | 新潟県宅地建物取引業協会 長岡支部 |
| 取引態様: | 仲介 |