1
ホーム
>
学校選択
> 物件一覧
柏崎不動産マーケット情報
比角小学校区
の
事務所
物件情報
9件
該当しました。
表示切替:
一覧表示
/
地図表示
並び替え:
家賃が安い順
家賃が高い順
築年数が新しい順
新着順
画像
物件名
所在地
取扱店
面積
間取り
所在階
賃料
管理費等
共益費
敷金
保証金
礼金
8号線沿いで立地好し、仲介手数料なし!
Mビル
202号室
新潟県柏崎市日吉町9-20Mビル202
(事務所)
有限会社イッケン
面積:
26.14㎡
(7.9坪)
間取り:
-
2階
5.5
万円
なし
なし
なし
なし
1ヶ月
三和ビル
201号室
新潟県柏崎市三和町3-40三和ビル201
(事務所)
株式会社 ai-will
面積:
41㎡
(12.4坪)
間取り:
-
2階
5.94
万円
なし
あり
2ヶ月
なし
なし
3階事務所
新栄ビル 3階事務所
302号室
新潟県柏崎市北半田2丁目1-14新栄ビル302号室
(事務所)
株式会社 ai-will
面積:
42.74㎡
(12.92坪)
間取り:
-
3階
6.5
万円
なし
なし
1ヶ月
なし
なし
3階事務所
新栄ビル 3階事務所
301号室
新潟県柏崎市北半田2丁目1-14新栄ビル
(事務所)
株式会社 ai-will
面積:
47㎡
(14.21坪)
間取り:
-
3階
7
万円
なし
なし
1ヶ月
なし
なし
駐車スペース有り、国道8号線に近いです。
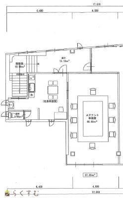
柏崎市 松美 貸事務所・倉庫
新潟県柏崎市松美2丁目5番5号
(事務所)
株式会社裕建
面積:
87.46㎡
(26.45坪)
間取り:
-
3階
8
万円
なし
なし
2ヶ月
なし
2ヶ月
1階はテナント、2階は居住スペースの便利なテナント物件!国道8号線近くアクセスも良し!
オフィスナガハマ(長浜町)
102号室
新潟県柏崎市長浜町6番33号
(事務所)
八幡開発株式会社
面積:
78.02㎡
(23.6坪)
間取り:
-
-
8.32
万円
なし
なし
1.1ヶ月
なし
なし
柏崎中心地で事務所をお探しの方におすすめ!全面改築!
丸越ビル(四谷3丁目)
A号室
新潟県柏崎市四谷3-5-33
(事務所)
八幡開発株式会社
面積:
67.85㎡
(20.52坪)
間取り:
-
2階
11
万円
なし
なし
1ヶ月
なし
なし
柏崎インターより車で直進約4分
日吉ビル
新潟県柏崎市日吉町3-13
(事務所)
大和運送建設株式会社
面積:
110㎡
(33.27坪)
間取り:
-
2階
18.15
万円
なし
なし
16.5万円
なし
18.15万円
1階店舗、中2階事務所・車庫・倉庫付き
新栄ビル 1階店舗、中2階事務所・車庫・倉庫付き
101号室
新潟県柏崎市北半田2丁目1-14新栄ビル
(事務所)
株式会社 ai-will
面積:
271.43㎡
(82.1坪)
間取り:
-
1.2階
28
万円
なし
なし
1ヶ月
なし
なし
表示切替:
一覧表示
/
地図表示
並び替え:
家賃が安い順
家賃が高い順
築年数が新しい順
新着順
9件
該当しました。
基本条件・こだわり条件で絞り込む
0件
がマッチ
基本条件
賃料
下限なし
0.5万円
1.0万円
1.5万円
2.0万円
2.5万円
3.0万円
3.5万円
4.0万円
4.5万円
5.0万円
5.5万円
6.0万円
6.5万円
7.0万円
7.5万円
8.0万円
8.5万円
9.0万円
9.5万円
10万円
11万円
12万円
13万円
14万円
15万円
16万円
17万円
18万円
19万円
20万円
30万円
40万円
50万円
100万円
~
上限なし
0.5万円
1.0万円
1.5万円
2.0万円
2.5万円
3.0万円
3.5万円
4.0万円
4.5万円
5.0万円
5.5万円
6.0万円
6.5万円
7.0万円
7.5万円
8.0万円
8.5万円
9.0万円
9.5万円
10万円
11万円
12万円
13万円
14万円
15万円
16万円
17万円
18万円
19万円
20万円
30万円
40万円
50万円
100万円
管理費を含む
礼金なし
敷金なし
間取り
1K
1DK
1LDK
2DK
2LDK
3DK
3LDK
4DK
4LDK以上
所在階
指定なし
1階
2階
3階
4階
5階以上
面積
下限なし
20㎡
30㎡
40㎡
50㎡
60㎡
70㎡
80㎡
90㎡
100㎡
~
上限なし
20㎡
30㎡
40㎡
50㎡
60㎡
70㎡
80㎡
90㎡
100㎡
築年数
指定なし
新築
3年以内
5年以内
10年以内
15年以内
20年以内
おすすめ条件
二人入居可・相談
シニア(60歳以上)入居可・相談
ペット可・相談
事務所利用可・相談
ルームシェア可・相談
情報公開日
指定なし
本日
3日以内
1週間以内
1ヶ月以内
0件
がマッチ
人気のあるこだわり条件
1階(1)
最上階(4)
2階以上(5)
光ファイバー(1)
エアコン(4)
男女トイレ別(3)
即引き渡し可(1)
給湯(2)
駐車場あり(8)
条件に合った物件数は、
0 件
です。
立地・環境
1階(1)
最上階(4)
2階以上(5)
設備
光ファイバー(1)
エアコン(4)
男女トイレ別(3)
入居・費用・引渡・条件
即引き渡し可(1)
その他
給湯(2)
駐車場あり(8)
条件に合った物件数は、
0 件
です。
条件に合った物件数は、
0 件
です。
基本条件
物件種別
事務所
賃料
下限なし
0.5万円
1.0万円
1.5万円
2.0万円
2.5万円
3.0万円
3.5万円
4.0万円
4.5万円
5.0万円
5.5万円
6.0万円
6.5万円
7.0万円
7.5万円
8.0万円
8.5万円
9.0万円
9.5万円
10万円
11万円
12万円
13万円
14万円
15万円
16万円
17万円
18万円
19万円
20万円
30万円
40万円
50万円
100万円
~
上限なし
0.5万円
1.0万円
1.5万円
2.0万円
2.5万円
3.0万円
3.5万円
4.0万円
4.5万円
5.0万円
5.5万円
6.0万円
6.5万円
7.0万円
7.5万円
8.0万円
8.5万円
9.0万円
9.5万円
10万円
11万円
12万円
13万円
14万円
15万円
16万円
17万円
18万円
19万円
20万円
30万円
40万円
50万円
100万円
管理費を含む
礼金なし
敷金なし
間取り
1K
1DK
1LDK
2DK
2LDK
3DK
3LDK
4DK
4LDK以上
面積
下限なし
20㎡
30㎡
40㎡
50㎡
60㎡
70㎡
80㎡
90㎡
100㎡
~
上限なし
20㎡
30㎡
40㎡
50㎡
60㎡
70㎡
80㎡
90㎡
100㎡
築年数
指定なし
新築
3年以内
5年以内
10年以内
15年以内
20年以内
おすすめ条件
二人入居可・相談
シニア(60歳以上)入居可・相談
ペット可・相談
事務所利用可・相談
ルームシェア可・相談
情報公開日
指定なし
本日
3日以内
1週間以内
1ヶ月以内
こだわり条件
立地・環境
1階(1)
最上階(4)
2階以上(5)
設備
光ファイバー(1)
エアコン(4)
男女トイレ別(3)
入居・費用・引渡・条件
即引き渡し可(1)
その他
給湯(2)
駐車場あり(8)
条件に合った物件数は、
0 件
です。