













| 物件名 所在地 | 面積 間取り 所在階 | 築年数 方位 | 賃料 管理費等 共益費 | 敷金 保証金 礼金 | 種別 構造 | 
|---|---|---|---|---|---|
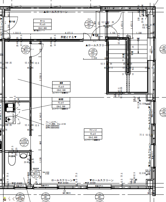
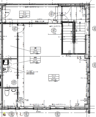
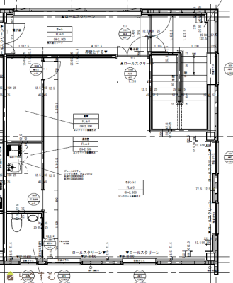
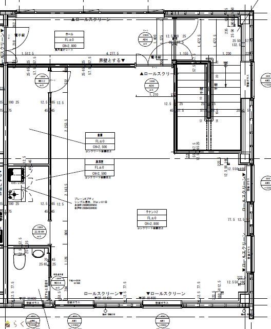
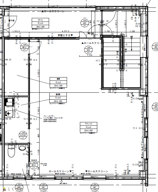
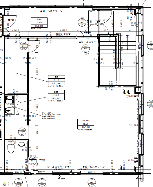
| EBPスクエア 201号室 新潟県三条市東裏館2丁目16-15 | 62.47㎡ (18.89坪) - - | 1年 - | 15.5万円 なし なし | 28万円 なし 14万円 | 事務所 鉄筋コン | 
 
							
						| 物件コード | 00325-100010 | ||
|---|---|---|---|
| 物件名 | EBPスクエア | ||
| 交通 | 駅:弥彦線 北三条駅から徒歩12分 | ||
| 所在地 | 新潟県三条市東裏館2丁目16-15 | ||
| 物件種別 | 事務所 | ||
| 総戸数 | - | ||
| 構造 | 鉄筋コン | 階建 | 地上2階建 | 
| 所在階/階数 | - | 号室 | 201号室 | 
| 面積 | 62.47㎡ /18.89坪 | 方位 | - | 
| 間取り | - | ||
| 賃料 | 15.5万円/月 | 管理費 | - | 
| 礼金 | 14万円 | 敷金 | 28万円 | 
| ほか初期費用 | - | その他諸費用 | - | 
| 更新料 | 75,000円 5年毎に契約更新有 | 火災(家財)保険 | 要加入 | 
| 共益費 | - | 町内費 | - | 
| 駐車場 | 2台込み 3台目確保可能 | バイク料金 | - | 
| 鍵交換費 | - | 清掃料 | - | 
| 更新事務手数料 | - | ||
| 保証区分 | 保証会社のみ | ||
| 保証会社 | 区分:加入要 保証会社名:日本セーフティ 初回保証料100% 月額保証料1% | ||
| 家賃保証金 | 155,000円 | ||
| 連帯保証人 | 区分:不要 - | ||
| 仲介手数料 | 154,999円 | ||
| 築年月 | 2024年8月(築1年) | ||
| 利用制限 | 法人:可、学生:不可、ペット:不可、楽器:不可、事務所利用:可、ルームシェア:不可 | ||
| 学校区 | 裏館小学校(388m)・第三中学校(263m) | ||
| 設備 | 最上階、2階以上、融雪設備あり、オートロック、エアコン、給湯、駐車場あり | ||
| 入居時期 | 即入居可 | ||
| 取引態様 | 代理 | ||
| 備考 | ・3台目以降敷地内駐車場1台5,500円/月:近隣駐車場1台4,400円/月 ・三条市役所、法務局近く ・行政書士、司法書士、税理士、弁護士などの事務所歓迎 ・インターネット接続設備(接続工事と開通は入居者手配) 各室トイレあり ・飲食店不可 | ||
| 手数料負担割合/配分割合 | 貸主:0% 借主:100% / 元付:50% 客付:50% | ||
| 取り扱い会社 | エイブルネットワーク長岡店(株式会社Will企画) 新潟県長岡市三和3丁目6-6 | ||
| 情報登録日 | 2025/04/20 | 次回更新予定日 | 2025/11/14 | 
 
							
						| ローソン 三条旭町二丁目店(コンビニ)まで270m セブン-イレブン 三条北三条駅入口店(コンビニ)まで640m イオン 三条店(スーパー)まで600m | スーパーマルセン 荒町店(スーパー)まで830m 第四北越銀行 三条中央支店(銀行)まで460m | 
※カメラのアイコンがある場合は、マウスをポイントするとその施設の画像がご覧いただけます。
 
						| TEL: | 0258-33-2890 | |
|---|---|---|
| 所在地: | 新潟県長岡市三和3丁目6-6 | |
| 交通: | ||
| 営業時間: | 10:00~18:00/定休日:水曜日 | |
| 免許番号: | 新潟県知事(5)第4652号 | |
| 所属団体名: | 公社 新潟県宅地建物取引協会 長岡支部 | |
| 取引態様: | 代理 | |
| ホームページ: | http://shop.able.co.jp/C03000281/ | |