仲介手数料なし♪ 高床式で緑に囲まれた閑静な佇まい!給湯器新品入れ替済みです!
| 物件名
所在地 |
面積
間取り 所在階 |
築年数
方位 |
賃料
管理費等 共益費 |
敷金
保証金 礼金 |
種別
構造 |
|---|---|---|---|---|---|
| 城東O貸家 0号室 新潟県柏崎市城東2-1-6 | 190.55㎡ (57.64坪) 6DK 1階 | 44年 東 | 5.5万円 なし なし | 1.5ヶ月 なし 1.5ヶ月 | アパート・マンション・一戸建て 木造 |
| 物件コード | 00292-100040 | ||
|---|---|---|---|
| 物件名 | 城東O貸家 | ||
| 交通 | 駅:信越線 柏崎駅から徒歩20分、バス:総合高校前から徒歩5分 | ||
| 所在地 | 新潟県柏崎市城東2-1-6 | ||
| 物件種別 | アパート・マンション・一戸建て | ||
| 総戸数 | - | ||
| 構造 | 木造 | 階建 | 地上2階建 |
| 所在階/階数 | 1階/2階 | 号室 | - |
| 面積 | 190.55㎡ /57.64坪 | 方位 | 東 |
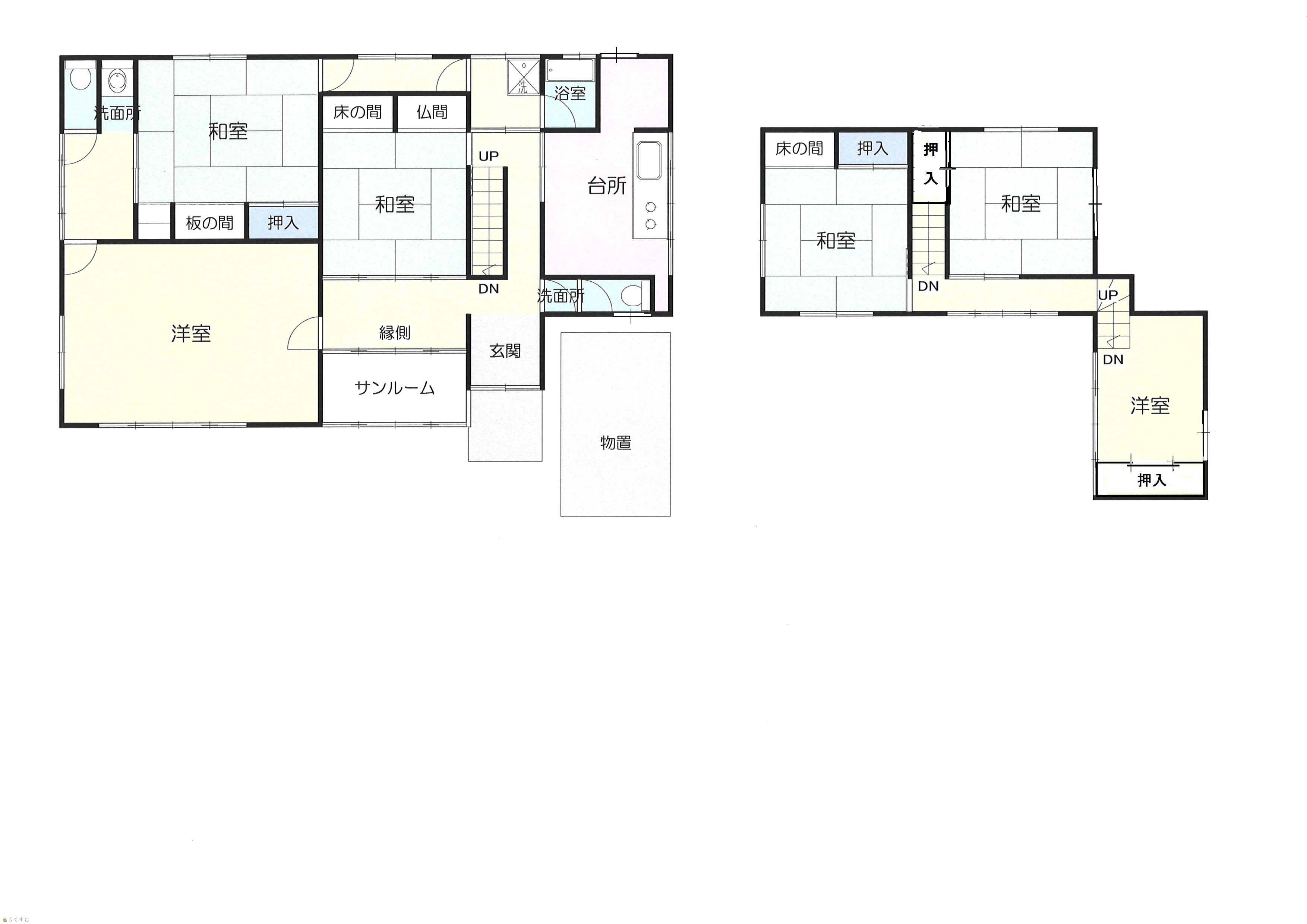
| 間取り | 6DK (和室:8畳、10畳、8畳、8畳) (洋室:7.5、6) DK6 |
||
| 賃料 | 5.5万円/月
|
管理費 | - |
| 礼金 | 1.5ヶ月
|
敷金 | 1.5ヶ月
|
| ほか初期費用 | - | その他諸費用 | - |
| 更新料 | - | 火災(家財)保険 |
22,000円
2年 |
| 共益費 | - | 町内費 | 別途 |
| 駐車場 |
1台込 |
バイク料金 | - |
| 鍵交換費 | - | 清掃料 | - |
| 更新事務手数料 | - | ||
| 保証区分 |
連帯保証人のみ |
||
| 保証会社 |
区分:指定なし
- |
||
| 連帯保証人 |
区分:要 - |
||
| 仲介手数料 | - | ||
| 築年月 | 1982年3月(築44年) | ||
| 利用制限 | - | ||
| 学校区 | 枇杷島小学校(653m)・鏡が沖中学校(676m) | ||
| 設備 | 閑静な住宅街、1階高床式、LDK12畳以上、駐車場1台無料、専用庭、バストイレ別、追いだき機能付き、温水洗浄便座、都市ガス、洗濯機置場 室内、各居室照明、インターネット接続可、仲介手数料不要、予約可 | ||
| 入居時期 | 即入居可 | ||
| 取引態様 | 貸主 | ||
| 備考 | 給湯器新品入れ替え手配中です! | ||
| 手数料負担割合/配分割合 | 貸主:0% 借主:100% / 元付:0% 客付:100% | ||
| 取り扱い会社 |
有限会社ひまわりネットワーク 新潟県柏崎市宮場町9番23号 |
||
| 情報登録日 | 2025/09/22 | 次回更新予定日 | 2026/06/05 |
| TEL: | 0257-22-0851 | |
|---|---|---|
| 所在地: | 新潟県柏崎市宮場町9番23号 | |
| 交通: | 柏﨑駅南口から約950m(約12分) | |
| 営業時間: | 平日9:00~17:00(土12:00まで)/定休日:日曜・祝日 | |
| 免許番号: | 新潟県知事(6)第4167号 | |
| 所属団体名: | (公社)新潟県宅地建物取引業協会 (一社)全国賃貸不動産管理業協会(全宅管理) | |
| 取引態様: | 貸主 | |
| ホームページ: | https://www.himawari-network.co.jp/ | |