上越大通り沿いのテナントビル1階
| 物件名
所在地 |
面積
間取り 所在階 |
築年数
方位 |
賃料
管理費等 共益費 |
敷金
保証金 礼金 |
種別
構造 |
|---|---|---|---|---|---|
| 藤巻 貸店舗 新潟県上越市藤巻8-59 | 515.98㎡ (156.08坪) - 1階 | 37年 - | 72万円 なし なし | 4ヶ月 なし なし | 店舗 鉄骨 |
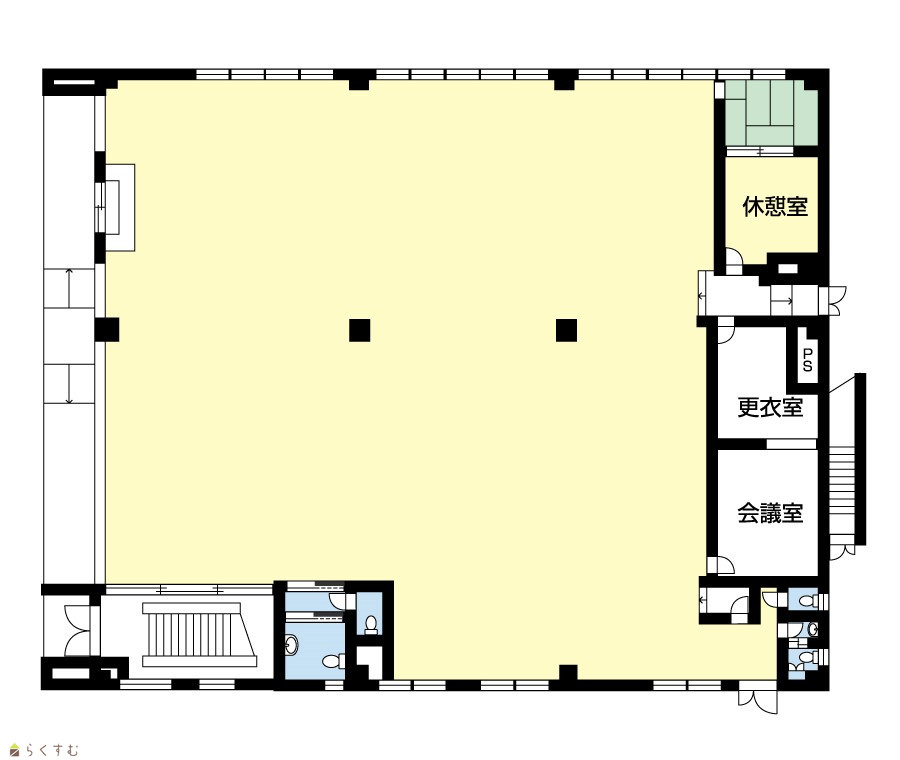
| ・幹線道路沿いで視認性が良いです。 ・OAフロアで、奥には会議室や休憩室もあるので、店舗はもちろん事務所にも使えます。 ・分割もご相談可能ですので、業種・業態など、まずはお問合せください! | |||
| 物件コード | 00263-100117 | ||
|---|---|---|---|
| 物件名 | 藤巻 貸店舗 | ||
| 交通 | 駅:妙高はねうまライン 春日山駅から徒歩25分 | ||
| 所在地 | 新潟県上越市藤巻8-59 | ||
| 物件種別 | 店舗 | ||
| 総戸数 | - | ||
| 構造 | 鉄骨 | 階建 | 地上2階建 |
| 所在階/階数 | 1階/2階 | 号室 | - |
| 面積 | 515.98㎡ /156.08坪 | 方位 | - |
| 間取り | - | ||
| 賃料 | 72万円/月
|
管理費 | - |
| 礼金 | - | 敷金 | 4ヶ月
|
| ほか初期費用 | - | その他諸費用 | - |
| 更新料 | - | 火災(家財)保険 | 借家人賠償責任保障付きテナント保険:加入要 |
| 共益費 | - | 町内費 | - |
| 駐車場 | 19台家賃込 追加は要相談 | バイク料金 | - |
| 鍵交換費 | - | 清掃料 | - |
| 更新事務手数料 | - | ||
| 保証区分 |
連帯保証人+保証会社 |
||
| 保証会社 |
区分:加入要
保証会社名:日本セーフティ 初回保証料:賃料等合計の100%、継続保証料:1年毎に賃料等合計の10%。※最低保証料あり |
||
| 家賃保証金 |
720,000円
|
||
| 連帯保証人 |
区分:要 - |
||
| 仲介手数料 |
720,000円
|
||
| 築年月 | 1988年6月(築37年) | ||
| 利用制限 | 法人:可、事務所利用:可 | ||
| 学校区 | 高志小学校(808m) | ||
| 設備 | 1階、融雪設備あり、エアコン、男女トイレ別、即引き渡し可、給湯、OAフロア、駐車場あり | ||
| 入居時期 | 【賃貸中】 2025年11月上旬~入居可 | ||
| 取引態様 | 仲介 | ||
| 備考 | ・賃料には共益費と19台分の駐車場代が含まれています。 ・追加駐車場あり(応相談) ・消雪設備あり。除雪を行った場合は別途費用負担あり ◆店舗・事務所はテナントショップ上越でお探しください!◆ |
||
| 手数料負担割合/配分割合 | 貸主:-% 借主:100% / 元付:-% 客付:-% | ||
| 取り扱い会社 |
ピタットハウス上越店 日建不動産 新潟県上越市春日新田1-20-8 |
||
| 情報登録日 | 2025/08/21 | 次回更新予定日 | 2025/12/24 |
|
セブン-イレブン 上越土橋店(コンビニ)まで270m |
クスリのアオキ 藤巻店(ドラッグストア)まで510m |
※カメラのアイコンがある場合は、マウスをポイントするとその施設の画像がご覧いただけます。
| TEL: | 025-544-6015 | |
|---|---|---|
| 所在地: | 新潟県上越市春日新田1-20-8 | |
| 交通: | ||
| 営業時間: | 9:00~18:00/定休日:水・日・祝 | |
| 免許番号: | 新潟県知事(10)第3031号 | |
| 所属団体名: | 公社 新潟県宅地建物取引協会 上越支部 | |
| 取引態様: | 仲介 | |
| ホームページ: | https://www.pitat-j.com/ | |