上越市大字下源入500 店舗 39.6万円の物件情報

国道8号線沿い 平成28年9月リフォーム済ヽ(^o^)丿  厨房設備があり、イベントハウス・フィットネスクラブ・ネットカフェ・レストランなど最適! 事務所スペース、厨房施設有

物件名
所在地
面積
間取り
所在階
築年数
方位
賃料
管理費等
共益費
敷金
保証金
礼金
種別
構造
下源入貸店舗B
上越市大字下源入500
433.62㎡
(131.17坪)
-
-
42年
-
39.6万円
なし
なし
118.8万円
なし
なし
店舗
鉄骨
  • 下源入貸店舗B
    日成商事株式会社
  • この物件を問い合わせる/無料
  • TEL: 025-524-6441 025-524-6441

物件画像

外観
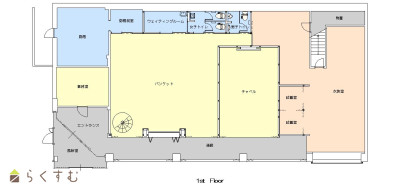
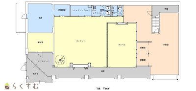
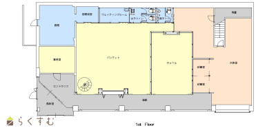
間取り
物件画像
※画像クリックで拡大表示
駐車スペース約18台付ヽ(^o^)丿
物件画像
※画像クリックで拡大表示
詳細画像
物件画像
吹抜けのメインホール
物件画像
ゴージャスな通路スペース
物件画像
オシャレなルーム
物件画像
受付ホール
物件画像
トイレ
物件画像
手洗
物件画像
1F
物件画像
2F


物件概要

物件コード 00238-100259
物件名 下源入貸店舗B
交通 駅:妙高はねうまライン 直江津駅から徒歩29分、バス:下門前入口から徒歩4分
所在地 上越市大字下源入500
物件種別 店舗
総戸数 -
構造 鉄骨 階建 地上2階建
所在階/階数 - 号室 -
面積 433.62㎡ /131.17坪 方位 -
間取り -
賃料 39.6万円/月
管理費 -
礼金 -
敷金 118.8万円
ほか初期費用 - その他諸費用 -
更新料 - 火災(家財)保険 相当額
共益費 - 町内費 相当額
駐車場 15台込 バイク料金 -
鍵交換費 - 清掃料 -
契約一時金 396,000円
更新事務手数料 -
保証区分 連帯保証人のみ
保証会社 区分:指定なし
-
連帯保証人 区分:要
-
仲介手数料 -
築年月 1983年5月(築42年)
利用制限 -
学校区 有田小学校(1,027m)・直江津東中学校(1,290m)
設備 1階、男女トイレ別、飲食店可、居抜き、駐車場あり
入居時期 令和6年12月上旬予定
取引態様 貸主
備考 -
手数料負担割合/配分割合 貸主:-%   借主:-% / 元付:-%   客付:-%  
取り扱い会社

日成商事株式会社

新潟県上越市木田1-8-11

情報登録日 2025/06/23 次回更新予定日 2026/03/24
  • 下源入貸店舗B
    日成商事株式会社
  • この物件を問い合わせる/無料
  • TEL: 025-524-6441 025-524-6441

この物件の地図・周辺情報・行政情報

この物件の周辺情報・行政情報を詳しく見る
【周辺情報】
物件の近くにあるコンビニや銀行・学校など、アイコン付のマップで詳しく表示できます!
【行政情報】
水道料や下水道料・ガス料金など、暮らしに関係のある情報を表示しています。
ローソン 上越下門前店(コンビニ)まで340m
セブン-イレブン 上越下門前店(コンビニ)まで290m
デイリーヤマザキ 上越下源入店(コンビニ)まで400m
セブン-イレブン 上越下源入店(コンビニ)まで720m
イチコスーパー 直江津店(スーパー)まで400m
(有)ホウライ 事業本部(ドラッグストア)まで200m
メッツ有田薬局(ドラッグストア)まで550m
共栄堂薬局直江津店(ドラッグストア)まで460m
(有)吉岡薬局(ドラッグストア)まで650m
上越下門前薬局(ドラッグストア)まで960m
トリム薬局 春日新田店(ドラッグストア)まで730m
つちや耳鼻咽喉科(病院)まで490m
たにし整形外科クリニック(病院)まで510m
古川内科医院(病院)まで730m
川端内科消化器科医院(病院)まで830m
セブン銀行ATM(銀行)まで710m
第四北越銀行 直江津支店(銀行)まで810m

※カメラのアイコンがある場合は、マウスをポイントするとその施設の画像がご覧いただけます。


担当取扱い店舗情報

取扱い店舗画像
日成商事株式会社
TEL: 025-524-6441
所在地: 新潟県上越市木田1-8-11
交通: 妙高はねうまライン春日山駅徒歩10分
営業時間: 平日9:00~18:30 土9:00~18:00/定休日:日曜、祝日
免許番号: 新潟県知事(15)第861号
所属団体名: 公社 新潟県宅地建物取引協会 上越支部
取引態様: 貸主
ホームページ: http://www.nissey.jp/