新潟県上越市藤巻8-59山吉ビル1階 事務所 33万円の物件情報

幹線道路(上越大通り)沿い、周辺には多くの商業施設や事業所が立ち並んでいます。

物件名
所在地
面積
間取り
所在階
築年数
方位
賃料
管理費等
共益費
敷金
保証金
礼金
種別
構造
山吉ビル1F-B
新潟県上越市藤巻8-59山吉ビル1階
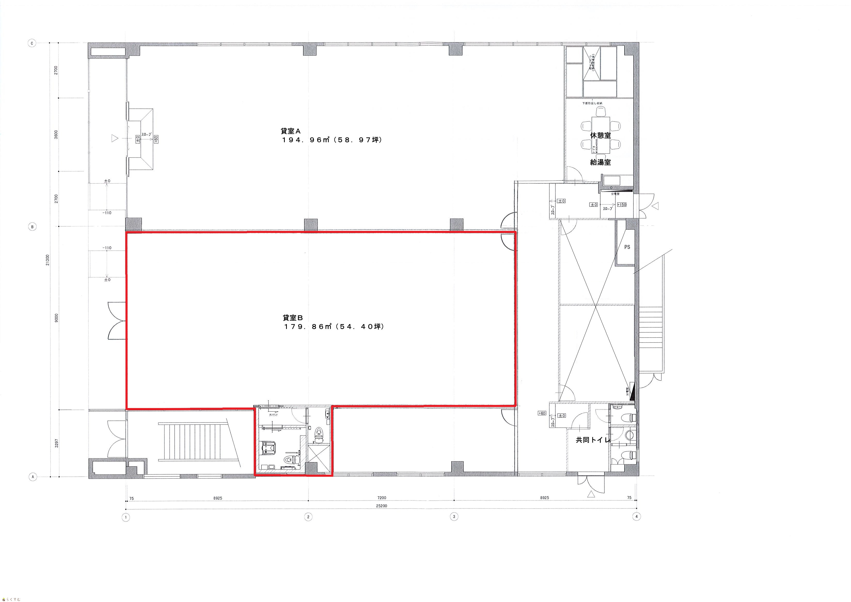
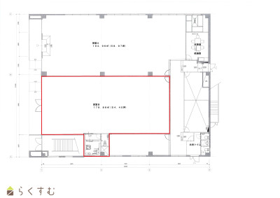
179.86㎡
(54.4坪)
-
1階
37年
-
33万円
なし
なし
4ヶ月
なし
なし
事務所
鉄骨
  • 山吉ビル1F-B
    株式会社マルケー不動産
  • この物件を問い合わせる/無料
  • TEL: 025-544-2724 025-544-2724

物件画像

外観
間取り
物件画像
※画像クリックで拡大表示
外観
物件画像
※画像クリックで拡大表示
区画予定図
詳細画像
物件画像
室内
物件画像
専有トイレ
物件画像
専有トイレ
物件画像
共用トイレ(女子)
物件画像
共用トイレ(男子)
物件画像
休憩室・給湯室(共用部)
物件画像
休憩室・給湯室(共用)
物件画像
地図画像


物件概要

賃料には共益費・駐車料(10台分)が含まれています。使用面積にご希望ありましたらご相談ください。
物件コード 00209-100147
物件名 山吉ビル1F-B
交通 駅:妙高はねうまライン 春日山駅から徒歩25分
所在地 新潟県上越市藤巻8-59山吉ビル1階
物件種別 事務所
総戸数 -
構造 鉄骨 階建 地上2階建
所在階/階数 1階/2階 号室 -
面積 179.86㎡ /54.4坪 方位 -
間取り -
賃料 33万円/月
共益費、駐車料(10台分)込み
管理費 -
礼金 - 敷金 4ヶ月
ほか初期費用 - その他諸費用 -
更新料 - 火災(家財)保険 -
共益費 - 町内費 実費負担
駐車場 - バイク料金 -
鍵交換費 - 清掃料 -
更新事務手数料 -
保証区分 保証会社のみ
保証会社 区分:加入要
保証会社名:その他 (CIZ)
-
家賃保証金 297,000円
別途事務手数料
連帯保証人 区分:不要
-
仲介手数料 330,000円
築年月 1988年6月(築37年)
利用制限 -
学校区 高志小学校(805m)・春日中学校(1,988m)
設備 1階、融雪設備あり、エアコン、OAフロア、駐車場あり
入居時期 相談
取引態様 仲介
備考 間仕切壁設置工事後の引渡し(業種により要相談)
冬期間除雪費の負担あり
物件敷地内に別途駐車場あり(応相談)
手数料負担割合/配分割合 貸主:-%   借主:-% / 元付:-%   客付:-%  
取り扱い会社

株式会社マルケー不動産

新潟県上越市西本町2-3-21

情報登録日 2026/02/17 次回更新予定日 2026/04/03
  • 山吉ビル1F-B
    株式会社マルケー不動産
  • この物件を問い合わせる/無料
  • TEL: 025-544-2724 025-544-2724

この物件の地図・周辺情報・行政情報

この物件の周辺情報・行政情報を詳しく見る
【周辺情報】
物件の近くにあるコンビニや銀行・学校など、アイコン付のマップで詳しく表示できます!
【行政情報】
水道料や下水道料・ガス料金など、暮らしに関係のある情報を表示しています。
セブン-イレブン 上越土橋店(コンビニ)まで260m
クスリのアオキ 藤巻店(ドラッグストア)まで500m
上越信用金庫 はれまち支店(銀行)まで640m
ウオロク上越店(スーパー)まで600m

※カメラのアイコンがある場合は、マウスをポイントするとその施設の画像がご覧いただけます。


担当取扱い店舗情報

取扱い店舗画像
株式会社マルケー不動産
TEL: 025-544-2724
所在地: 新潟県上越市西本町2-3-21
交通: 直江津駅
営業時間: 8:30~17:00/定休日:第2.4土・日・祝
免許番号: 新潟県知事(10)第2765号
所属団体名: 公社新潟県宅地建物取引協会 上越支部
取引態様: 仲介
ホームページ: https://www.mkfudo3.jp/