
高田駅前のテナントビルです。1階はバス案内所・ハイヤー乗り場です。












| 物件名 所在地 | 面積 間取り 所在階 | 築年数 方位 | 賃料 管理費等 共益費 | 敷金 保証金 礼金 | 種別 構造 | 
|---|---|---|---|---|---|
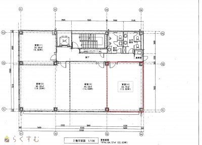
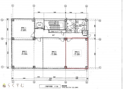
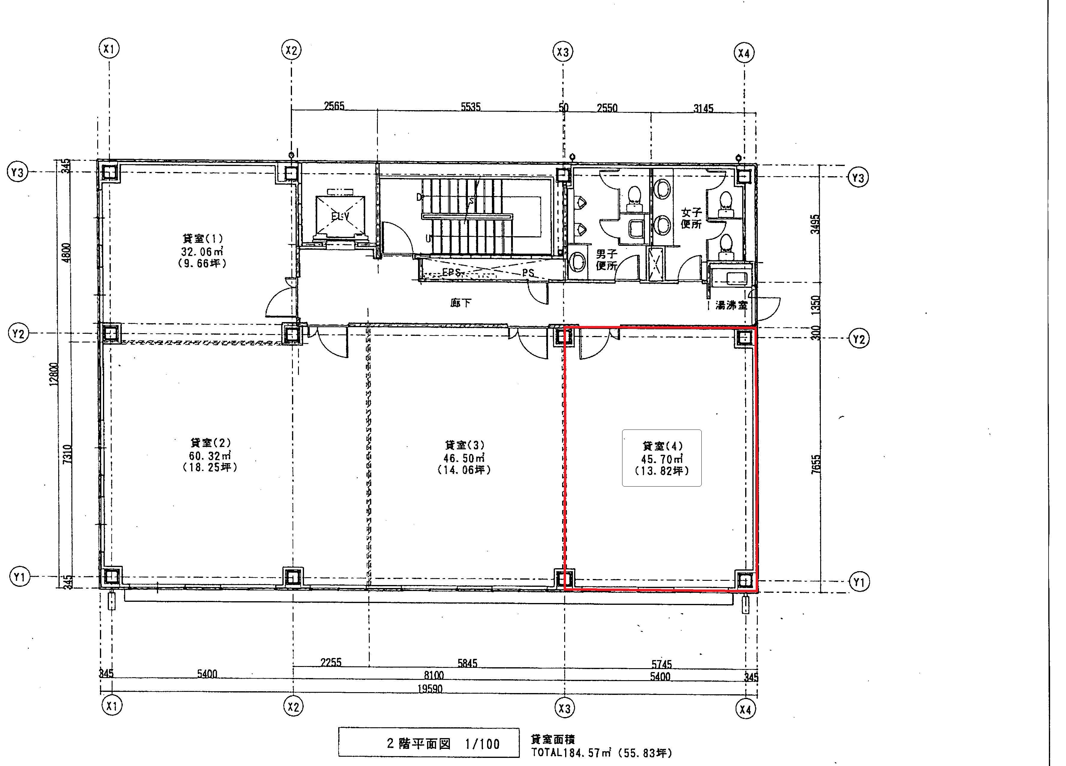
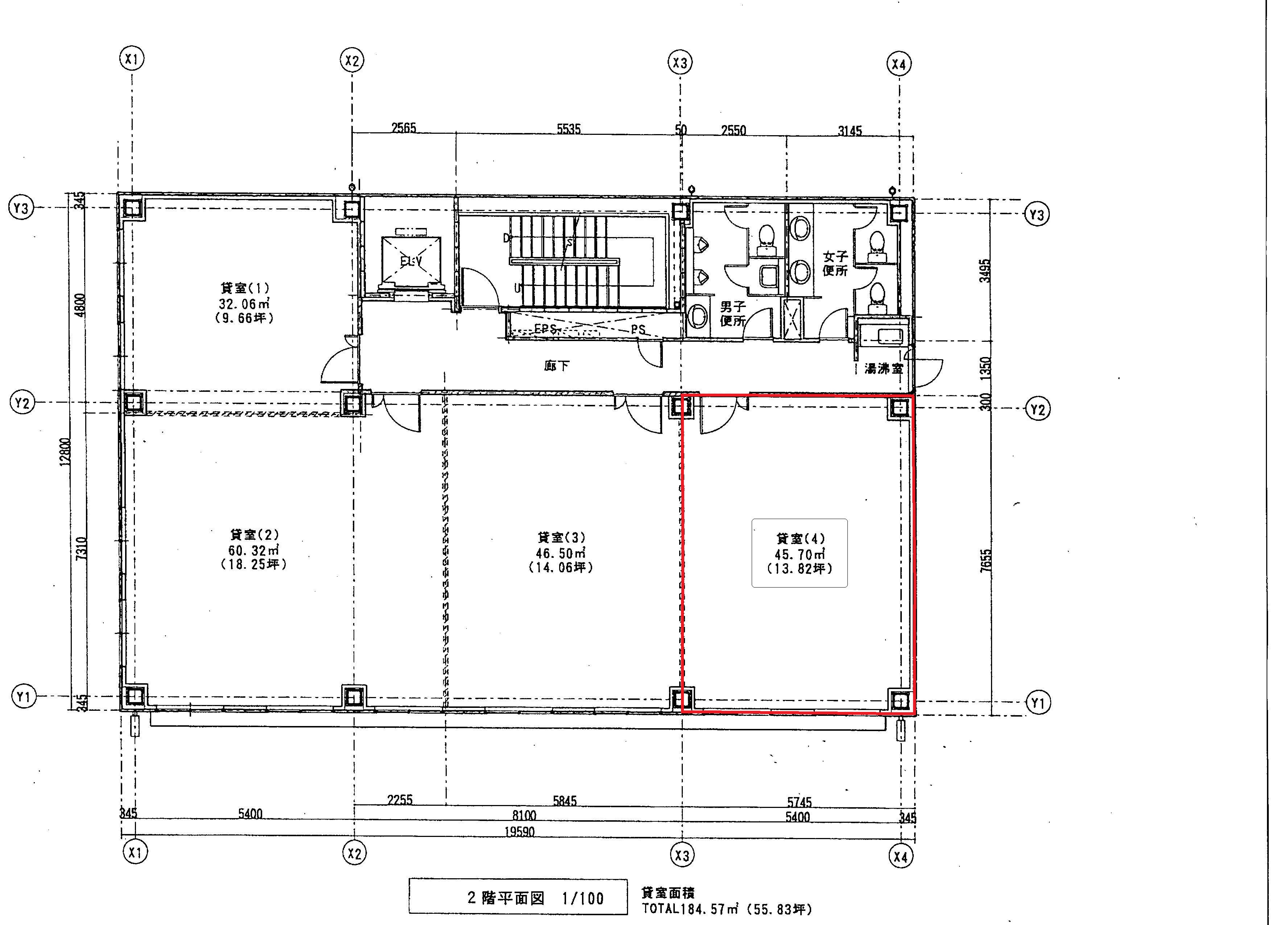
| マルケー・バスビル 2F3 新潟県上越市仲町4丁目3-19 | 46.06㎡ (13.93坪) - 2階 | 28年 - | 7.733万円 なし あり | 42.18万円 なし なし | 事務所 鉄骨 | 
 
							
						| 物件コード | 00209-100101 | ||
|---|---|---|---|
| 物件名 | マルケー・バスビル 2F3 | ||
| 交通 | 駅:妙高はねうまライン 高田駅から徒歩2分、バス:高田駅前から徒歩0分 | ||
| 所在地 | 新潟県上越市仲町4丁目3-19 | ||
| 物件種別 | 事務所 | ||
| 総戸数 | - | ||
| 構造 | 鉄骨 | 階建 | 地上4階建 | 
| 所在階/階数 | 2階/4階 | 号室 | - | 
| 面積 | 46.06㎡ /13.93坪 | 方位 | - | 
| 間取り | - | ||
| 賃料 | 7.733万円/月 | 管理費 | - | 
| 礼金 | - | 敷金 | 42.18万円 | 
| ほか初期費用 | - | その他諸費用 | - | 
| 更新料 | - | 火災(家財)保険 | - | 
| 共益費 | 38,665円 | 町内費 | 実費負担 | 
| 駐車場 | 13,200円 1台あたり13200円 | バイク料金 | - | 
| 鍵交換費 | - | 清掃料 | - | 
| 更新事務手数料 | - | ||
| 保証区分 | 連帯保証人のみ | ||
| 保証会社 | 区分:指定なし - | ||
| 連帯保証人 | 区分:要 - | ||
| 仲介手数料 | 77,330円 | ||
| 築年月 | 1997年3月(築28年) | ||
| 利用制限 | - | ||
| 学校区 | 大町小学校(400m)・城東中学校(1,587m) | ||
| 設備 | 24時間セキュリティー、エアコン、男女トイレ別、エレベーター、OAフロア、駐車場あり | ||
| 入居時期 | 即入居可 | ||
| 取引態様 | 仲介 | ||
| 備考 | - | ||
| 手数料負担割合/配分割合 | 貸主:-% 借主:-% / 元付:-% 客付:-% | ||
| 取り扱い会社 | 株式会社マルケー不動産 新潟県上越市西本町2-3-21 | ||
| 情報登録日 | 2023/11/10 | 次回更新予定日 | 2025/11/14 | 
 
							
						| ローソン 上越高田駅前店(コンビニ)まで100m | 
※カメラのアイコンがある場合は、マウスをポイントするとその施設の画像がご覧いただけます。
 
						| TEL: | 025-544-2724 | |
|---|---|---|
| 所在地: | 新潟県上越市西本町2-3-21 | |
| 交通: | 直江津駅 | |
| 営業時間: | 8:30~17:00/定休日:第2.4土・日・祝 | |
| 免許番号: | 新潟県知事(10)第2765号 | |
| 所属団体名: | 公社新潟県宅地建物取引協会 上越支部 | |
| 取引態様: | 仲介 | |
| ホームページ: | https://www.mkfudo3.jp/ | |