新潟県上越市とよば150 マンション 1DK 5.6万円の物件情報

人気のとよば!1LDKメゾネット!インターネット無料!

物件名
所在地
面積
間取り
所在階
築年数
方位
賃料
管理費等
共益費
敷金
保証金
礼金
種別
構造
M.MICASA
106号室
新潟県上越市とよば150
44.13㎡
(13.34坪)
1DK
1階
15年
5.6万円
4,000円/月
-
1ヶ月
なし
なし
アパート・マンション・一戸建て
鉄筋コン
  • M.MICASA
    株式会社リビングギャラリー上越センター店
  • この物件を問い合わせる/無料
  • TEL: 025-521-6322 025-521-6322

物件画像

外観
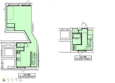
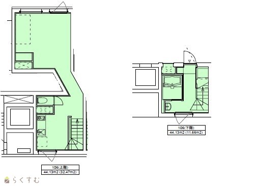
間取り
物件画像
※画像クリックで拡大表示
外観
物件画像
※画像クリックで拡大表示
間取図
詳細画像
物件画像
居室
物件画像
居室
物件画像
キッチン
物件画像
キッチン
物件画像
居室 その他部屋・スペース
物件画像
洗面所
物件画像
バス
物件画像
トイレ
物件画像
設備 セキュリティ
物件画像
玄関
物件画像
その他
物件画像
エントランス ロビー
物件画像
共用設備 敷地内/建物
物件画像
共用設備
物件画像
共用設備 セキュリティ
物件画像
その他
物件画像
周辺 上越モール
物件画像
周辺 ナルス鴨島店
物件画像
周辺 セブンイレブン上越東城店


物件概要

上越のデザイナーズマンションです!駐車場消雪設備、光インターネット無料!
物件コード 00203-114194
物件名 M.MICASA
交通 駅:南高田
所在地 新潟県上越市とよば150
物件種別 アパート・マンション・一戸建て
総戸数 19戸
構造 鉄筋コン 階建 地上4階建
所在階/階数 1階/4階 号室 106号室
面積 44.13㎡ /13.34坪 方位
間取り 1DK (洋室:7)
賃料 5.6万円/月
管理費 4,000円/月
礼金 -
敷金 1ヶ月
ほか初期費用 7150円(投てき消火剤/1本:7150円) その他諸費用 町内会費:500円
更新料 - 火災(家財)保険 15,000円
損害保険:2年間1.5万円
駐車場 3,300円
有敷地内 3300円
バイク料金 -
鍵交換費 - 清掃料 -
投てき消火剤/1本 7,150円
町内会費 500円
更新事務手数料 -
保証区分 保証会社のみ
保証会社 区分:加入要
保証会社名:その他 (-)
初回月額賃料合計の50%が必要、更新1万円/年毎
連帯保証人 区分:不要+保証会社利用が必要
-
仲介手数料 61,600円
築年月 2010年4月(築15年)
利用制限 単身者:可、ペット:不可、事務所利用:不可
学校区 -
設備 日当り良好、デザイナーズ、エレベーター、宅配BOX、敷地内ゴミ置き場、メゾネット、駐車2台可、駐輪場あり、駐車場 礼金なし、駐車場 敷金なし、玄関オートロック、カードキー、システムキッチン、IHクッキングヒーター、バストイレ別、追いだき機能付き、浴室乾燥機、温水洗浄便座、洗面所独立、シャワー付き洗面台、エアコン、オール電化、3か所給湯、洗濯機置場 室内、脱衣所、床下収納、クロゼット、BS端子・アンテナ、TVモニター付きインターホン、インターネット無料、インターネット接続可、インターネット 光、メゾネット式
入居時期 2026年1月下旬 入居可能予定
取引態様 仲介
備考 -
手数料負担割合/配分割合 貸主:0%   借主:100% / 元付:50%   客付:50%  
取り扱い会社

株式会社リビングギャラリー上越センター店

新潟県上越市春日山町3-20-53

情報登録日 2025/11/05 次回更新予定日 2025/11/20
  • M.MICASA
    株式会社リビングギャラリー上越センター店
  • この物件を問い合わせる/無料
  • TEL: 025-521-6322 025-521-6322

この物件の地図・周辺情報・行政情報

この物件の周辺情報・行政情報を詳しく見る
【周辺情報】
物件の近くにあるコンビニや銀行・学校など、アイコン付のマップで詳しく表示できます!
【行政情報】
水道料や下水道料・ガス料金など、暮らしに関係のある情報を表示しています。

担当取扱い店舗情報

取扱い店舗画像
株式会社リビングギャラリー上越センター店
TEL: 025-521-6322
所在地: 新潟県上越市春日山町3-20-53
交通:
営業時間: 10:00~18:00/定休日:水曜日
免許番号: 国土交通大臣(5)第5854号
所属団体名: 公社新潟県宅地建物取引業協会 上越支部
取引態様: 仲介
ホームページ: http://www.living-gallery-chintai.com/shop/jouetsu