
専有駐車場20台!山麓線沿いで目立つ立地のテナントです★













| 物件名 所在地 | 面積 間取り 所在階 | 築年数 方位 | 賃料 管理費等 共益費 | 敷金 保証金 礼金 | 種別 構造 | 
|---|---|---|---|---|---|
| 【立地◎】春日山管財ビル 1F 新潟県上越市大豆1丁目8番43号1F | 404.52㎡ (122.36坪) - 1階 | 28年 - | 66万円 55,000円/月 なし | 360万円 なし なし | 事務所 鉄骨 | 
 
							
						| 広~くて設備の整ったテナント!様々な用途に使えそうです(^▽^)/ | |||
| 物件コード | 00200-100310 | ||
|---|---|---|---|
| 物件名 | 【立地◎】春日山管財ビル 1F | ||
| 交通 | 駅:妙高はねうまライン 春日山駅から徒歩16分、バス:春日野一丁目から徒歩2分 | ||
| 所在地 | 新潟県上越市大豆1丁目8番43号1F | ||
| 物件種別 | 事務所 | ||
| 総戸数 | 2戸 | ||
| 構造 | 鉄骨 | 階建 | 地上2階建 | 
| 所在階/階数 | 1階/2階 | 号室 | - | 
| 面積 | 404.52㎡ /122.36坪 | 方位 | - | 
| 間取り | - | ||
| 賃料 | 66万円/月 消費税込み | 管理費 | 55,000円/月 消費税込み | 
| 礼金 | - | 敷金 | 360万円 賃料の 6ヶ月分 | 
| ほか初期費用 | - | その他諸費用 | 賃料自動送金システム「スピードペイ」振込手数料として、毎月440円(税込)、利用更新料として1年毎に5,500円(税込)がかかります。 | 
| 更新料 | - | 火災(家財)保険 | - | 
| 共益費 | - | 町内費 | - | 
| 駐車場 | 専有20台 | バイク料金 | - | 
| 鍵交換費 | - | 清掃料 | - | 
| 保証審査事務手数料 | 2,200円 | ||
| 更新事務手数料 | - | ||
| 保証区分 | 保証会社+緊急連絡先 | ||
| 保証会社 | 区分:加入要 保証会社名:CIZ ベーシックプラン(契約時のみの支払い、退去まで保証、保証更新料なし) | ||
| 家賃保証金 | 550,550円 月額合計賃料の77% | ||
| 連帯保証人 | 区分:不要 - | ||
| 仲介手数料 | 660,000円 | ||
| 築年月 | 1997年5月(築28年) | ||
| 利用制限 | 法人:可、ペット:相談、事務所利用:可 | ||
| 学校区 | 春日小学校(534m)・春日中学校(584m) | ||
| 設備 | 1階、オートロック、24時間セキュリティー、光ファイバー、エアコン、男女トイレ別、即引き渡し可、給湯、駐車場あり | ||
| 入居時期 | 即入居可 | ||
| 取引態様 | 仲介 | ||
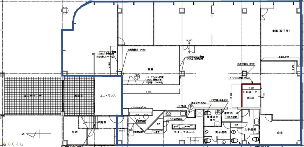
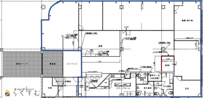
| 備考 | ・間取り図の青色で囲ってあるエリアが専有部分になります。車寄せポーチから風除室、エントランスまでのエリアは共有スペースとなります。 ・冬季間の駐車場内の除雪費用は、駐車台数で按分負担になります。 ・専有駐車場が20台とお客様用駐車場(2Fと共用)があります。台数追加が必要な場合は、応相談とします。 ・エアコンは2024年に入れ替え済みです。 ・セコム設備あり。セキュリティ加入は任意ですが、借主負担となります。 ・保証区分についての指定は無く、相談の上内容を決定します。 内覧やご不明点は、お気軽に025-520-8197(株)お不動さんまでお問い合わせください(^▽^)/ | ||
| 手数料負担割合/配分割合 | 貸主:-% 借主:100% / 元付:50% 客付:50% | ||
| 取り扱い会社 | 株式会社 お不動さん 上越市中央一丁目12番36号 | ||
| 情報登録日 | 2025/07/14 | 次回更新予定日 | 2025/11/15 | 
 
							
						| セブン-イレブン 上越春日野店(コンビニ)まで440m 原信 春日山店(スーパー)まで280m トモエ薬局 春日野店(ドラッグストア)まで200m かなざわ内科クリニック(病院)まで150m | めぐみ皮膚科(病院)まで230m 上田レディースクリニック(病院)まで450m ふじわら耳鼻科(病院)まで360m はやつ内科医院(病院)まで470m | 
※カメラのアイコンがある場合は、マウスをポイントするとその施設の画像がご覧いただけます。
| TEL: | 025-520-8197 | |
|---|---|---|
| 所在地: | 上越市中央一丁目12番36号 | |
| 交通: | 直江津駅 | |
| 営業時間: | 8:30~17:30/定休日:日曜・祝日・第2土曜日・第4土曜日 | |
| 免許番号: | 新潟県知事(2)第5449号 | |
| 所属団体名: | 公社 新潟県宅地建物取引協会 上越支部 | |
| 取引態様: | 仲介 | |
| ホームページ: | https://ofudousan.amebaownd.com/ | |