新潟県上越市西本町1丁目16番17号 店舗 7万円の物件情報

直江津駅チカ物件♪♪ 常時内覧可能ーーー!!

物件名
所在地
面積
間取り
所在階
築年数
方位
賃料
管理費等
共益費
敷金
保証金
礼金
種別
構造
【募集中】西本町1丁目貸テナント 2F(南側)
南側号室
新潟県上越市西本町1丁目16番17号
39.02㎡
(11.8坪)
-
2階
38年
-
7万円
なし
なし
7万円
なし
なし
店舗
鉄骨
  • 【募集中】西本町1丁目貸テナント 2F(南側)
    株式会社 お不動さん
  • この物件を問い合わせる/無料
  • TEL: 025-520-8197 025-520-8197

物件画像

外観
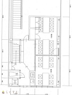
間取り
物件画像
※画像クリックで拡大表示
外観
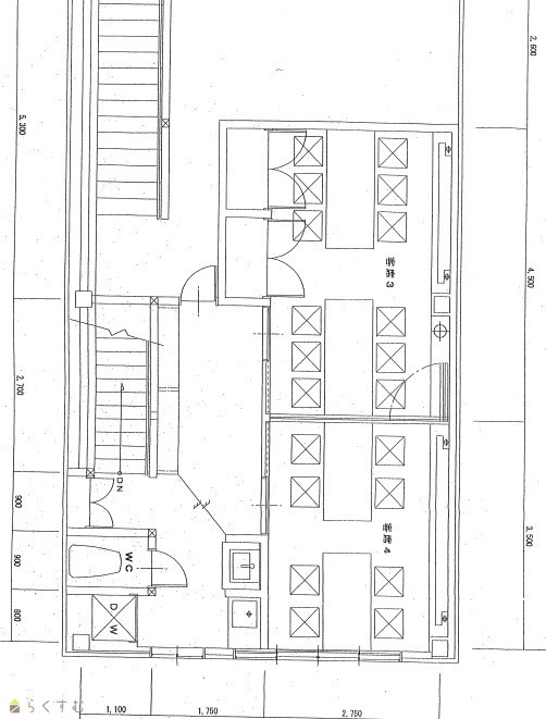
物件画像
※画像クリックで拡大表示
間取り図
詳細画像
物件画像
2階 廊下
物件画像
2階 廊下
物件画像
2階 洗面化粧台
物件画像
2階 フロア
物件画像
2階 専用階段
物件画像
テナント 入口ドア
物件画像
消防設備
物件画像
前面道路
物件画像
トイレ
物件画像
地図画像


物件概要

物件コード 00200-100201
物件名 【募集中】西本町1丁目貸テナント 2F(南側)
交通 駅:日本海ひすいライン 直江津駅から徒歩5分、バス:西本町一丁目から徒歩1分
所在地 新潟県上越市西本町1丁目16番17号
物件種別 店舗
総戸数 -
構造 鉄骨 階建 地上3階建
所在階/階数 2階/3階 号室 南側号室
面積 39.02㎡ /11.8坪 方位 -
間取り -
賃料 7万円/月
管理費 -
礼金 -
敷金 7万円
ほか初期費用 - その他諸費用 -
更新料 - 火災(家財)保険 テナント保険 (2年)21,300円
共益費 - 町内費 月額1,200円
駐車場 別途近隣6,000円~ バイク料金 -
鍵交換費 - 清掃料 -
審査事務手数料 2,200円
更新事務手数料 -
保証区分 保証会社+緊急連絡先
保証会社 区分:加入要
保証会社名:CIZ
保証料:月額合計賃料の77%、更新料なし
家賃保証金 54,824円
連帯保証人 区分:不要
-
仲介手数料 77,000円
築年月 1987年6月(築38年)
利用制限 子供:不可、ペット:不可
学校区 直江津南小学校(352m)・直江津中学校(360m)
設備 2階以上、エアコン、即引き渡し可、飲食店可、居抜き、給湯
入居時期 即入居可
取引態様 仲介
備考 ・町内会費:(月額)1,200円を別途町内に納入(一括払い 可)
・駐車場:なし、近隣にて別途契約(¥6,000~)
・保証委託契約、テナント保険:要加入
・ワンフロア22㎡(約13.3帖)、エアコン2台、照明、収納2ヶ所、洋式水洗便座、洗面化粧台
・※電気メーターが共用の為、貸主負担で入居前に個別専用メーターの工事をします。
・造作可能、その他 使用用途等に関して協議、応相談可能。
手数料負担割合/配分割合 貸主:-%   借主:100% / 元付:50%   客付:50%  
取り扱い会社

株式会社 お不動さん

上越市中央一丁目12番36号

情報登録日 2025/03/01 次回更新予定日 2026/05/22
  • 【募集中】西本町1丁目貸テナント 2F(南側)
    株式会社 お不動さん
  • この物件を問い合わせる/無料
  • TEL: 025-520-8197 025-520-8197

この物件の地図・周辺情報・行政情報

この物件の周辺情報・行政情報を詳しく見る
【周辺情報】
物件の近くにあるコンビニや銀行・学校など、アイコン付のマップで詳しく表示できます!
【行政情報】
水道料や下水道料・ガス料金など、暮らしに関係のある情報を表示しています。
セブン-イレブン 直江津駅前通り店(コンビニ)まで410m
セブン-イレブン 上越五智1丁目店(コンビニ)まで610m
イチコスーパー 直江津西店(スーパー)まで730m
DrugTops(ドラッグストア)まで430m
小川医院(病院)まで290m
公文式 西本町教室(病院)まで280m
飯酒盃医院(病院)まで240m
駅南クリニック 富樫医院(病院)まで1020m
第四北越銀行 直江津西支店(銀行)まで420m
八十二銀行 直江津支店(銀行)まで540m
上越信用金庫 本店(銀行)まで600m
(株)富山第一銀行 直江津支店(銀行)まで440m
大光銀行 直江津支店(銀行)まで540m
第四北越銀行 直江津支店(銀行)まで740m
直江津駅前郵便局(郵便局)まで300m
郵便ポスト(郵便局)まで420m
上越八幡郵便局(郵便局)まで400m

※カメラのアイコンがある場合は、マウスをポイントするとその施設の画像がご覧いただけます。


担当取扱い店舗情報

取扱い店舗画像
株式会社 お不動さん
TEL: 025-520-8197
所在地: 上越市中央一丁目12番36号
交通: 直江津駅
営業時間: 8:30~17:30/定休日:日曜・祝日・第2土曜日・第4土曜日
免許番号: 新潟県知事(2)第5449号
所属団体名: 公社 新潟県宅地建物取引協会 上越支部
取引態様: 仲介
ホームページ: https://ofudousan.amebaownd.com/