
山麓線近く交通のアクセス良好ーーー!事務所、サロンなどにいかがでしょうか♪♪













| 物件名 所在地 | 面積 間取り 所在階 | 築年数 方位 | 賃料 管理費等 共益費 | 敷金 保証金 礼金 | 種別 構造 | 
|---|---|---|---|---|---|
| new【商談中】ヤマダオフィス Ⅱ B号室 新潟県上越市春日野1丁目4番38号 | 52.99㎡ (16.02坪) - 1階 | 6年 - | 11万円 2,200円/月 なし | なし なし 11万円 | 事務所 木造 | 
 
							
						| テナントのご主人様☆☆募集中ーーー☆☆ | |||
| 物件コード | 00200-100120 | ||
|---|---|---|---|
| 物件名 | new【商談中】ヤマダオフィス Ⅱ | ||
| 交通 | 駅:妙高はねうまライン 春日山駅から徒歩12分、バス:春日山町三丁目北から徒歩3分 | ||
| 所在地 | 新潟県上越市春日野1丁目4番38号 | ||
| 物件種別 | 事務所 | ||
| 総戸数 | - | ||
| 構造 | 木造 | 階建 | 地上1階建 | 
| 所在階/階数 | 1階/1階 | 号室 | B号室 | 
| 面積 | 52.99㎡ /16.02坪 | 方位 | - | 
| 間取り | - | ||
| 賃料 | 11万円/月 (課税表記) | 管理費 | 2,200円/月 (課税表記) | 
| 礼金 | 11万円 (課税表記) | 敷金 | - | 
| ほか初期費用 | - | その他諸費用 | - | 
| 更新料 | - | 火災(家財)保険 | 21,300円 (2年) | 
| 共益費 | - | 町内費 | - | 
| 駐車場 | - | バイク料金 | - | 
| 鍵交換費 | - | 清掃料 | - | 
| 更新事務手数料 | - | ||
| 保証区分 | 保証会社+緊急連絡先 | ||
| 保証会社 | 区分:加入要 保証会社名:CIZ 保証料:月額合計賃料の77%、更新料不要。 | ||
| 家賃保証金 | 86,394円 | ||
| 連帯保証人 | 区分:不要 - | ||
| 仲介手数料 | 110,000円 | ||
| 築年月 | 2019年1月(築6年) | ||
| 利用制限 | 法人:可、ペット:不可、楽器:不可、事務所利用:可 | ||
| 学校区 | 春日小学校(316m)・春日中学校(474m) | ||
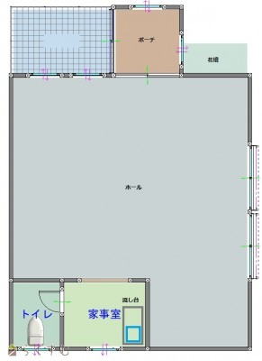
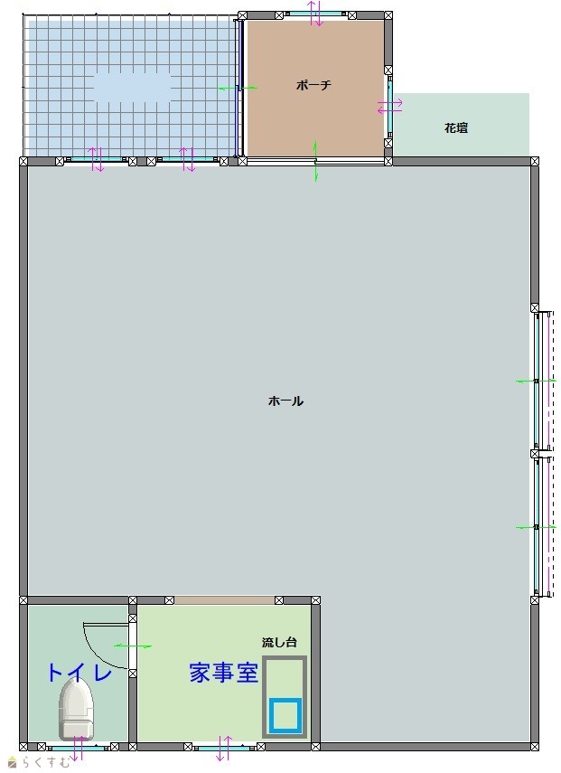
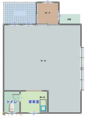
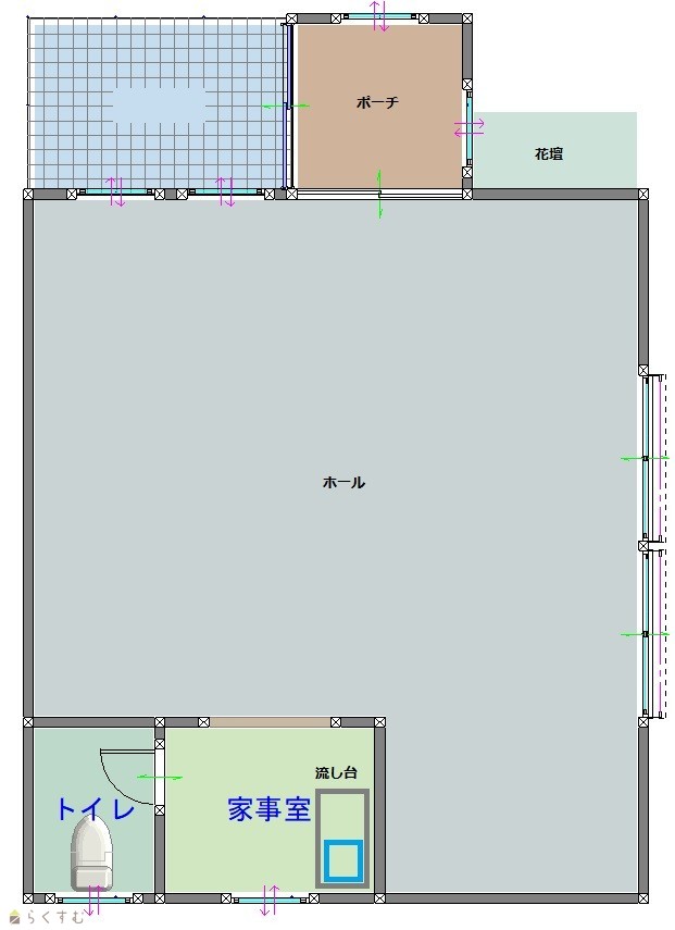
| 設備 | 1階、融雪設備あり、光ファイバー、エアコン、スケルトン、給湯、駐車場あり | ||
| 入居時期 | 即入居可 | ||
| 取引態様 | 仲介 | ||
| 備考 | ・2025.9.22より、商談中です。 ※賃料、管理費は課税後の表記金額です。 ※現在、賃貸中のため内覧は令和 7年 9月以降可能。 ・その他:町内会は事業所は加入できない為町内会費不要。但し、ごみ等は借主にて別途、回収業者を手配となります。 【設備】・電気・上水道・下水道・流し台・給湯室・電気温水器・エアコン(2台)・ブラインドつき・火災報知器・温水洗浄便座・ネット環境光コンセント・照明あり・風除室・花壇・外水道・ポーチ・駐車場 5台つき・消雪設備あり | ||
| 手数料負担割合/配分割合 | 貸主:-% 借主:100% / 元付:50% 客付:50% | ||
| 取り扱い会社 | 株式会社 お不動さん 上越市中央一丁目12番36号 | ||
| 情報登録日 | 2025/09/22 | 次回更新予定日 | 2025/11/14 | 
 
							
						| TEL: | 025-520-8197 | |
|---|---|---|
| 所在地: | 上越市中央一丁目12番36号 | |
| 交通: | 直江津駅 | |
| 営業時間: | 8:30~17:30/定休日:日曜・祝日・第2土曜日・第4土曜日 | |
| 免許番号: | 新潟県知事(2)第5449号 | |
| 所属団体名: | 公社 新潟県宅地建物取引協会 上越支部 | |
| 取引態様: | 仲介 | |
| ホームページ: | https://ofudousan.amebaownd.com/ | |