新潟県長岡市中島6丁目6-10 マンション 3DK 4.2万円の物件情報

閑静な住宅街に立つ賃貸マンション。内装のDIYの相談も可能です。

物件名
所在地
面積
間取り
所在階
築年数
方位
賃料
管理費等
共益費
敷金
保証金
礼金
種別
構造
泉ハイツ 206号室
206号室
新潟県長岡市中島6丁目6-10
76.98㎡
(23.28坪)
3DK
2階
46年
4.2万円
なし
なし
1ヶ月
なし
なし
アパート・マンション・一戸建て
鉄骨鉄筋コン
  • 泉ハイツ 206号室
    (株)池田組 
  • この物件を問い合わせる/無料
  • TEL: 0258-84-7781 0258-84-7781

物件画像

外観
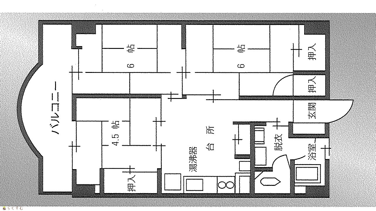
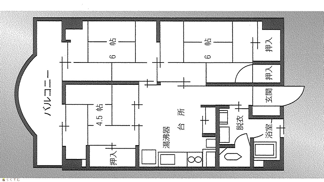
間取り
物件画像
※画像クリックで拡大表示
建物外観
物件画像
※画像クリックで拡大表示
間取り 3DK
詳細画像
物件画像
和室4.5畳
物件画像
和室6畳
物件画像
和室6畳
物件画像
ダイニングキッチン
物件画像
浴室
物件画像
トイレ
物件画像
洗面脱衣室
物件画像
バルコニー
物件画像
地図画像


物件概要

閑静な住宅街に立つ賃貸マンション。内装のDIYの相談も可能です。
物件コード 00192-100018
物件名 泉ハイツ 206号室
交通 駅:信越線 長岡駅から徒歩19分、バス:中島6丁目から徒歩3分
所在地 新潟県長岡市中島6丁目6-10
物件種別 アパート・マンション・一戸建て
総戸数 40戸
構造 鉄骨鉄筋コン 階建 地上6階建
所在階/階数 2階/6階 号室 206号室
面積 76.98㎡ /23.28坪 方位
間取り 3DK (和室:4.5畳、6畳、6畳)
賃料 4.2万円/月
管理費 -
礼金 - 敷金 1ヶ月
ほか初期費用 - その他諸費用 -
更新料 - 火災(家財)保険 -
共益費 - 町内費 300円
駐車場 8,000円
バイク料金 -
鍵交換費 - 清掃料 -
更新事務手数料 -
保証区分 連帯保証人のみ
保証会社 区分:指定なし
-
連帯保証人 区分:要
-
仲介手数料 46,200円
築年月 1979年1月(築46年)
利用制限 -
学校区 表町小学校・東中学校
設備 閑静な住宅街、バス停近く、日当り良好、公園そば、エレベーター、敷地内ゴミ置き場、駐輪場あり、南向き、バストイレ別、洗面所独立、エアコン、都市ガス、バルコニー
入居時期 即入居可
取引態様 仲介
備考 -
手数料負担割合/配分割合 貸主:-%   借主:100% / 元付:50%   客付:50%  
取り扱い会社

(株)池田組 

新潟県長岡市中島3-8-5

情報登録日 2023/01/27 次回更新予定日 2025/11/20
  • 泉ハイツ 206号室
    (株)池田組 
  • この物件を問い合わせる/無料
  • TEL: 0258-84-7781 0258-84-7781

この物件の地図・周辺情報・行政情報

この物件の周辺情報・行政情報を詳しく見る
【周辺情報】
物件の近くにあるコンビニや銀行・学校など、アイコン付のマップで詳しく表示できます!
【行政情報】
水道料や下水道料・ガス料金など、暮らしに関係のある情報を表示しています。

担当取扱い店舗情報

取扱い店舗画像
(株)池田組 
TEL: 0258-84-7781
所在地: 新潟県長岡市中島3-8-5
交通: 長岡駅
営業時間: 8:00~17:00/定休日:日曜、祝日、第2・4土曜
免許番号: 新潟県知事(5)第4552号
所属団体名: 公社 新潟県宅地建物取引協会 長岡支部
取引態様: 仲介
ホームページ: http://local-life-standard.com/