長岡市西神田町2-5-18 店舗 8万円の物件情報

居酒屋・定食・レストラン等に最適 冷蔵庫・ストッカー・エアコン等の設備機器付のきれいな店舗です 

物件名
所在地
面積
間取り
所在階
築年数
方位
賃料
管理費等
共益費
敷金
保証金
礼金
種別
構造
西神田町 店舗事務所
長岡市西神田町2-5-18
49.09㎡
(14.84坪)
-
-
24年
-
8万円
なし
なし
3ヶ月
なし
なし
店舗
木造
  • 西神田町 店舗事務所
    有限会社 アットホーム
  • この物件を問い合わせる/無料
  • TEL: 0258-37-5450 0258-37-5450

物件画像

外観
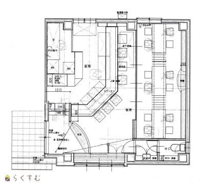
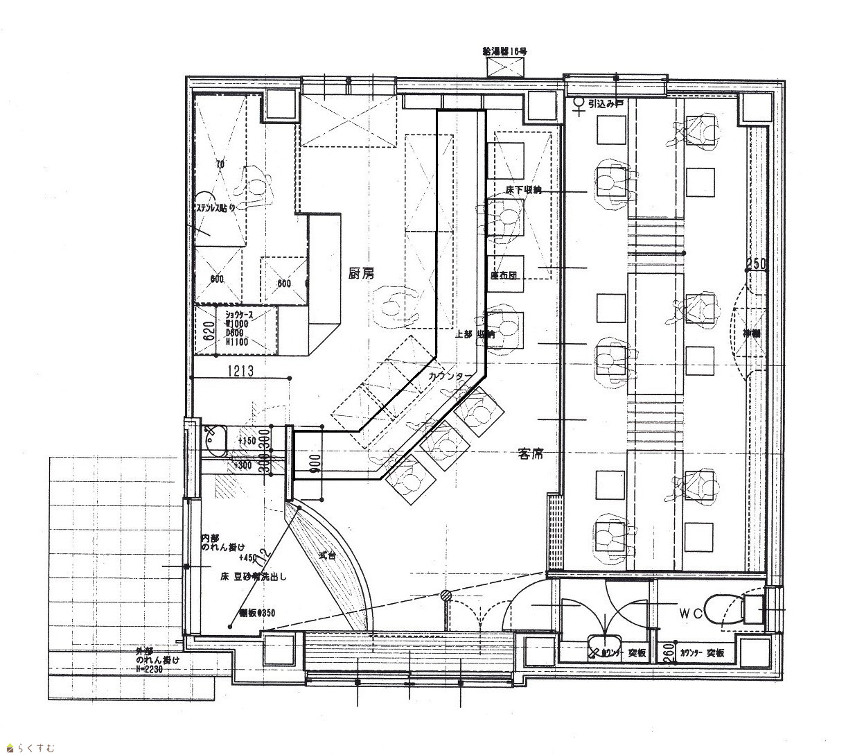
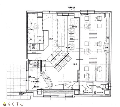
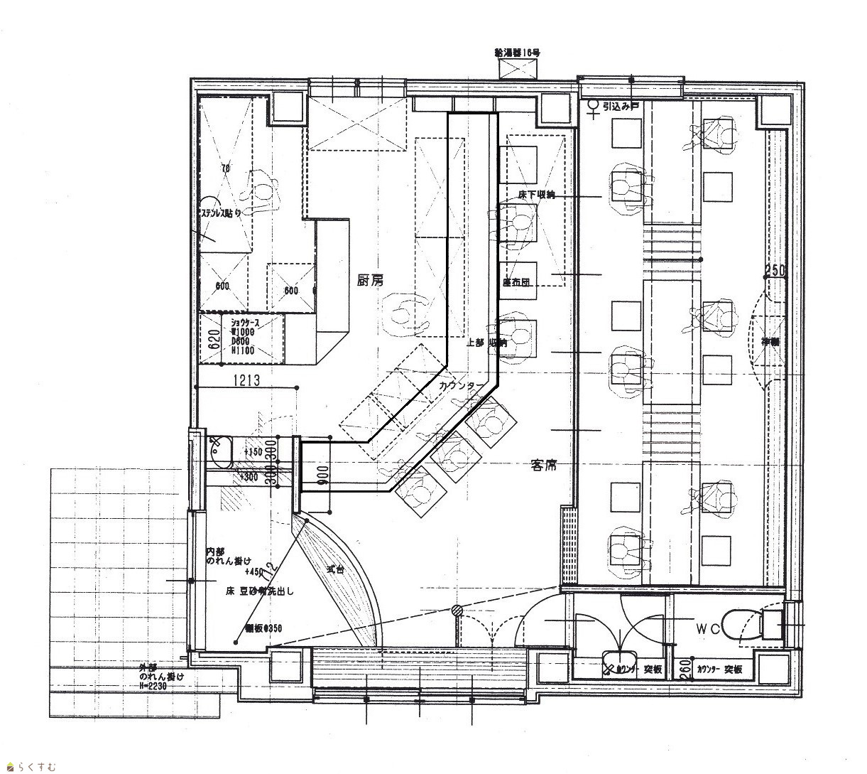
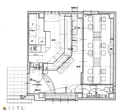
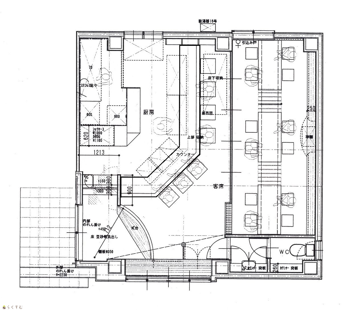
間取り
物件画像
※画像クリックで拡大表示
きれいな状態を保っています
物件画像
※画像クリックで拡大表示
間取り
詳細画像
物件画像
座敷とカウンターで20人程度収容可能
物件画像
木をふんだんに使った明るい店舗
物件画像
カウンターもきれいです
物件画像
厨房機器もきれいな状態です
物件画像
居酒屋・定食屋・カフェ等にも最適です
物件画像
トイレもきれいな状態です
物件画像
落ち着いた感じの玄関です
物件画像
食器棚も造り付けです


物件概要

業種により敷金等を応談致します 
物件コード 00144-100015
物件名 西神田町 店舗事務所
交通 駅:上越新幹線 長岡駅から徒歩18分、バス:昭和通りから徒歩1分
所在地 長岡市西神田町2-5-18
物件種別 店舗
総戸数 -
構造 木造 階建 地上1階建
所在階/階数 - 号室 -
面積 49.09㎡ /14.84坪 方位 -
間取り -
賃料 8万円/月
管理費 -
礼金 - 敷金 3ヶ月
ほか初期費用 - その他諸費用 -
更新料 - 火災(家財)保険 業種により応談
共益費 - 町内費 500円
駐車場 - バイク料金 -
鍵交換費 - 清掃料 -
融雪組合費 800円
更新事務手数料 -
保証区分 連帯保証人のみ
保証会社 区分:指定なし
-
連帯保証人 区分:要
-
仲介手数料 88,000円
築年月 2002年2月(築24年)
利用制限 -
学校区 神田小学校(134m)
設備 1階、エアコン、即引き渡し可、飲食店可、給湯
入居時期 相談
取引態様 仲介
備考 -
手数料負担割合/配分割合 貸主:-%   借主:-% / 元付:-%   客付:-%  
取り扱い会社

有限会社 アットホーム

新潟県長岡市西神田町2-5-17

情報登録日 2025/12/15 次回更新予定日 2026/04/20
  • 西神田町 店舗事務所
    有限会社 アットホーム
  • この物件を問い合わせる/無料
  • TEL: 0258-37-5450 0258-37-5450

この物件の地図・周辺情報・行政情報

この物件の周辺情報・行政情報を詳しく見る
【周辺情報】
物件の近くにあるコンビニや銀行・学校など、アイコン付のマップで詳しく表示できます!
【行政情報】
水道料や下水道料・ガス料金など、暮らしに関係のある情報を表示しています。

担当取扱い店舗情報

取扱い店舗画像
有限会社 アットホーム
TEL: 0258-37-5450
所在地: 新潟県長岡市西神田町2-5-17
交通: 長岡駅
営業時間: 9:00~18:00/定休日:不定休
免許番号: 新潟県知事(5)第4575号
所属団体名: 公益社団法人 全日本不動産協会 新潟県本部
取引態様: 仲介
ホームページ: http://www.athome-no1.co.jp/