新潟県長岡市福住2丁目4-44 倉庫・工場・その他 11万円の物件情報

◆◇ 約150㎡倉庫 広々フリースペース◇◆

物件名
所在地
面積
間取り
所在階
築年数
方位
賃料
管理費等
共益費
敷金
保証金
礼金
種別
構造
ADI福住ビル
新潟県長岡市福住2丁目4-44
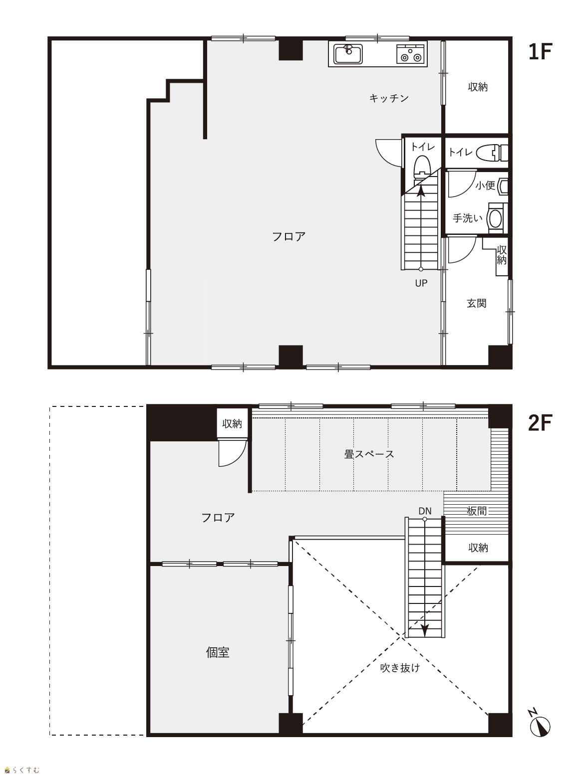
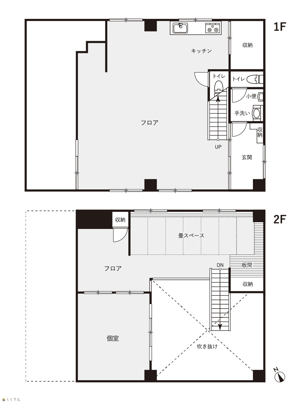
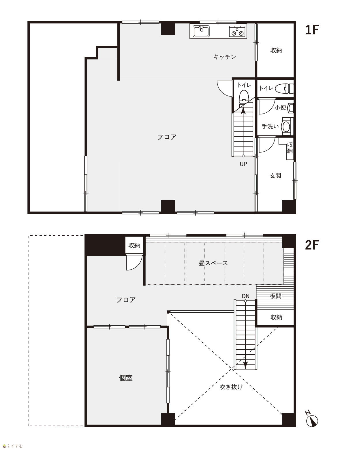
152.24㎡
(46.05坪)
-
-
54年
-
11万円
なし
あり
2ヶ月
なし
1ヶ月
倉庫・工場・その他
鉄筋コン
  • ADI福住ビル
    ADI 株式会社
  • この物件を問い合わせる/無料
  • TEL: 090-4133-0001 090-4133-0001

物件画像

外観
間取り
物件画像
※画像クリックで拡大表示
外観
物件画像
※画像クリックで拡大表示
間取り
詳細画像


物件概要

物件コード 00127-100042
物件名 ADI福住ビル
交通 駅:上越新幹線 長岡駅から徒歩9分
所在地 新潟県長岡市福住2丁目4-44
物件種別 倉庫・工場・その他
総戸数 -
構造 鉄筋コン 階建 地上2階建
所在階/階数 - 号室 -
面積 152.24㎡ /46.05坪 方位 -
間取り -
賃料 11万円/月
管理費 -
礼金 1ヶ月
敷金 2ヶ月
ほか初期費用 - その他諸費用 -
更新料 - 火災(家財)保険 -
共益費 3,300円
町内費 -
駐車場 1台駐車可能。賃料込み。 バイク料金 -
鍵交換費 - 清掃料 -
更新事務手数料 -
保証区分 連帯保証人+緊急連絡先
保証会社 区分:指定なし
-
連帯保証人 区分:要
-
仲介手数料 -
築年月 1971年6月(築54年)
利用制限 法人:可、事務所利用:可
学校区 阪之上小学校(451m)・東北中学校(1,281m)
設備 即引き渡し、駐車場あり
入居時期 即入居可
取引態様 貸主
備考 -
手数料負担割合/配分割合 貸主:-%   借主:-% / 元付:-%   客付:-%  
取り扱い会社

ADI 株式会社

新潟県長岡市古正寺町5-9

情報登録日 2025/10/27 次回更新予定日 2026/06/01
  • ADI福住ビル
    ADI 株式会社
  • この物件を問い合わせる/無料
  • TEL: 090-4133-0001 090-4133-0001

この物件の地図・周辺情報・行政情報

この物件の周辺情報・行政情報を詳しく見る
【周辺情報】
物件の近くにあるコンビニや銀行・学校など、アイコン付のマップで詳しく表示できます!
【行政情報】
水道料や下水道料・ガス料金など、暮らしに関係のある情報を表示しています。

担当取扱い店舗情報

取扱い店舗画像
ADI 株式会社
TEL: 090-4133-0001
所在地: 新潟県長岡市古正寺町5-9
交通:
営業時間: 9:00~19:00/定休日:日曜日
免許番号: 新潟県知事(3)第5007号
所属団体名: 新潟県宅地建物取引業協会 
取引態様: 貸主