ガレージ付き3LDKメゾネット!長岡花火が見えるロケーション、スーパー・コンビニ徒歩圏内にあります!
| 物件名
所在地 |
面積
間取り 所在階 |
築年数
方位 |
賃料
管理費等 共益費 |
敷金
保証金 礼金 |
種別
構造 |
|---|---|---|---|---|---|
| Marco A号室 新潟県長岡市中島2丁目12番2号 | 115.1㎡ (34.81坪) 3LDK 1階 | 1年 南西 | 14.5万円 なし あり | 1ヶ月 なし なし | アパート・マンション・一戸建て 木造 |
| この物件が気になる方はお気軽にお問合せください! | |||
| 物件コード | 00120-100251 | ||
|---|---|---|---|
| 物件名 | Marco | ||
| 交通 | 駅:上越新幹線 長岡駅から徒歩15分、バス:大手大橋東詰から徒歩4分 | ||
| 所在地 | 新潟県長岡市中島2丁目12番2号 | ||
| 物件種別 | アパート・マンション・一戸建て | ||
| 総戸数 | 2戸 | ||
| 構造 | 木造 | 階建 | 地上2階建 |
| 所在階/階数 | 1階/2階 | 号室 | A号室 |
| 面積 | 115.1㎡ /34.81坪 | 方位 | 南西 |
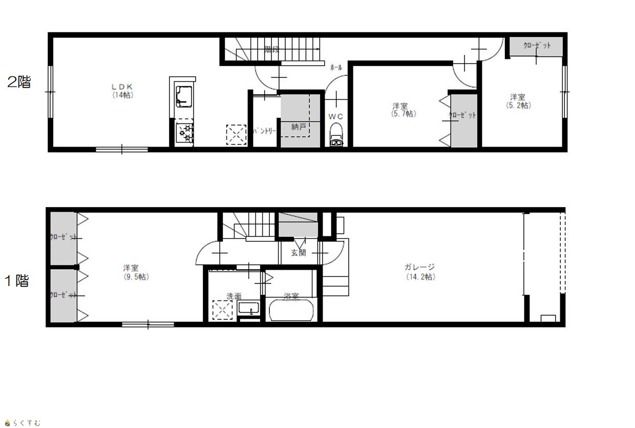
| 間取り | 3LDK (洋室:9.5、5.7、5.2) LDK14 |
||
| 賃料 | 14.5万円/月
|
管理費 | - |
| 礼金 | - | 敷金 | 1ヶ月
|
| ほか初期費用 | - | その他諸費用 | - |
| 更新料 | - | 火災(家財)保険 |
20,000円
2年20000円 |
| 共益費 |
5,000円
|
町内費 | 実費 月額600円 |
| 駐車場 |
ガレージ1台分賃料に含む |
バイク料金 | - |
| 鍵交換費 | - | 清掃料 | - |
| 更新事務手数料 | - | ||
| 保証区分 |
連帯保証人+保証会社 |
||
| 保証会社 |
区分:加入要
保証会社名:ジェイリース - |
||
| 家賃保証金 |
120,000円
|
||
| 連帯保証人 |
区分:要 - |
||
| 仲介手数料 |
159,500円
|
||
| 築年月 | 2024年8月(築1年) | ||
| 利用制限 | ペット:不可 | ||
| 学校区 | 中島小学校(250m)・東中学校(1,042m) | ||
| 設備 | 花火観賞、公園そば、宅配BOX、LDK12畳以上、2階リビング、メゾネット、築5年以内、駐車場1台無料、南向き、対面キッチン、IHクッキングヒーター、3口コンロ、バストイレ別、追いだき機能付き、温水洗浄便座、エアコン、都市ガス、公営水道、クロゼット、BS端子・アンテナ、CATV、TVモニター付きインターホン、インターネット無料、保証会社利用可能、新築・築浅物件 | ||
| 入居時期 | 2026年3月上旬 | ||
| 取引態様 | 代理 | ||
| 備考 | 長岡花火が見えるロケーション、スーパー・コンビニ徒歩2分圏内にあります! | ||
| 手数料負担割合/配分割合 | 貸主:-% 借主:-% / 元付:-% 客付:-% | ||
| 取り扱い会社 |
株式会社 あすなろ不動産 新潟県長岡市袋町1丁目1081-22リバティープラザ袋町101号室 |
||
| 情報登録日 | 2025/12/12 | 次回更新予定日 | 2026/01/05 |
| TEL: | 0258-89-7495 | |
|---|---|---|
| 所在地: | 新潟県長岡市袋町1丁目1081-22リバティープラザ袋町101号室 | |
| 交通: | 長岡駅 | |
| 営業時間: | 9:00~18:00/定休日: | |
| 免許番号: | 新潟県知事(3)第5224号 | |
| 所属団体名: | 新潟県宅地建物取引業協会 長岡支部 | |
| 取引態様: | 代理 | |
| ホームページ: | http://asunaro-f.com/ | |