新潟県長岡市中島2丁目12番2号 アパート 1LDK 9.3万円の物件情報

ガレージ付き1LDKメゾネット!長岡花火が見えるロケーション、スーパー・コンビニ徒歩圏内にあります!内覧会の予定あり。

物件名
所在地
面積
間取り
所在階
築年数
方位
賃料
管理費等
共益費
敷金
保証金
礼金
種別
構造
Marco
B号室
新潟県長岡市中島2丁目12番2号
75.34㎡
(22.79坪)
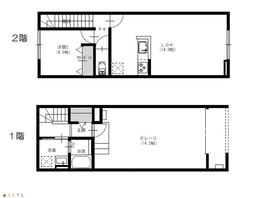
1LDK
1階
1年
南西
9.3万円
なし
あり
1ヶ月
なし
なし
アパート・マンション・一戸建て
木造
  • Marco
    株式会社 あすなろ不動産
  • この物件を問い合わせる/無料
  • TEL: 0258-89-7495 0258-89-7495

物件画像

外観
間取り
物件画像
※画像クリックで拡大表示
新築2024年8月完成予定!
物件画像
※画像クリックで拡大表示
間取り図
詳細画像
物件画像
LDK14.8帖
物件画像
キッチン、IHコンロ
物件画像
洋室4.5帖
物件画像
トイレ洗浄便座付き
物件画像
洗面室・洗濯機置場
物件画像
洗面室床下収納
物件画像
追い焚き・浴室換気乾燥機付き
物件画像
室内物干し
物件画像
モニタ付きドアホン
物件画像
メゾネット階段
物件画像
玄関
物件画像
シューズクローク
物件画像
電動シャッター付きガレージ
物件画像
外水栓付き
物件画像
スーパー徒歩2分
物件画像
コンビニ徒歩2分
物件画像
三角公園徒歩2分
物件画像
日赤町郵便局徒歩3分
物件画像
長岡駅徒歩18分
物件画像
地図画像
360度画像
外観
※下のリンクをクリックすると、上の画像が切り替わります。

インターネットエクスプローラーでは360°画像は閲覧できません。それ以外のブラウザでご覧下さい。

360度画像を詳しく見る


物件概要

この物件が気になる方はお気軽にお問合せください!
物件コード 00120-100250
物件名 Marco
交通 駅:上越新幹線 長岡駅から徒歩15分、バス:大手大橋東詰から徒歩4分
所在地 新潟県長岡市中島2丁目12番2号
物件種別 アパート・マンション・一戸建て
総戸数 2戸
構造 木造 階建 地上2階建
所在階/階数 1階/2階 号室 B号室
面積 75.34㎡ /22.79坪 方位 南西
間取り 1LDK (洋室:4.5)
LDK14.8
賃料 9.3万円/月
管理費 -
礼金 - 敷金 1ヶ月
ほか初期費用 - その他諸費用 -
更新料 - 火災(家財)保険 20,000円
2年20000円
共益費 5,000円
町内費 実費月額600円
駐車場
ガレージ1台分賃料に含む
バイク料金 -
鍵交換費 - 清掃料 -
更新事務手数料 -
保証区分 連帯保証人+保証会社
保証会社 区分:加入要
保証会社名:ジェイリース
-
家賃保証金 78,400円
連帯保証人 区分:要
-
仲介手数料 102,300円
築年月 2024年8月(築1年)
利用制限 ペット:不可
学校区 中島小学校(250m)・東中学校(1,042m)
設備 花火観賞、公園そば、宅配BOX、LDK12畳以上、2階リビング、メゾネット、築5年以内、駐車場1台無料、南向き、対面キッチン、IHクッキングヒーター、バストイレ別、追いだき機能付き、温水洗浄便座、エアコン、都市ガス、公営水道、クロゼット、CATV、TVモニター付きインターホン、インターネット無料、保証会社利用可能、新築・築浅物件
入居時期 令和8年5月中旬
取引態様 代理
備考 長岡花火が見えるロケーション、スーパー・コンビニ徒歩圏内にあります!
手数料負担割合/配分割合 貸主:-%   借主:-% / 元付:-%   客付:-%  
取り扱い会社

株式会社 あすなろ不動産

新潟県長岡市袋町1丁目1081-22リバティープラザ袋町101号室

情報登録日 2026/03/25 次回更新予定日 2026/04/19
  • Marco
    株式会社 あすなろ不動産
  • この物件を問い合わせる/無料
  • TEL: 0258-89-7495 0258-89-7495

この物件の地図・周辺情報・行政情報

この物件の周辺情報・行政情報を詳しく見る
【周辺情報】
物件の近くにあるコンビニや銀行・学校など、アイコン付のマップで詳しく表示できます!
【行政情報】
水道料や下水道料・ガス料金など、暮らしに関係のある情報を表示しています。

担当取扱い店舗情報

取扱い店舗画像
株式会社 あすなろ不動産
TEL: 0258-89-7495
所在地: 新潟県長岡市袋町1丁目1081-22リバティープラザ袋町101号室
交通: 長岡駅
営業時間: 9:00~18:00/定休日:
免許番号: 新潟県知事(3)第5224号
所属団体名: 新潟県宅地建物取引業協会 長岡支部
取引態様: 代理
ホームページ: http://asunaro-f.com/