柏崎駅近くの好立地!お買い物も便利です!
| 物件名
所在地 |
面積
間取り 所在階 |
築年数
方位 |
賃料
管理費等 共益費 |
敷金
保証金 礼金 |
種別
構造 |
|---|---|---|---|---|---|
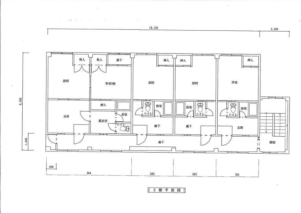
| アークビル 301号室 新潟県柏崎市幸町3-26 | 25㎡ (7.56坪) 1K 3階 | 36年 東 | 3.6万円 なし あり | 1ヶ月 なし 1ヶ月 | アパート・マンション・一戸建て 鉄骨 |
| 物件コード | 00079-100012 | ||
|---|---|---|---|
| 物件名 | アークビル | ||
| 交通 | 駅:JR柏崎駅から徒歩6分、バス:柏崎駅南口から徒歩4分 | ||
| 所在地 | 新潟県柏崎市幸町3-26 | ||
| 物件種別 | アパート・マンション・一戸建て | ||
| 総戸数 | 8戸 | ||
| 構造 | 鉄骨 | 階建 | 地上3階建 |
| 所在階/階数 | 3階/3階 | 号室 | 301号室 |
| 面積 | 25㎡ /7.56坪 | 方位 | 東 |
| 間取り | 1K (洋室:7) | ||
| 賃料 | 3.6万円/月
|
管理費 | - |
| 礼金 | 1ヶ月
|
敷金 | 1ヶ月
|
| ほか初期費用 | - | その他諸費用 | - |
| 更新料 |
11,000円
|
火災(家財)保険 |
16,000円
2年分 |
| 共益費 |
500円
|
町内費 | - |
| 駐車場 |
5,000円
敷地外 |
バイク料金 | - |
| 鍵交換費 | - | 清掃料 | - |
| 更新事務手数料 | - | ||
| 保証区分 |
連帯保証人+緊急連絡先 |
||
| 保証会社 |
区分:指定なし
- |
||
| 連帯保証人 |
区分:要 - |
||
| 仲介手数料 | - | ||
| 築年月 | 1989年3月(築36年) | ||
| 利用制限 | 法人:可、学生:可、単身者:可、二人入居:不可、ペット:不可、楽器:不可、事務所利用:不可、ルームシェア:不可 | ||
| 学校区 | 枇杷島小学校(476m)・鏡が沖中学校(791m) | ||
| 設備 | バス停近く、最寄り駅近く、日当り良好、最上階、敷地内ゴミ置き場、角住居、バストイレ別、温水洗浄便座、エアコン、都市ガス、BS端子・アンテナ、各居室照明、インターネット接続可、仲介手数料不要、一人暮らし・学生向け、予約可、お勧め物件、柏崎 大学、新潟産業大学生におすすめ、新潟工科大学生におすすめ、早期契約物件(柏崎の大学向け※柏崎のみ)、退去予定物件(柏崎大学むけ※柏崎のみ) | ||
| 入居時期 | R8.4/1以降 | ||
| 取引態様 | 貸主 | ||
| 備考 | - | ||
| 手数料負担割合/配分割合 | 貸主:-% 借主:-% / 元付:-% 客付:-% | ||
| 取り扱い会社 |
株式会社 アーク不動産 新潟県柏崎市幸町3番26アークビル101 |
||
| 情報登録日 | 2026/02/04 | 次回更新予定日 | 2026/02/23 |
|
セブン−イレブン 柏崎穂波町店(コンビニ)まで90m |
ウオロク 柏崎店(スーパー)まで370m |
※カメラのアイコンがある場合は、マウスをポイントするとその施設の画像がご覧いただけます。
| TEL: | 0257-22-6170 | |
|---|---|---|
| 所在地: | 新潟県柏崎市幸町3番26アークビル101 | |
| 交通: | 柏崎駅 | |
| 営業時間: | 9:00~17:30/定休日:土・日・祝日*3月は無休営業致します | |
| 免許番号: | 新潟県知事(7)第4045号 | |
| 所属団体名: | (公社)新潟県宅地建物取引業協会 柏崎支部 | |
| 取引態様: | 貸主 | |
| ホームページ: | http://www.a-ku.co.jp | |