











| 物件名 所在地 | 面積 間取り 所在階 | 築年数 方位 | 賃料 管理費等 共益費 | 敷金 保証金 礼金 | 種別 構造 | 
|---|---|---|---|---|---|
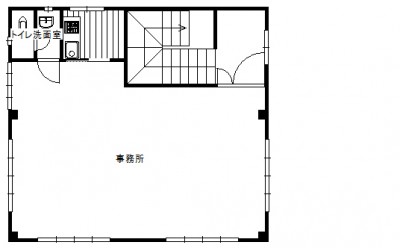
| 早川ビル 2F 新潟県長岡市喜多町304-2 | 60.98㎡ (18.44坪) - 2階 | 46年 - | 9.9万円 なし なし | 3ヶ月 なし 1ヶ月 | 事務所 鉄骨 | 
 
							
						| 物件コード | 00076-100014 | ||
|---|---|---|---|
| 物件名 | 早川ビル 2F | ||
| 交通 | 駅:上越新幹線 長岡駅から徒歩62分、バス:喜多町から徒歩4分 | ||
| 所在地 | 新潟県長岡市喜多町304-2 | ||
| 物件種別 | 事務所 | ||
| 総戸数 | - | ||
| 構造 | 鉄骨 | 階建 | 地上3階建 | 
| 所在階/階数 | 2階/3階 | 号室 | - | 
| 面積 | 60.98㎡ /18.44坪 | 方位 | - | 
| 間取り | - | ||
| 賃料 | 9.9万円/月 | 管理費 | - | 
| 礼金 | 1ヶ月 | 敷金 | 3ヶ月 | 
| ほか初期費用 | - | その他諸費用 | - | 
| 更新料 | - | 火災(家財)保険 | - | 
| 共益費 | - | 町内費 | - | 
| 駐車場 | 3台 | バイク料金 | - | 
| 鍵交換費 | - | 清掃料 | - | 
| 更新事務手数料 | - | ||
| 保証区分 | 連帯保証人のみ | ||
| 保証会社 | 区分:指定なし - | ||
| 連帯保証人 | 区分:要 - | ||
| 仲介手数料 | 99,000円 | ||
| 築年月 | 1979年10月(築46年) | ||
| 利用制限 | - | ||
| 学校区 | 日越小学校(465m)・西中学校(1,223m) | ||
| 設備 | エアコン、駐車場あり | ||
| 入居時期 | 即入居可 | ||
| 取引態様 | 仲介 | ||
| 備考 | - | ||
| 手数料負担割合/配分割合 | 貸主:-% 借主:100% / 元付:-% 客付:-% | ||
| 取り扱い会社 | 有限会社 ベスト不動産 新潟県長岡市喜多町3112番地 | ||
| 情報登録日 | 2025/01/23 | 次回更新予定日 | 2025/11/14 | 
 
							
						| TEL: | 0258-29-4353 | |
|---|---|---|
| 所在地: | 新潟県長岡市喜多町3112番地 | |
| 交通: | ||
| 営業時間: | 8:30~18:00/定休日:土日・祭日 | |
| 免許番号: | 新潟県知事(3)5006号 | |
| 所属団体名: | 新潟見宅地建物取引協会 長岡支部 | |
| 取引態様: | 仲介 | |