新潟県長岡市大手通2丁目4-1 マンション 3LDK 17万円の物件情報

長岡駅前の好立地!分譲マンション賃貸戸☆7階角部屋3LDK☆駐車場は別途契約となります。

物件名
所在地
面積
間取り
所在階
築年数
方位
賃料
管理費等
共益費
敷金
保証金
礼金
種別
構造
アルファステイツ大手通
704号室
新潟県長岡市大手通2丁目4-1
82.23㎡
(24.87坪)
3LDK
7階
3年
17万円
なし
なし
2ヶ月
なし
1ヶ月
アパート・マンション・一戸建て
鉄筋コン
  • アルファステイツ大手通
    有限会社 グリーン土地
  • この物件を問い合わせる/無料
  • TEL: 0258-32-1222 0258-32-1222

物件画像

外観
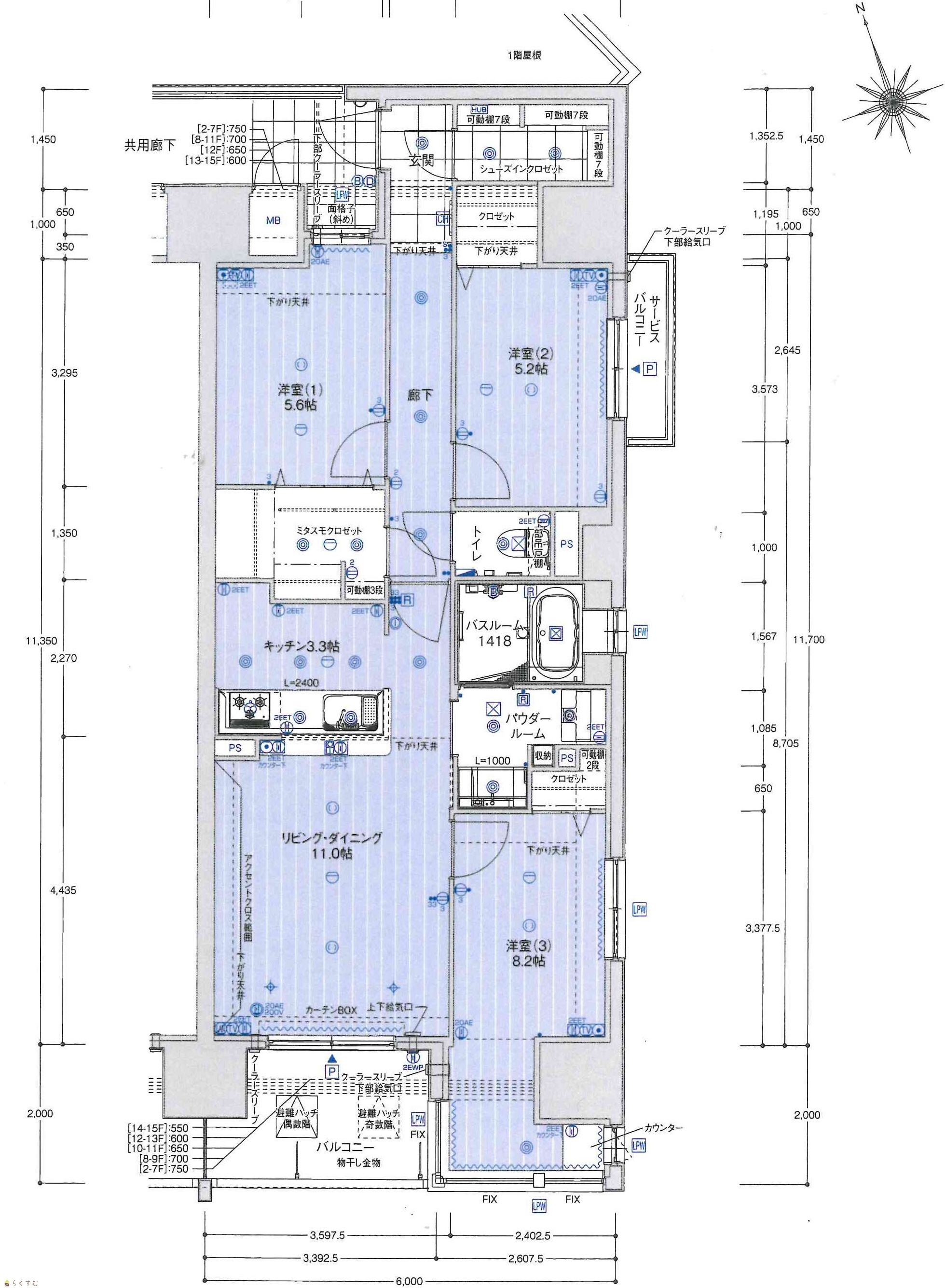
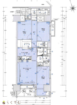
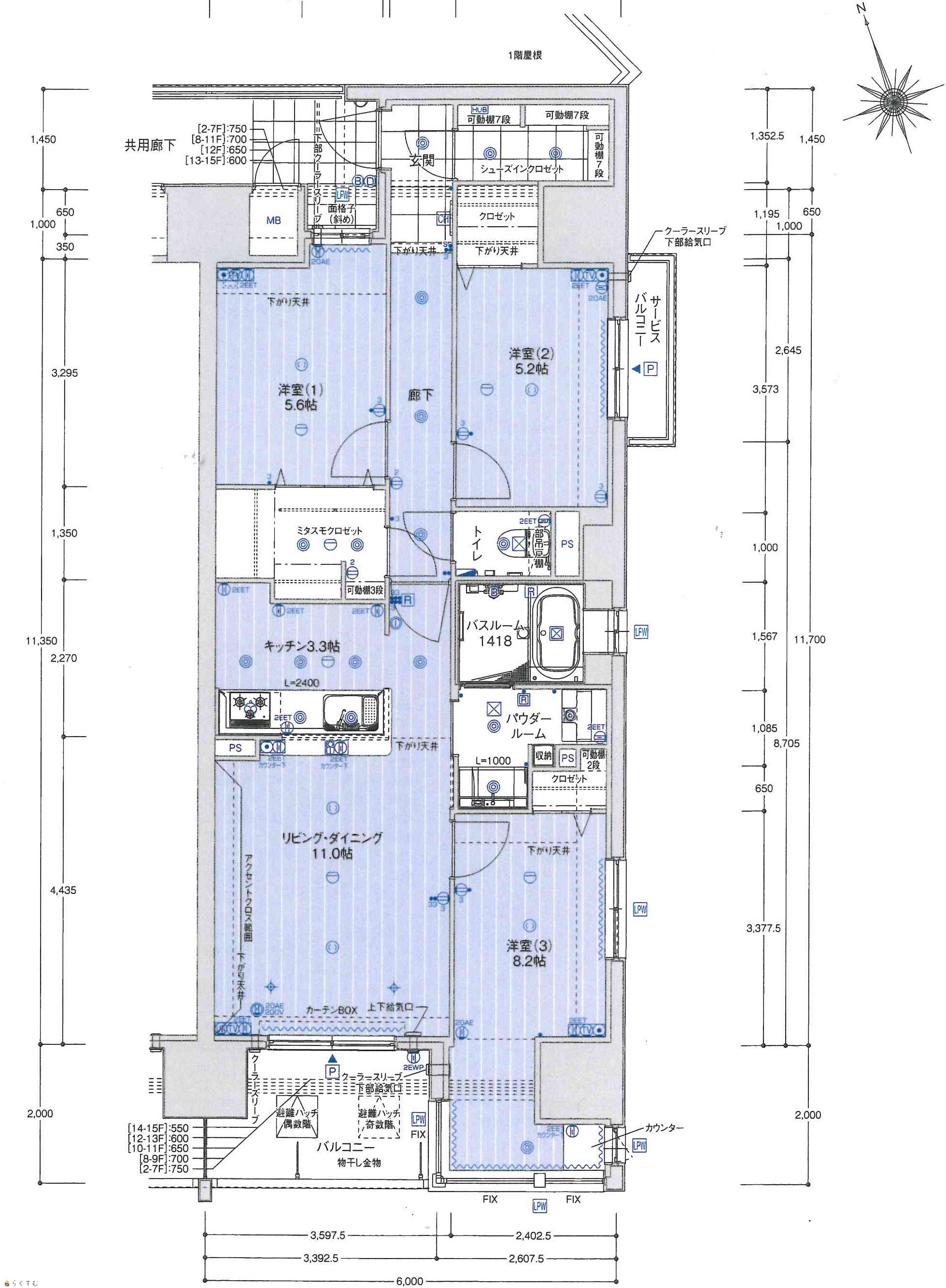
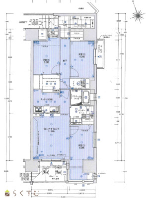
間取り
物件画像
※画像クリックで拡大表示
長岡駅徒歩5分
物件画像
※画像クリックで拡大表示
東南角部屋
詳細画像
物件画像
リビング
物件画像
8.2帖洋室
物件画像
5.2帖洋室
物件画像
5.6帖洋室
物件画像
ウォークインクローゼット
物件画像
キッチン
物件画像
浴室
物件画像
トイレ
物件画像
洗面
物件画像
玄関
物件画像
メールボックス
物件画像
洗濯機
物件画像
自転車置き場
物件画像
ベランダ
物件画像
眺望
物件画像
エントランス
物件画像
自転車置き場
物件画像
宅配BOX
物件画像
ロビー
360度画像
洋室
※下のリンクをクリックすると、上の画像が切り替わります。

インターネットエクスプローラーでは360°画像は閲覧できません。それ以外のブラウザでご覧下さい。

360度画像を詳しく見る


物件概要

長岡駅前の好立地!分譲マンション賃貸戸☆7階角部屋3LDK☆
物件コード 00071-100541
物件名 アルファステイツ大手通
交通 駅:上越新幹線 長岡駅から徒歩5分
所在地 新潟県長岡市大手通2丁目4-1
物件種別 アパート・マンション・一戸建て
総戸数 56戸
構造 鉄筋コン 階建 地上15階建
所在階/階数 7階/15階 号室 704号室
面積 82.23㎡ /24.87坪 方位
間取り 3LDK (洋室:5.6、5.2、8.2)
LD11.0 K3.3
賃料 17万円/月
管理費 -
礼金 1ヶ月
敷金 2ヶ月
ほか初期費用 - その他諸費用 2年更新時更新料:新賃料の1ヶ月分
更新料 - 火災(家財)保険 15,000円
2年間
共益費 - 町内費 -
駐車場 - バイク料金 -
鍵交換費 - 清掃料 -
更新事務手数料 -
保証区分 連帯保証人のみ
保証会社 区分:指定なし
-
連帯保証人 区分:要
-
仲介手数料 187,000円
築年月 2022年11月(築3年)
利用制限 -
学校区 阪之上小学校(781m)・東中学校(1,344m)
設備 バス停近く、最寄り駅近く、日当り良好、エレベーター、屋上、宅配BOX、敷地内ゴミ置き場、築5年以内、駐輪場あり、南向き、角住居、ダブルロックキー、防犯カメラ、管理人常駐、エントランスオートロック、システムキッチン、対面キッチン、食器洗浄乾燥機、ガスコンロ 設置済み、3口コンロ、バストイレ別、浴室1坪以上、追いだき機能付き、浴室乾燥機、温水洗浄便座、洗面所独立、エアコン、都市ガス、バルコニー、全居室フローリング、洗濯機置場 室内、脱衣所、玄関収納、ウォークインクロゼット、クロゼット、クロゼット3ヵ所、TVモニター付きインターホン、インターネット無料、即入居可、保証会社利用可能、新築・築浅物件
入居時期 即入居可
取引態様 仲介
備考 駐車場は別途契約が必要です。2年更新時に新賃料の1ヶ月分の更新料がかかります。
手数料負担割合/配分割合 貸主:-%   借主:100% / 元付:50%   客付:50%  
取り扱い会社

有限会社 グリーン土地

新潟県長岡市本町3-1-9 アーバンヒルズ長岡1F

情報登録日 2025/07/08 次回更新予定日 2026/01/05
  • アルファステイツ大手通
    有限会社 グリーン土地
  • この物件を問い合わせる/無料
  • TEL: 0258-32-1222 0258-32-1222

この物件の地図・周辺情報・行政情報

この物件の周辺情報・行政情報を詳しく見る
【周辺情報】
物件の近くにあるコンビニや銀行・学校など、アイコン付のマップで詳しく表示できます!
【行政情報】
水道料や下水道料・ガス料金など、暮らしに関係のある情報を表示しています。
セブン-イレブン アオーレ長岡店(コンビニ)まで270m

※カメラのアイコンがある場合は、マウスをポイントするとその施設の画像がご覧いただけます。


担当取扱い店舗情報

取扱い店舗画像
有限会社 グリーン土地
TEL: 0258-32-1222
所在地: 新潟県長岡市本町3-1-9 アーバンヒルズ長岡1F
交通: 長岡駅
営業時間: 9:00~17:00/定休日:日・祝・祭日
免許番号: 新潟県知事(10)3038号
所属団体名: 新潟県宅地建物取引協会 長岡支部
取引態様: 仲介
ホームページ: https://www.greentoti.com