新潟県新潟市中央区東堀前通5番町403 マンション 1R 3.3万円の物件情報

物件名
所在地
面積
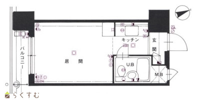
間取り
所在階
築年数
方位
賃料
管理費等
共益費
敷金
保証金
礼金
種別
構造
コア東堀
605号室
新潟県新潟市中央区東堀前通5番町403
18.73㎡
(5.66坪)
1R
6階
39年
3.3万円
なし
なし
なし
なし
なし
アパート・マンション・一戸建て
鉄骨鉄筋コン
  • コア東堀
    ドアーズ株式会社 新潟店
  • この物件を問い合わせる/無料
  • TEL: 025-374-4280 025-374-4280

物件画像

外観
間取り
物件画像
※画像クリックで拡大表示
物件画像
※画像クリックで拡大表示
詳細画像
物件画像
物件画像
物件画像
物件画像
物件画像
バス、トイレ
物件画像
シューズボックス
物件画像
エアコン
物件画像
物件画像
洗濯機置き場
物件画像
物件画像
駐輪場
物件画像
物件画像
駐輪場
物件画像
セブンイレブン新潟古町通4番町店
物件画像
新潟市中央区役所
物件画像
新潟中郵便局


物件概要

物件コード 00069-100351
物件名 コア東堀
交通 駅:白山から徒歩23分
所在地 新潟県新潟市中央区東堀前通5番町403
物件種別 アパート・マンション・一戸建て
総戸数 -
構造 鉄骨鉄筋コン 階建 地上11階建
所在階/階数 6階/11階 号室 605号室
面積 18.73㎡ /5.66坪 方位
間取り 1R
賃料 3.3万円/月
管理費 -
礼金 - 敷金 -
ほか初期費用 - その他諸費用 -
更新料 - 火災(家財)保険 -
共益費 - 町内費 -
駐車場 - バイク料金 -
鍵交換費 - 清掃料 -
住宅保険料 19,000円
ライフサポート料 800円
更新事務手数料 -
保証区分 保証会社のみ
保証会社 区分:加入要
保証会社名:ジェイリース
-
家賃保証金 保証会社:ジェイリース㈱ 保証料:初回保証料負担なし、月額保証料600円
連帯保証人 区分:-
-
仲介手数料 -
築年月 1985年12月(築39年)
利用制限 ルームシェア:不可
学校区 -
設備 外壁タイル張り、エレベーター、駐輪場あり、防犯カメラ、エアコン、都市ガス、バルコニー、洗濯機置場 室内、BS端子・アンテナ、インターネット 光
入居時期 2025年11月下旬
取引態様 代理
備考 -
手数料負担割合/配分割合 貸主:-%   借主:-% / 元付:-%   客付:-%  
取り扱い会社

ドアーズ株式会社 新潟店

新潟県新潟市中央区女池神明1丁目8-19

情報登録日 2025/11/03 次回更新予定日 2025/11/17
  • コア東堀
    ドアーズ株式会社 新潟店
  • この物件を問い合わせる/無料
  • TEL: 025-374-4280 025-374-4280

この物件の地図・周辺情報・行政情報

この物件の周辺情報・行政情報を詳しく見る
【周辺情報】
物件の近くにあるコンビニや銀行・学校など、アイコン付のマップで詳しく表示できます!
【行政情報】
水道料や下水道料・ガス料金など、暮らしに関係のある情報を表示しています。

担当取扱い店舗情報

取扱い店舗画像
ドアーズ株式会社 新潟店
TEL: 025-374-4280
所在地: 新潟県新潟市中央区女池神明1丁目8-19
交通: 新潟交通バス女池線で「女池西二丁目」下車徒歩1分
営業時間: 9:00~18:00/定休日:水曜日 祝日 年末年始・GW・お盆
免許番号: 新潟県知事(10)第2891号
所属団体名: 新潟県宅地建物取引業協会 新潟支部
取引態様: 代理
ホームページ: http://www.doors-net.jp/