
敷地内駐車場約33台可能!燕三条駅徒歩約5分












| 物件名 所在地 | 面積 間取り 所在階 | 築年数 方位 | 賃料 管理費等 共益費 | 敷金 保証金 礼金 | 種別 構造 | 
|---|---|---|---|---|---|
| ◆貸店舗事務所◆三条市須頃2丁目N・Kビル 新潟県三条市須頃2丁目36 | 578.2㎡ (174.9坪) - - | 27年 - | 90万円 なし なし | 270万円 なし なし | 事務所 鉄骨 | 
 
							
						| 物件コード | 00052-100205 | ||
|---|---|---|---|
| 物件名 | ◆貸店舗事務所◆三条市須頃2丁目N・Kビル | ||
| 交通 | 駅:上越新幹線 燕三条駅から徒歩4分、バス:須頃郷第3号公園から徒歩5分 | ||
| 所在地 | 新潟県三条市須頃2丁目36 | ||
| 物件種別 | 事務所 | ||
| 総戸数 | - | ||
| 構造 | 鉄骨 | 階建 | 地上2階建 | 
| 所在階/階数 | - | 号室 | - | 
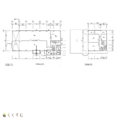
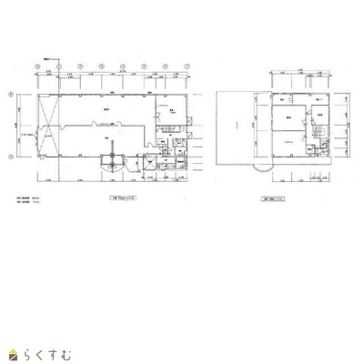
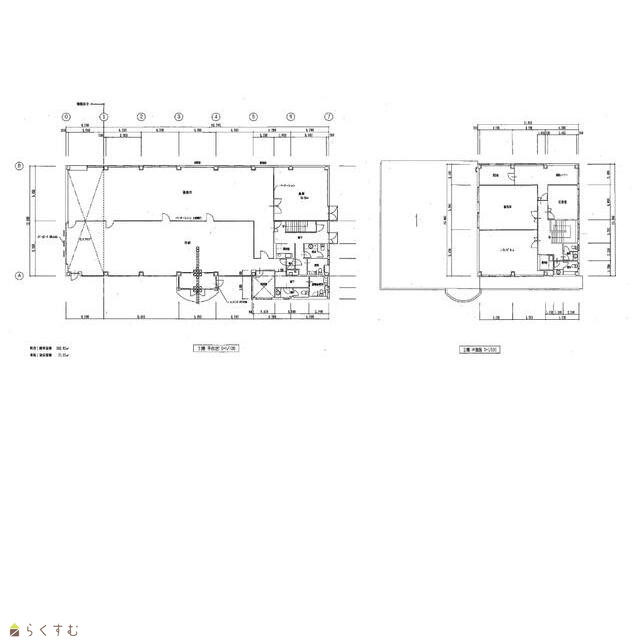
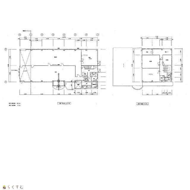
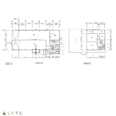
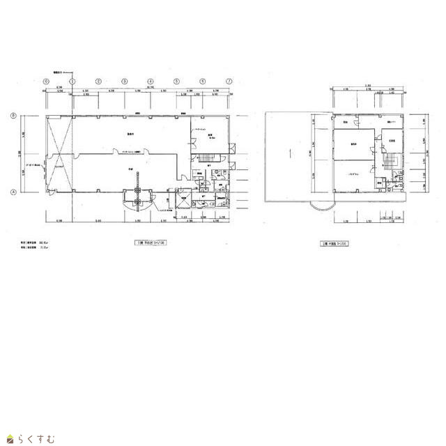
| 面積 | 578.2㎡ /174.9坪 | 方位 | - | 
| 間取り | - | ||
| 賃料 | 90万円/月 | 管理費 | - | 
| 礼金 | - | 敷金 | 270万円 | 
| ほか初期費用 | - | その他諸費用 | - | 
| 更新料 | - | 火災(家財)保険 | 加入必須 | 
| 共益費 | - | 町内費 | - | 
| 駐車場 |  | バイク料金 | - | 
| 鍵交換費 | - | 清掃料 | - | 
| 更新事務手数料 | - | ||
| 保証区分 | 連帯保証人のみ | ||
| 保証会社 | 区分:指定なし - | ||
| 連帯保証人 | 区分:要 審査内容により、保証会社利用の可能性有り。その際、初回保証料:月額総額の100%。継続保証料:月額総額の10%(年)必要。 | ||
| 仲介手数料 | 990,000円 | ||
| 築年月 | 1998年8月(築27年) | ||
| 利用制限 | - | ||
| 学校区 | 須頃小学校(1,449m)・大島中学校(1,480m) | ||
| 設備 | 1階、2階以上、融雪設備あり、男女トイレ別、給湯、駐車場あり | ||
| 入居時期 | 相談 | ||
| 取引態様 | 仲介 | ||
| 備考 | ●飲食店不可。 ●融雪付駐車場(融雪管理、電気料は借主負担)。 ●浄化槽維持管理は借主負担。 ●火災報知器、消火器の点検等を含めた消防の点検整備費用は借主負担。 ●高圧電力契約が必要の為、契約開始迄約2ヶ月かかる可能性有。 | ||
| 手数料負担割合/配分割合 | 貸主:0% 借主:100% / 元付:50% 客付:50% | ||
| 取り扱い会社 | 株式会社 ユタカ不動産 新潟県三条市旭町1丁目1-19-3ユタカビル | ||
| 情報登録日 | 2025/02/17 | 次回更新予定日 | 2025/11/15 | 
 
							
						| TEL: | 0256-35-5825 | |
|---|---|---|
| 所在地: | 新潟県三条市旭町1丁目1-19-3ユタカビル | |
| 交通: | 東三条駅 | |
| 営業時間: | 9:00~18:00/定休日:火曜・祭日 | |
| 免許番号: | 新潟見知事(9)第3203号 | |
| 所属団体名: | 新潟県宅地建物取引協会 三条支部 | |
| 取引態様: | 仲介 | |
| ホームページ: | http://www.yutakafudousan.com | |