新潟県柏崎市藤井556-20 一戸建て 3DK 5.5万円の物件情報

田尻小学校・東中学校校区!車複数台停められるカーポート付き!ファミリー向けの貸家!

物件名
所在地
面積
間取り
所在階
築年数
方位
賃料
管理費等
共益費
敷金
保証金
礼金
種別
構造
髙野貸家(藤井)
1号室
新潟県柏崎市藤井556-20
92.75㎡
(28.05坪)
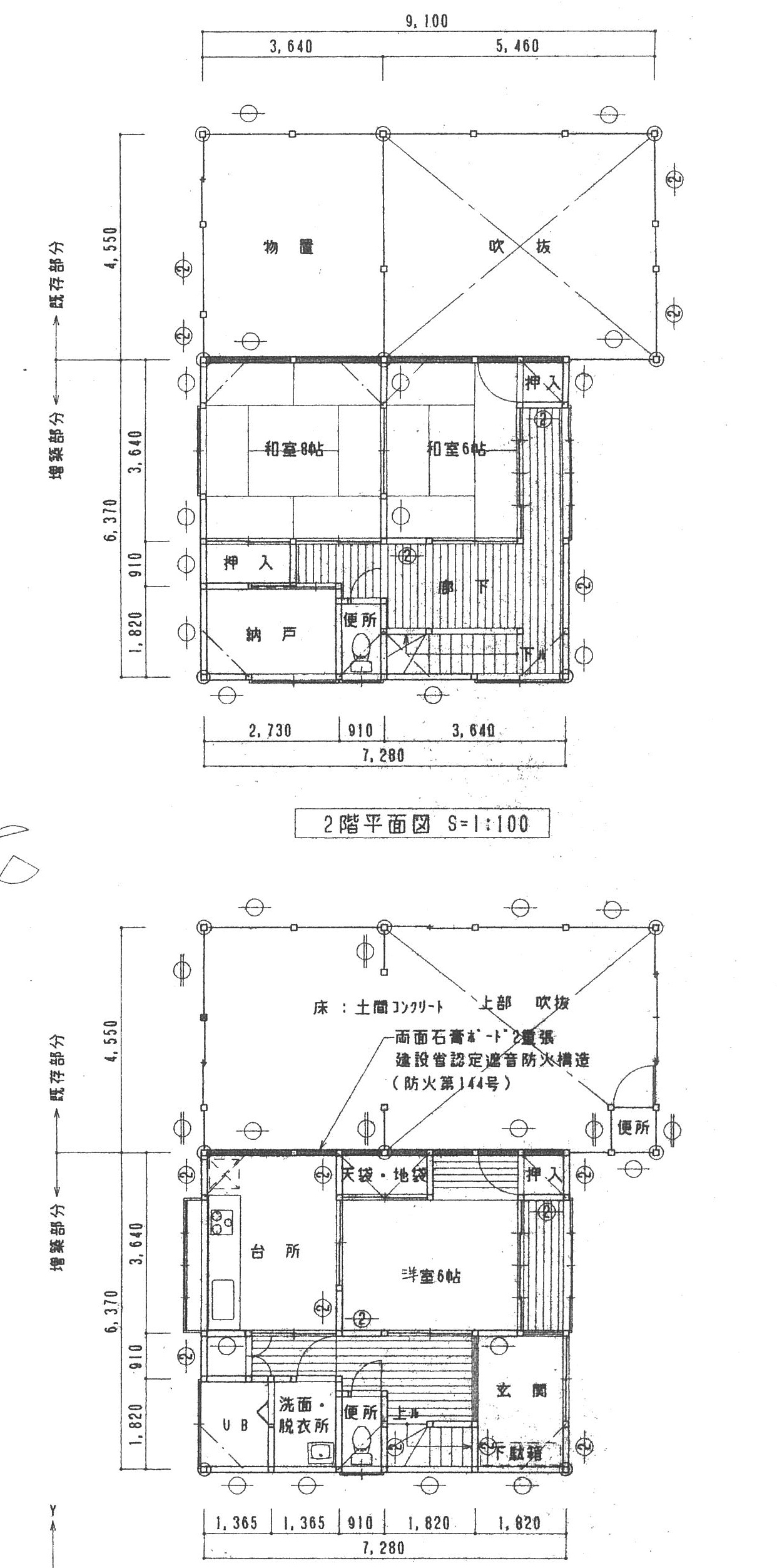
3DK
-
29年
指定なし
5.5万円
なし
なし
なし
なし
なし
アパート・マンション・一戸建て
木造
  • 髙野貸家(藤井)
    八幡開発株式会社
  • この物件を問い合わせる/無料
  • TEL: 0257-22-3357 0257-22-3357

物件画像

外観
間取り
物件画像
※画像クリックで拡大表示
外観写真
物件画像
※画像クリックで拡大表示
間取り
詳細画像
物件画像
玄関
物件画像
下駄箱
物件画像
洋室
物件画像
洋室
物件画像
キッチン
物件画像
洗面所
物件画像
洗濯機置き場
物件画像
バスルーム
物件画像
トイレ
物件画像
収納
物件画像
和室
物件画像
和室
物件画像
和室
物件画像
トイレ
物件画像
カーポート
物件画像
印刷用地図


物件概要

物件コード 00050-100724
物件名 髙野貸家(藤井)
交通 駅:信越線 茨目駅から徒歩18分、バス:柏崎から徒歩10分
所在地 新潟県柏崎市藤井556-20
物件種別 アパート・マンション・一戸建て
総戸数 1戸
構造 木造 階建 地上2階建
所在階/階数 - 号室 1号室
面積 92.75㎡ /28.05坪 方位 指定なし
間取り 3DK
賃料 5.5万円/月
管理費 -
礼金 -
敷金 -
ほか初期費用 - その他諸費用 あり
更新料 - 火災(家財)保険 9,000円~/年
共益費 - 町内費 別途
駐車場
賃料に込み
バイク料金 -
鍵交換費 27,500円
清掃料 -
更新事務手数料 -
保証区分 保証会社+緊急連絡先
保証会社 区分:加入要
保証会社名:CIZ
初回保証料77%+審査事務手数料1,100円+振込手数料330円。更新料2,000円/年
家賃保証金 43,780円
連帯保証人 区分:不要
-
仲介手数料 60,500円
築年月 1997年4月(築29年)
利用制限 法人:可、二人入居:可、ペット:不可、楽器:不可
学校区 田尻小学校(1,932m)・東中学校(1,512m)
設備 駐車2台可、駐車3台以上可、カーポートあり、駐車場1台無料、駐車場2台無料、バストイレ別、追いだき機能付き、トイレ2か所以上、温水洗浄便座、洗面所独立、エアコン、都市ガス、TVモニター付きインターホン、各居室照明、保証会社利用可能、礼金不要、敷金・礼金不要、保証会社要加入
入居時期 令和8年1月中旬~
取引態様 仲介
備考 ※外観写真、間取り図に倉庫がありますが、こちらは賃貸に含まれておりません。
手数料負担割合/配分割合 貸主:-%   借主:-% / 元付:-%   客付:-%  
取り扱い会社

八幡開発株式会社

新潟県柏崎市横山440番地1

情報登録日 2025/12/18 次回更新予定日 2026/04/15
  • 髙野貸家(藤井)
    八幡開発株式会社
  • この物件を問い合わせる/無料
  • TEL: 0257-22-3357 0257-22-3357

この物件の地図・周辺情報・行政情報

この物件の周辺情報・行政情報を詳しく見る
【周辺情報】
物件の近くにあるコンビニや銀行・学校など、アイコン付のマップで詳しく表示できます!
【行政情報】
水道料や下水道料・ガス料金など、暮らしに関係のある情報を表示しています。
なぎさ調剤薬局(ドラッグストア)まで920m
はらクリニック(病院)まで930m

※カメラのアイコンがある場合は、マウスをポイントするとその施設の画像がご覧いただけます。


担当取扱い店舗情報

取扱い店舗画像
八幡開発株式会社
TEL: 0257-22-3357
所在地: 新潟県柏崎市横山440番地1
交通: 柏崎駅
営業時間: 9:00~17:30/定休日:日曜・祭日
免許番号: 新潟県知事(14)第1377号
所属団体名: 新潟県宅地建物取引業協会 柏崎支部
取引態様: 仲介
ホームページ: http://www.hatiman.jp