新潟県長岡市宝4丁目1-7 倉庫・工場・その他 77万円の物件情報

物件名
所在地
面積
間取り
所在階
築年数
方位
賃料
管理費等
共益費
敷金
保証金
礼金
種別
構造
宝四丁目工場・倉庫
新潟県長岡市宝4丁目1-7
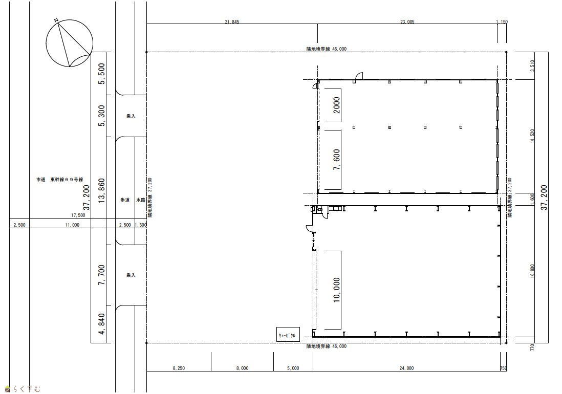
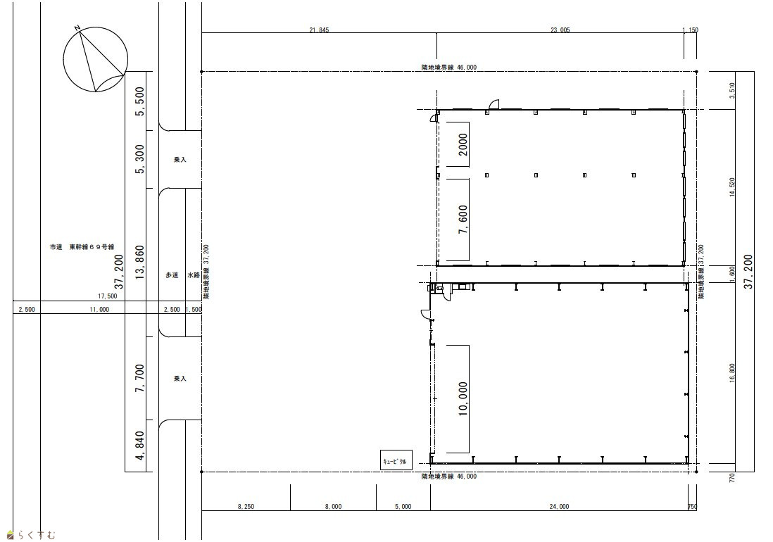
403.2㎡
(121.96坪)
-
-
30年
-
77万円
なし
なし
3ヶ月
なし
なし
倉庫・工場・その他
鉄骨
  • 宝四丁目工場・倉庫
    ドアーズ 株式会社
  • この物件を問い合わせる/無料
  • TEL: 0258-21-3751 0258-21-3751

物件画像

外観
間取り
物件画像
※画像クリックで拡大表示
外観写真
物件画像
※画像クリックで拡大表示
敷地内配置図
詳細画像
物件画像
建物①
物件画像
建物①
物件画像
建物①
物件画像
建物②
物件画像
建物②
物件画像
建物②
物件画像
建物②
物件画像
地図画像


物件概要

物件コード 00043-104515
物件名 宝四丁目工場・倉庫
交通 駅:信越線 北長岡駅から徒歩38分、バス:宝4丁目から徒歩2分
所在地 新潟県長岡市宝4丁目1-7
物件種別 倉庫・工場・その他
総戸数 -
構造 鉄骨 階建 地上1階建
所在階/階数 - 号室 -
面積 403.2㎡ /121.96坪 方位 -
間取り -
賃料 77万円/月
管理費 -
礼金 - 敷金 3ヶ月
ほか初期費用 - その他諸費用 -
更新料 - 火災(家財)保険 -
共益費 - 町内費 -
駐車場 - バイク料金 -
鍵交換費 - 清掃料 -
更新事務手数料 -
保証区分 保証会社+緊急連絡先
保証会社 区分:加入要
保証会社名:ジェイリース
-
家賃保証金 770,000円
連帯保証人 区分:不要
-
仲介手数料 770,000円
築年月 1995年6月(築30年)
利用制限 -
学校区 黒条小学校(1,369m)・堤岡中学校(1,332m)
設備 -
入居時期 2026年4月以降
取引態様 仲介
備考 [敷地内に下記別棟あり]
倉庫 鉄骨造亜鉛メッキ鋼板葺平家建 面積:324㎡ 1975年築
手数料負担割合/配分割合 貸主:0%   借主:100% / 元付:50%   客付:50%  
取り扱い会社

ドアーズ 株式会社

新潟県長岡市古正寺町108-1

情報登録日 2025/09/16 次回更新予定日 2025/12/29
  • 宝四丁目工場・倉庫
    ドアーズ 株式会社
  • この物件を問い合わせる/無料
  • TEL: 0258-21-3751 0258-21-3751

この物件の地図・周辺情報・行政情報

この物件の周辺情報・行政情報を詳しく見る
【周辺情報】
物件の近くにあるコンビニや銀行・学校など、アイコン付のマップで詳しく表示できます!
【行政情報】
水道料や下水道料・ガス料金など、暮らしに関係のある情報を表示しています。

担当取扱い店舗情報

取扱い店舗画像
ドアーズ 株式会社
TEL: 0258-21-3751
所在地: 新潟県長岡市古正寺町108-1
交通: 越後交通「西病院前」バス停徒歩約5分
営業時間: 9:00~18:00/定休日:年末・年始・GW・夏期(お盆)
免許番号: 新潟県知事(10)第2891号
所属団体名: 新潟県宅地建物取引業協会 長岡支部
取引態様: 仲介
ホームページ: https://www.doors-net.jp