消雪設備有り 舗装済み
| 物件名
所在地 |
面積
間取り 所在階 |
築年数
方位 |
賃料
管理費等 共益費 |
敷金
保証金 礼金 |
種別
構造 |
|---|---|---|---|---|---|
| 寿2丁目駐車場 新潟県長岡市寿2-157-2 | - - - | - - | 0.65万円 なし なし | なし なし なし | 駐車場 - |
| 敷金・礼金なし | |||
| 物件コード | 00043-104471 | ||
|---|---|---|---|
| 物件名 | 寿2丁目駐車場 | ||
| 交通 | 駅:信越線 北長岡駅から徒歩26分、バス:北園橋から徒歩1分 | ||
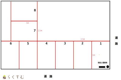
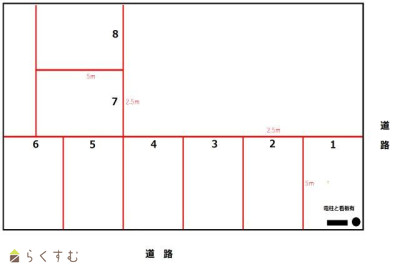
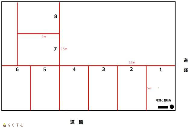
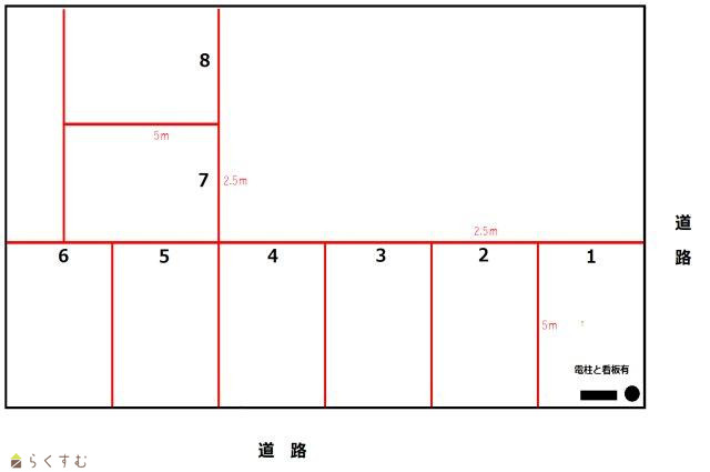
| 所在地 | 新潟県長岡市寿2-157-2 | ||
| 物件種別 | 駐車場 | ||
| 総戸数 | - | ||
| 構造 | - | 階建 | - |
| 所在階/階数 | - | 号室 | - |
| 面積 | - | 方位 | - |
| 間取り | - | ||
| 賃料 | 0.65万円/月
|
管理費 | - |
| 礼金 | - | 敷金 | - |
| ほか初期費用 | - | その他諸費用 | - |
| 更新料 | - | 火災(家財)保険 | - |
| 共益費 | - | 町内費 | - |
| 駐車場 | - | バイク料金 | - |
| 鍵交換費 | - | 清掃料 | - |
| 口座振替料 |
330円
|
||
| 更新事務手数料 | - | ||
| 保証区分 |
保証会社+緊急連絡先 |
||
| 保証会社 |
区分:加入要
保証会社名:ジェイリース - |
||
| 家賃保証金 |
5,200円
|
||
| 連帯保証人 |
区分:不要 - |
||
| 仲介手数料 |
6,501円
|
||
| 築年月 | - | ||
| 利用制限 | - | ||
| 学校区 | 新町小学校(1,397m)・北中学校(287m) | ||
| 設備 | 舗装、即利用可能、融雪井戸あり、保証会社要加入 | ||
| 入居時期 | 即入居可 | ||
| 取引態様 | 代理 | ||
| 備考 | - | ||
| 手数料負担割合/配分割合 | 貸主:0% 借主:100% / 元付:50% 客付:50% | ||
| 取り扱い会社 |
ドアーズ 株式会社 新潟県長岡市古正寺町108-1 |
||
| 情報登録日 | 2025/04/10 | 次回更新予定日 | 2026/02/16 |
| TEL: | 0258-21-3751 | |
|---|---|---|
| 所在地: | 新潟県長岡市古正寺町108-1 | |
| 交通: | 越後交通「西病院前」バス停徒歩約5分 | |
| 営業時間: | 9:00~18:00/定休日:年末・年始・GW・夏期(お盆) | |
| 免許番号: | 新潟県知事(10)第2891号 | |
| 所属団体名: | 新潟県宅地建物取引業協会 長岡支部 | |
| 取引態様: | 代理 | |
| ホームページ: | https://www.doors-net.jp | |