
主要道路沿い 2階貸事務所













| 物件名 所在地 | 面積 間取り 所在階 | 築年数 方位 | 賃料 管理費等 共益費 | 敷金 保証金 礼金 | 種別 構造 | 
|---|---|---|---|---|---|
| 小千谷市城内4丁目ビル2階 貸事務所 A号室 新潟県小千谷市城内4丁目11番23号A室 | 65.52㎡ (19.81坪) - 2階 | 25年 - | 9.9万円 なし なし | 2ヶ月 なし 1ヶ月 | 事務所 鉄骨 | 
 
							
						| ガラス面も多く明るいお部屋です | |||
| 物件コード | 00041-100613 | ||
|---|---|---|---|
| 物件名 | 小千谷市城内4丁目ビル2階 貸事務所 | ||
| 交通 | 駅:上越線 小千谷駅から徒歩42分、バス:総合体育館入口から徒歩5分 | ||
| 所在地 | 新潟県小千谷市城内4丁目11番23号A室 | ||
| 物件種別 | 事務所 | ||
| 総戸数 | - | ||
| 構造 | 鉄骨 | 階建 | 地上3階建 | 
| 所在階/階数 | 2階/3階 | 号室 | A号室 | 
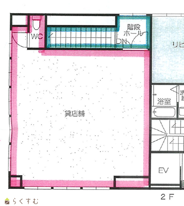
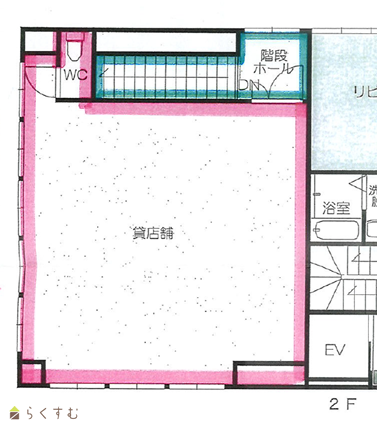
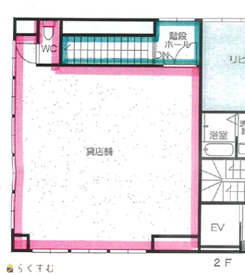
| 面積 | 65.52㎡ /19.81坪 | 方位 | - | 
| 間取り | - | ||
| 賃料 | 9.9万円/月 | 管理費 | - | 
| 礼金 | 1ヶ月 | 敷金 | 2ヶ月 利用形態により相談 | 
| ほか初期費用 | - | その他諸費用 | - | 
| 更新料 | - | 火災(家財)保険 | - | 
| 共益費 | - | 町内費 | - | 
| 駐車場 | - | バイク料金 | - | 
| 鍵交換費 | - | 清掃料 | - | 
| 更新事務手数料 | - | ||
| 保証区分 | 連帯保証人+保証会社 | ||
| 保証会社 | 区分:加入要 保証会社名:日本セーフティ 賃料1カ月・更新料有り(1年) | ||
| 連帯保証人 | 区分:要 - | ||
| 仲介手数料 | 99,000円 | ||
| 築年月 | 2000年10月(築25年) | ||
| 利用制限 | 法人:可、学生:相談、楽器:相談、事務所利用:可、ルームシェア:相談 | ||
| 学校区 | 小千谷小学校(915m)・小千谷中学校(278m) | ||
| 設備 | - | ||
| 入居時期 | 即入居可 | ||
| 取引態様 | 仲介 | ||
| 備考 | 利用形態により諸費用等要相談 | ||
| 手数料負担割合/配分割合 | 貸主:-% 借主:100% / 元付:50% 客付:50% | ||
| 取り扱い会社 | 株式会社 高野不動産販売 新潟県長岡市柏町1丁目4-33 | ||
| 情報登録日 | 2025/02/23 | 次回更新予定日 | 2025/11/14 | 
 
							
						| デイリーヤマザキ 小千谷桜町店(コンビニ)まで250m 原信 桜町店(スーパー)まで560m クスリのアオキ 小千谷店(ドラッグストア)まで900m | にたはらこどもクリニック(病院)まで160m 城川郵便局(郵便局)まで810m | 
※カメラのアイコンがある場合は、マウスをポイントするとその施設の画像がご覧いただけます。
 
						| TEL: | 0258-33-7711 | |
|---|---|---|
| 所在地: | 新潟県長岡市柏町1丁目4-33 | |
| 交通: | 長岡駅 | |
| 営業時間: | 9:00~17:30/定休日:土曜日・日曜日・祝日・お盆・年末年始 | |
| 免許番号: | 新潟県知事(1)第5568号 | |
| 所属団体名: | (公社)新潟県宅地建物取引業協会,(公社)首都圏不動産公正取引協議会,(公財)日本賃貸住宅管理協会 | |
| 取引態様: | 仲介 | |
| ホームページ: | https://www.tknf.co.jp | |