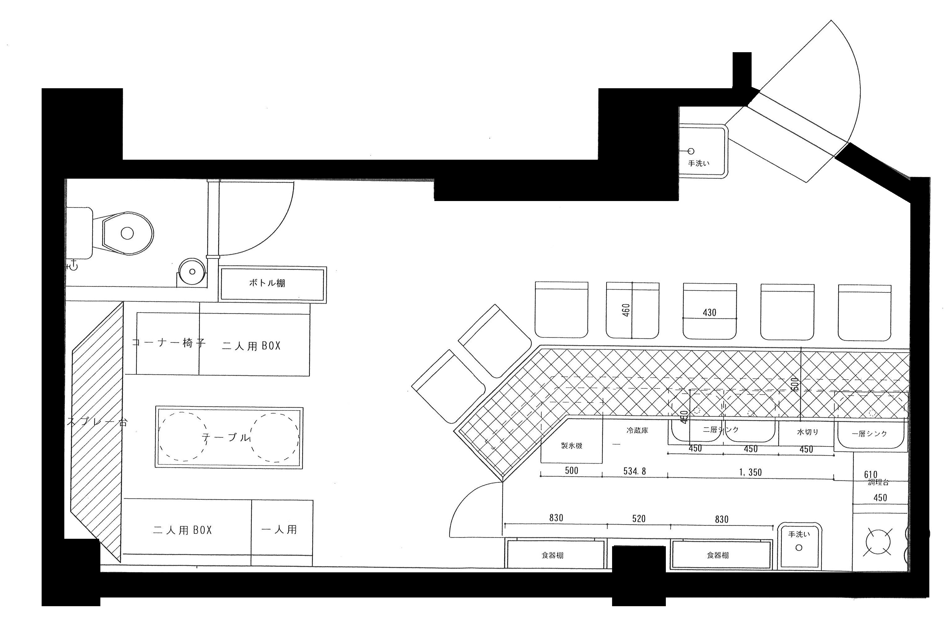
カウンター7席+ボックス席有り!落ち着いた雰囲気の内装です。
| 物件名
所在地 |
面積
間取り 所在階 |
築年数
方位 |
賃料
管理費等 共益費 |
敷金
保証金 礼金 |
種別
構造 |
|---|---|---|---|---|---|
| ドルミー有楽ビル 201号室 新潟県長岡市坂之上町1-1-3 | 24.31㎡ (7.35坪) - - | 60年 - | 7.7万円 7,300円/月 なし | 21万円 なし 7.7万円 | 店舗 鉄筋コン |
| 物件コード | 00040-100621 | ||
|---|---|---|---|
| 物件名 | ドルミー有楽ビル | ||
| 交通 | 駅:信越線 長岡駅から徒歩9分、バス:大手通2丁目から徒歩3分 | ||
| 所在地 | 新潟県長岡市坂之上町1-1-3 | ||
| 物件種別 | 店舗 | ||
| 総戸数 | - | ||
| 構造 | 鉄筋コン | 階建 | 地上2階建 |
| 所在階/階数 | - | 号室 | 201号室 |
| 面積 | 24.31㎡ /7.35坪 | 方位 | - |
| 間取り | - | ||
| 賃料 | 7.7万円/月
|
管理費 |
7,300円/月
|
| 礼金 | 7.7万円
|
敷金 | 21万円
|
| ほか初期費用 | - | その他諸費用 | 保証会社要加入(賃料の0.8~1ヶ月) |
| 更新料 | - | 火災(家財)保険 | - |
| 共益費 | - | 町内費 | - |
| 駐車場 | - | バイク料金 | - |
| 鍵交換費 | - | 清掃料 | - |
| 更新事務手数料 | - | ||
| 保証区分 |
連帯保証人+保証会社 |
||
| 保証会社 |
区分:加入要
保証会社名:日本セーフティ - |
||
| 家賃保証金 |
84,300円
|
||
| 連帯保証人 |
区分:要 - |
||
| 仲介手数料 | - | ||
| 築年月 | 1965年1月(築60年) | ||
| 利用制限 | - | ||
| 学校区 | 阪之上小学校(839m)・東中学校(1,439m) | ||
| 設備 | 2階以上、エアコン、即引き渡し可、飲食店可、居抜き | ||
| 入居時期 | 即入居可 | ||
| 取引態様 | 貸主 | ||
| 備考 | - | ||
| 手数料負担割合/配分割合 | 貸主:-% 借主:100% / 元付:-% 客付:100% | ||
| 取り扱い会社 |
髙頭不動産 株式会社 新潟県長岡市千歳1-3-25 |
||
| 情報登録日 | 2024/07/03 | 次回更新予定日 | 2025/12/22 |
| TEL: | 0120-1818-27 | |
|---|---|---|
| 所在地: | 新潟県長岡市千歳1-3-25 | |
| 交通: | 長岡駅 | |
| 営業時間: | 8時30分~17時30分(大手支店は9時~18時)/定休日:本社:土日祝日(事前予約での対応可能)、支店:日曜祝日第5土曜(毎年2月下旬から3月は休みなし) | |
| 免許番号: | 新潟県知事(17)第191号 | |
| 所属団体名: | 新潟県宅地建物取引協会 長岡支部 | |
| 取引態様: | 貸主 | |
| ホームページ: | http://www.takato-f.com | |