
1階は事務所または倉庫として利用できます。













| 物件名 所在地 | 面積 間取り 所在階 | 築年数 方位 | 賃料 管理費等 共益費 | 敷金 保証金 礼金 | 種別 構造 | 
|---|---|---|---|---|---|
| 割町新田事務所倉庫 新潟県刈羽郡刈羽村割町新田830-1 | 316.71㎡ (95.8坪) - 2階 | 41年 - | 15万円 なし なし | 3ヶ月 なし なし | 事務所 鉄骨 | 
 
							
						| 2階は倉庫としての利用がお勧めです。 | |||
| 物件コード | 00031-100161 | ||
|---|---|---|---|
| 物件名 | 割町新田事務所倉庫 | ||
| 交通 | 駅:越後線 荒浜駅から徒歩22分、バス:割町新田集落センター前から徒歩2分 | ||
| 所在地 | 新潟県刈羽郡刈羽村割町新田830-1 | ||
| 物件種別 | 事務所 | ||
| 総戸数 | - | ||
| 構造 | 鉄骨 | 階建 | 地上2階建 | 
| 所在階/階数 | 2階/2階 | 号室 | - | 
| 面積 | 316.71㎡ /95.8坪 | 方位 | - | 
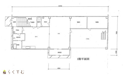
| 間取り | LDK (和室:10畳、6畳、6畳、6畳、8畳、8畳、6畳) LDK約23畳 浴室1階に1か所・2階に1か所 トイレ各階に1か所 2階各室入口ドアは鍵付エアコン付 駐車場6~7台 | ||
| 賃料 | 15万円/月 | 管理費 | - | 
| 礼金 | - | 敷金 | 3ヶ月 | 
| ほか初期費用 | - | その他諸費用 | - | 
| 更新料 | - | 火災(家財)保険 | 要加入 | 
| 共益費 | - | 町内費 | - | 
| 駐車場 | 6~7台可無料 | バイク料金 | - | 
| 鍵交換費 | - | 清掃料 | - | 
| 更新事務手数料 | - | ||
| 保証区分 | 連帯保証人のみ | ||
| 保証会社 | 区分:指定なし - | ||
| 連帯保証人 | 区分:要 - | ||
| 仲介手数料 | 165,000円 | ||
| 築年月 | 1983年12月(築41年) | ||
| 利用制限 | 事務所利用:可 | ||
| 学校区 | 刈羽小学校(997m)・刈羽中学校(1,177m) | ||
| 設備 | 駐車場あり | ||
| 入居時期 | 即入居可 | ||
| 取引態様 | 仲介 | ||
| 備考 | - | ||
| 手数料負担割合/配分割合 | 貸主:-% 借主:100% / 元付:50% 客付:50% | ||
| 取り扱い会社 | 株式会社 ウェルネスホーム 新潟県長岡市大山1-8-5 | ||
| 情報登録日 | 2025/10/22 | 次回更新予定日 | 2025/11/14 | 
 
							
						 
						| TEL: | 0258-29-0003 | |
|---|---|---|
| 所在地: | 新潟県長岡市大山1-8-5 | |
| 交通: | ||
| 営業時間: | 9:30~18:00/定休日:日曜・祭日 土曜は不定休 | |
| 免許番号: | 新潟県知事(8)3794号 | |
| 所属団体名: | 公益社団法人 全国宅地建物取引業保証協会 | |
| 取引態様: | 仲介 | |
| ホームページ: | http://www.wellnesshome.co.jp/ | |