新潟県長岡市表町1丁目10-7 マンション 3LDK 9.5万円の物件情報

新幹線長岡駅近く!

物件名
所在地
面積
間取り
所在階
築年数
方位
賃料
管理費等
共益費
敷金
保証金
礼金
種別
構造
リバーヴュー長岡 3LDK 
306号室
新潟県長岡市表町1丁目10-7
68.43㎡
(20.7坪)
3LDK
3階
34年
北東
9.5万円
なし
なし
1ヶ月
なし
1ヶ月
アパート・マンション・一戸建て
鉄骨鉄筋コン
  • リバーヴュー長岡 3LDK 
    越後交通 株式会社
  • この物件を問い合わせる/無料
  • TEL: 0258-30-0114 0258-30-0114

物件画像

外観
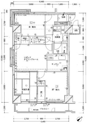
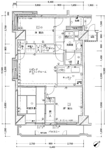
間取り
物件画像
※画像クリックで拡大表示
外観
物件画像
※画像クリックで拡大表示
図面の反転間取りになります。
詳細画像
物件画像
洋室
物件画像
角部屋
物件画像
和室
物件画像
キッチン
物件画像
印刷用地図


物件概要

新幹線長岡駅近く!
物件コード 00027-100065
物件名 リバーヴュー長岡 3LDK 
交通 駅:上越新幹線 長岡駅から徒歩10分、バス:大手通2丁目から徒歩4分
所在地 新潟県長岡市表町1丁目10-7
物件種別 アパート・マンション・一戸建て
総戸数 170戸
構造 鉄骨鉄筋コン 階建 地上14階建
所在階/階数 3階/14階 号室 306号室
面積 68.43㎡ /20.7坪 方位 北東
間取り 3LDK (和室:6畳) (洋室:6、6)
LDK 7.6
エアコン2台/B・T別室/給湯/BS端子/インターフォン
賃料 9.5万円/月
管理費 -
礼金 1ヶ月
敷金 1ヶ月
ほか初期費用 - その他諸費用 -
更新料 家賃の1か月分 火災(家財)保険 加入のこと
共益費 - 町内費 -
駐車場 - バイク料金 -
鍵交換費 - 清掃料 -
更新事務手数料 -
保証区分 連帯保証人のみ
保証会社 区分:指定なし
-
連帯保証人 区分:要
連帯保証人が不在の場合は、保証会社と契約必要です。
仲介手数料 104,500円
築年月 1991年10月(築34年)
利用制限 シニア(60歳以上)入居:相談、ペット:不可、楽器:不可、事務所利用:相談、ルームシェア:相談
学校区 表町小学校(698m)・東中学校(1,323m)
設備 バス停近く、最寄り駅近く、エレベーター、宅配BOX、敷地内ゴミ置き場、24時間ゴミ出し可、駐輪場あり、角住居、エントランスオートロック、システムキッチン、ガスコンロ 設置済み、3口コンロ、バストイレ別、温水洗浄便座、暖房便座、エアコン2基、都市ガス、下水、バルコニー、全室収納、クロゼット2ヵ所、押入、シューズBOX、BS端子・アンテナ、TVモニター付きインターホン、各居室照明、即入居可、保証会社利用可能、高齢者相談、バルコニー/エレベーター/エントランス オートロック/都市ガス 現在駐車場満車の為、空区画なし
入居時期 即入居可
取引態様 代理
備考 更新料新賃料1ヶ月(契約期間2年)必要です。  
駐車場が必要なお客様は近隣駐車場をお探しいたします。
※令和7年8月に一部リフォーム済。床、クロス等張替え済。
手数料負担割合/配分割合 貸主:-%   借主:-% / 元付:-%   客付:-%  
取り扱い会社

越後交通 株式会社

新潟県長岡市台町2-4-56E・PLAZA1階

情報登録日 2025/09/13 次回更新予定日 2025/11/17
  • リバーヴュー長岡 3LDK 
    越後交通 株式会社
  • この物件を問い合わせる/無料
  • TEL: 0258-30-0114 0258-30-0114

この物件の地図・周辺情報・行政情報

この物件の周辺情報・行政情報を詳しく見る
【周辺情報】
物件の近くにあるコンビニや銀行・学校など、アイコン付のマップで詳しく表示できます!
【行政情報】
水道料や下水道料・ガス料金など、暮らしに関係のある情報を表示しています。
セブン-イレブン 長岡表町店(コンビニ)まで300m
ウオロク 長岡店(スーパー)まで830m
第四北越銀行 長岡本店営業部(銀行)まで240m
ゆうちょ銀行 長岡店(銀行)まで450m
郵便ポスト(郵便局)まで220m

※カメラのアイコンがある場合は、マウスをポイントするとその施設の画像がご覧いただけます。


担当取扱い店舗情報

取扱い店舗画像
越後交通 株式会社
TEL: 0258-30-0114
所在地: 新潟県長岡市台町2-4-56E・PLAZA1階
交通: 長岡駅東口バスロータリー前
営業時間: 10:00~18:00/定休日:なし ※年末年始、GWお盆期間は休日がございます。
免許番号: 新潟県知事(16)566号
所属団体名: 新潟県宅地建物取引業協会 長岡支部
取引態様: 代理
ホームページ: http://www.echigo-kotsu.co.jp/fudosan/