
古正寺エリアに事務所をお探しの方にお勧めです!各室ALSOK警備がついているのでセキュリティー面も安心♪上層階の為、窓からの眺望も良好です★













| 物件名 所在地 | 面積 間取り 所在階 | 築年数 方位 | 賃料 管理費等 共益費 | 敷金 保証金 礼金 | 種別 構造 | 
|---|---|---|---|---|---|
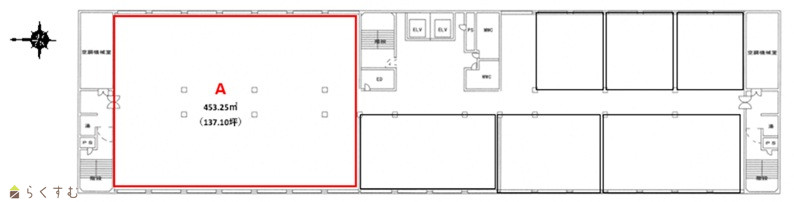
| 千秋が原ビル 6A号室 新潟県長岡市千秋2丁目2788番地1 | 453.25㎡ (137.1坪) - 6階 | 40年 - | 75.46万円 なし あり | 150.92万円 なし なし | 事務所 鉄骨鉄筋コン | 
 
							
						| 物件コード | 00024-100806 | ||
|---|---|---|---|
| 物件名 | 千秋が原ビル | ||
| 交通 | 駅:上越新幹線 長岡駅から徒歩42分、バス:本社営業所前から徒歩3分 | ||
| 所在地 | 新潟県長岡市千秋2丁目2788番地1 | ||
| 物件種別 | 事務所 | ||
| 総戸数 | - | ||
| 構造 | 鉄骨鉄筋コン | 階建 | 地上8階建 | 
| 所在階/階数 | 6階/8階 | 号室 | 6A号室 | 
| 面積 | 453.25㎡ /137.1坪 | 方位 | - | 
| 間取り | - | ||
| 賃料 | 75.46万円/月 (税込) | 管理費 | - | 
| 礼金 | - | 敷金 | 150.92万円 | 
| ほか初期費用 | - | その他諸費用 | - | 
| 更新料 | - | 火災(家財)保険 | 借主負担 | 
| 共益費 | 241,400円 | 町内費 | - | 
| 駐車場 | 7,700円 (税込)/1台 | バイク料金 | - | 
| 鍵交換費 | - | 清掃料 | - | 
| 更新事務手数料 | - | ||
| 保証区分 | 連帯保証人のみ | ||
| 保証会社 | 区分:指定なし - | ||
| 連帯保証人 | 区分:要 - | ||
| 仲介手数料 | 754,600円 | ||
| 築年月 | 1985年11月(築40年) | ||
| 利用制限 | - | ||
| 学校区 | 大島小学校(1,186m)・大島中学校(1,046m) | ||
| 設備 | 2階以上、エアコン、男女トイレ別、即引き渡し可、エレベーター、給湯、駐車場あり | ||
| 入居時期 | 即入居可 | ||
| 取引態様 | 仲介 | ||
| 備考 | ・電気、ガス、水道は別途請求 ・給湯室、トイレは共同利用 ・ALSOKの警備あり ・貸室内装工事及び撤去費用は借主負担 ・定期借家契約(2年) ・現況渡し ・フロアを間仕切りして196㎡で契約する事も可能。 (間仕切工事は貸主負担。詳細はお問い合わせください。) ・賃料、駐車場料金は税込の金額です。 | ||
| 手数料負担割合/配分割合 | 貸主:-% 借主:100% / 元付:50% 客付:50% | ||
| 取り扱い会社 | 株式会社 エヌ・アール・ケー総合企画 新潟県長岡市与板町与板119番地 | ||
| 情報登録日 | 2025/09/18 | 次回更新予定日 | 2025/11/15 | 
 
							
						| TEL: | 0258-41-5336 | |
|---|---|---|
| 所在地: | 新潟県長岡市与板町与板119番地 | |
| 交通: | ||
| 営業時間: | 9:30~17:30/定休日:土日・祝祭日 (電話対応しております) | |
| 免許番号: | 新潟県知事(4)第4750号 | |
| 所属団体名: | 新潟県宅地建物取引業協会 長岡支部 | |
| 取引態様: | 仲介 | |
| ホームページ: | http://www.nrk-sogo.jp | |