新潟県長岡市弓町2丁目2番8号 店舗 8万円の物件情報

長岡駅徒歩9分!角地!

物件名
所在地
面積
間取り
所在階
築年数
方位
賃料
管理費等
共益費
敷金
保証金
礼金
種別
構造
原貸店舗
新潟県長岡市弓町2丁目2番8号
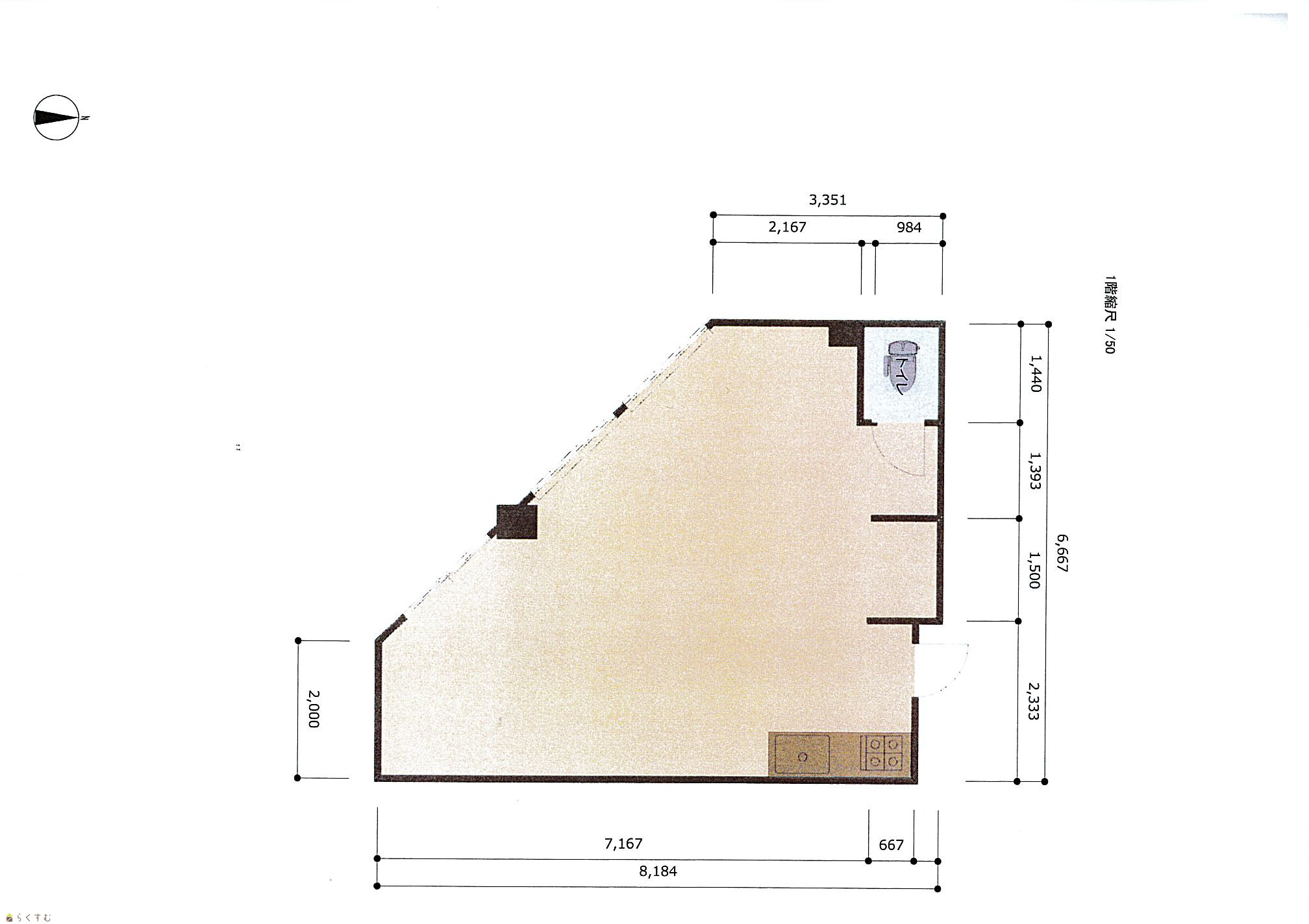
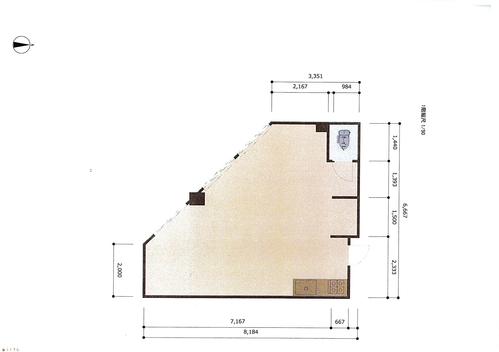
42.44㎡
(12.83坪)
-
1階
55年
-
8万円
なし
なし
3ヶ月
なし
なし
店舗
鉄筋コン
  • 原貸店舗
    株式会社 新日本地所
  • この物件を問い合わせる/無料
  • TEL: 0258-33-8166 0258-33-8166

物件画像

外観
間取り
物件画像
※画像クリックで拡大表示
外観
物件画像
※画像クリックで拡大表示
間取図
詳細画像
物件画像
店舗
物件画像
店舗④
物件画像
トイレ
物件画像
地図画像


物件概要

長岡駅徒歩9分!角地!
物件コード 00012-100326
物件名 原貸店舗
交通 駅:上越新幹線 長岡駅から徒歩9分
所在地 新潟県長岡市弓町2丁目2番8号
物件種別 店舗
総戸数 -
構造 鉄筋コン 階建 地上2階建
所在階/階数 1階/2階 号室 -
面積 42.44㎡ /12.83坪 方位 -
間取り -
賃料 8万円/月
管理費 -
礼金 - 敷金 3ヶ月
ほか初期費用 - その他諸費用 -
更新料 - 火災(家財)保険 什器備品に対する家財保険加入
共益費 - 町内費 別途
駐車場 - バイク料金 -
鍵交換費 - 清掃料 -
更新事務手数料 -
保証区分 保証会社のみ
保証会社 区分:加入要
保証会社名:ジェイリース
保証限度額 4か月分 入居時から退去まで
家賃保証金 88,000円
連帯保証人 区分:不要
-
仲介手数料 88,000円
築年月 1970年11月(築55年)
利用制限 -
学校区 四郎丸小学校(512m)・南中学校(569m)
設備 1階、即引き渡し可
入居時期 即入居可
取引態様 仲介
備考 電気・水道家主より、請求。
手数料負担割合/配分割合 貸主:100%   借主:0% / 元付:50%   客付:50%  
取り扱い会社

株式会社 新日本地所

新潟県長岡市殿町1-3-3

情報登録日 2024/09/04 次回更新予定日 2026/05/22
  • 原貸店舗
    株式会社 新日本地所
  • この物件を問い合わせる/無料
  • TEL: 0258-33-8166 0258-33-8166

この物件の地図・周辺情報・行政情報

この物件の周辺情報・行政情報を詳しく見る
【周辺情報】
物件の近くにあるコンビニや銀行・学校など、アイコン付のマップで詳しく表示できます!
【行政情報】
水道料や下水道料・ガス料金など、暮らしに関係のある情報を表示しています。

担当取扱い店舗情報

取扱い店舗画像
株式会社 新日本地所
TEL: 0258-33-8166
所在地: 新潟県長岡市殿町1-3-3
交通: 長岡駅より350m
営業時間: 9:00~17:00/定休日:土曜・日曜・祭日 但し3月は土曜営業
免許番号: 新潟県知事(14)第1068号
所属団体名: 新潟県宅地建物取引業協会 長岡支部
取引態様: 仲介