
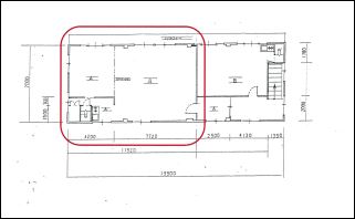
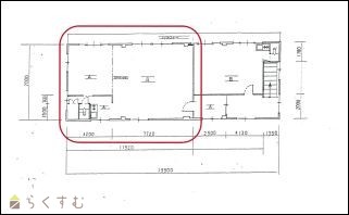
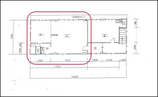
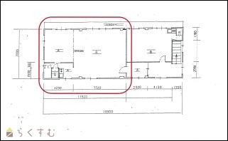
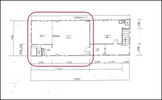
95.87㎡ 広いスペースの事務所です。













| 物件名 所在地 | 面積 間取り 所在階 | 築年数 方位 | 賃料 管理費等 共益費 | 敷金 保証金 礼金 | 種別 構造 | 
|---|---|---|---|---|---|
| 東蔵王2丁目 『吉沢ビル 右棟3階』 A号室 A号室 新潟県長岡市東蔵王2-6-26 | 95.87㎡ (29坪) - 3階 | 39年 - | 6万円 なし なし | 3ヶ月 なし なし | 事務所 鉄骨 | 
 
							
						| 駐車場1台6,000円かかります | |||
| 物件コード | 00011-100396 | ||
|---|---|---|---|
| 物件名 | 東蔵王2丁目 『吉沢ビル 右棟3階』 A号室 | ||
| 交通 | 駅:信越線 北長岡駅から徒歩30分、バス:北中学校前から徒歩3分 | ||
| 所在地 | 新潟県長岡市東蔵王2-6-26 | ||
| 物件種別 | 事務所 | ||
| 総戸数 | - | ||
| 構造 | 鉄骨 | 階建 | 地上3階建 | 
| 所在階/階数 | 3階/3階 | 号室 | A号室 | 
| 面積 | 95.87㎡ /29坪 | 方位 | - | 
| 間取り | - | ||
| 賃料 | 6万円/月 | 管理費 | - | 
| 礼金 | - | 敷金 | 3ヶ月 | 
| ほか初期費用 | - | その他諸費用 | 融雪電気代別途必要 | 
| 更新料 | - | 火災(家財)保険 | 加入の事 | 
| 共益費 | - | 町内費 | - | 
| 駐車場 | - | バイク料金 | - | 
| 鍵交換費 | - | 清掃料 | - | 
| 更新事務手数料 | - | ||
| 保証区分 | 連帯保証人+緊急連絡先 | ||
| 保証会社 | 区分:指定なし - | ||
| 連帯保証人 | 区分:要 - | ||
| 仲介手数料 | 66,000円 | ||
| 築年月 | 1986年2月(築39年) | ||
| 利用制限 | - | ||
| 学校区 | 新町小学校(927m)・北中学校(211m) | ||
| 設備 | 最上階、融雪設備あり、エアコン、給湯、駐車場あり | ||
| 入居時期 | 相談 | ||
| 取引態様 | 代理 | ||
| 備考 | 融雪電気代別途必要 賃料 消費税がかかります。 | ||
| 手数料負担割合/配分割合 | 貸主:-% 借主:100% / 元付:50% 客付:50% | ||
| 取り扱い会社 | ㈱スタッフサイトウ不動産部 新潟県長岡市蔵王2丁目4番17号 | ||
| 情報登録日 | 2025/10/20 | 次回更新予定日 | 2025/11/14 | 
 
							
						| TEL: | 0258-24-0623 | |
|---|---|---|
| 所在地: | 新潟県長岡市蔵王2丁目4番17号 | |
| 交通: | JR北長岡駅 | |
| 営業時間: | 8:30~17:30/定休日:第2・4土曜・日曜・祭日 | |
| 免許番号: | 新潟県知事(2)第5364号 | |
| 所属団体名: | 新潟県宅地建物取引業協会 長岡支部 | |
| 取引態様: | 代理 | |
| ホームページ: | http://hokuetsu-fudousan.com | |