三ツ郷屋にある単身用アパート
| 物件名
							 所在地  | 
							面積
							 間取り 所在階  | 
							築年数
							 方位  | 
							賃料
							 管理費等 共益費  | 
							敷金
							 保証金 礼金  | 
							種別
							 構造  | 
						
|---|---|---|---|---|---|
| ハイクレスト16 110号室 110号室 新潟県長岡市三ツ郷屋1丁目11-5  | 26.44㎡ (7.99坪) 1K 1階  | 29年 指定なし  | 3.5万円 なし なし  | なし なし なし  | アパート・マンション・一戸建て 木造  | 
						
| 物件コード | 00004-100345 | ||
|---|---|---|---|
| 物件名 | ハイクレスト16 110号室 | ||
| 交通 | 駅:長岡駅、バス:大島4丁目から徒歩4分 | ||
| 所在地 | 新潟県長岡市三ツ郷屋1丁目11-5 | ||
| 物件種別 | アパート・マンション・一戸建て | ||
| 総戸数 | - | ||
| 構造 | 木造 | 階建 | 地上2階建 | 
| 所在階/階数 | 1階/2階 | 号室 | 110号室 | 
| 面積 | 26.44㎡ /7.99坪 | 方位 | 指定なし | 
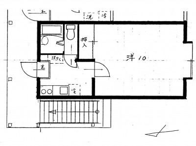
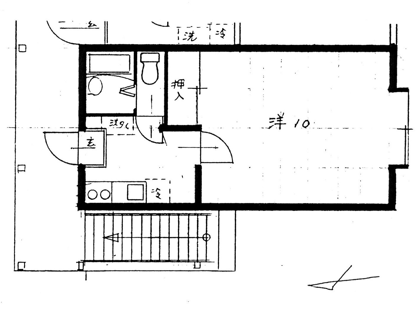
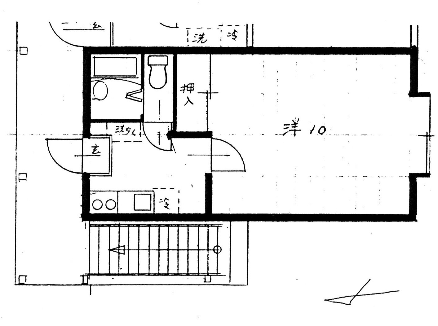
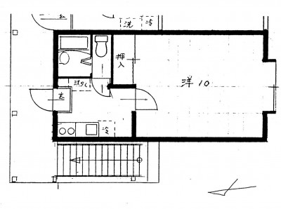
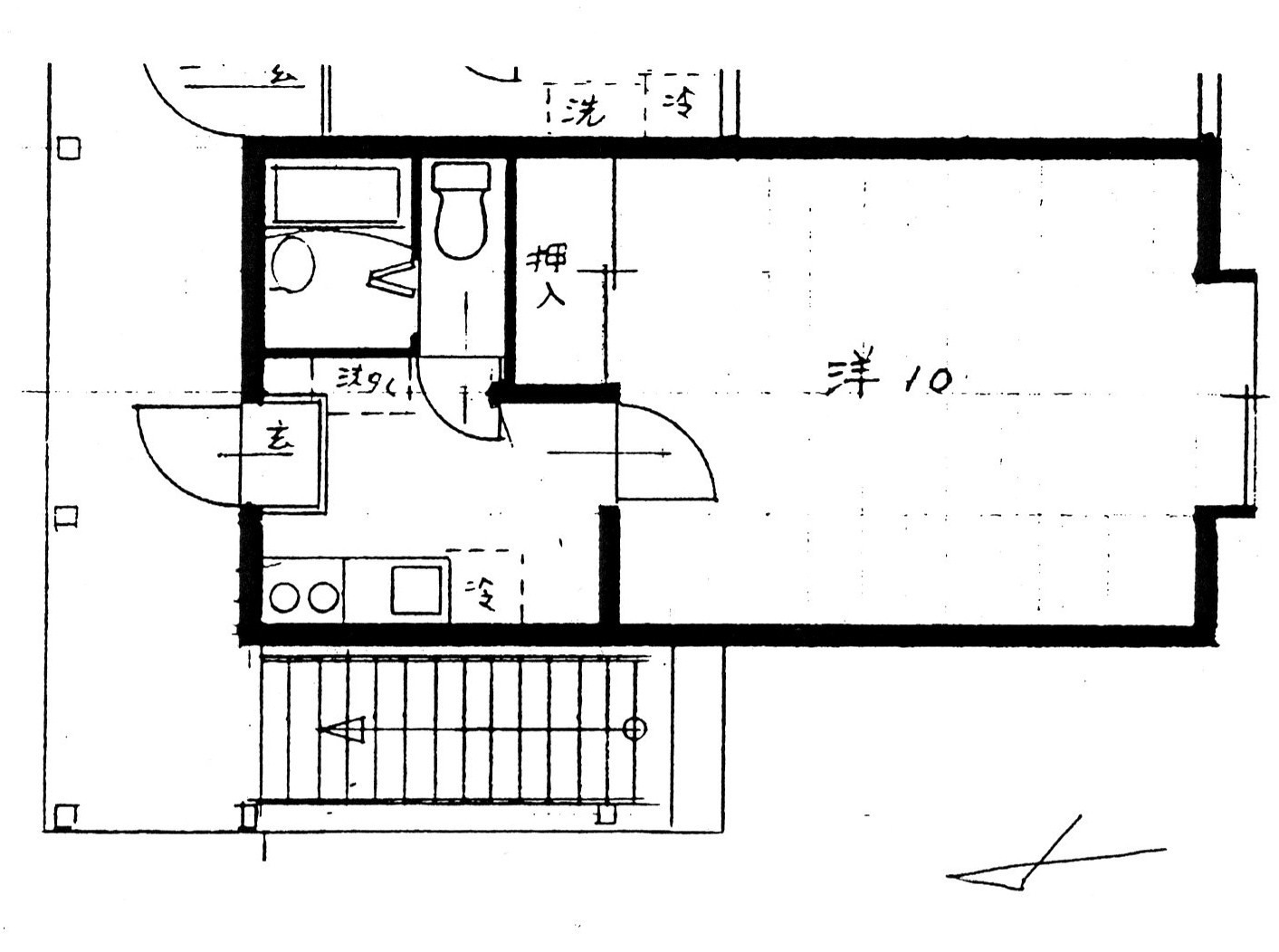
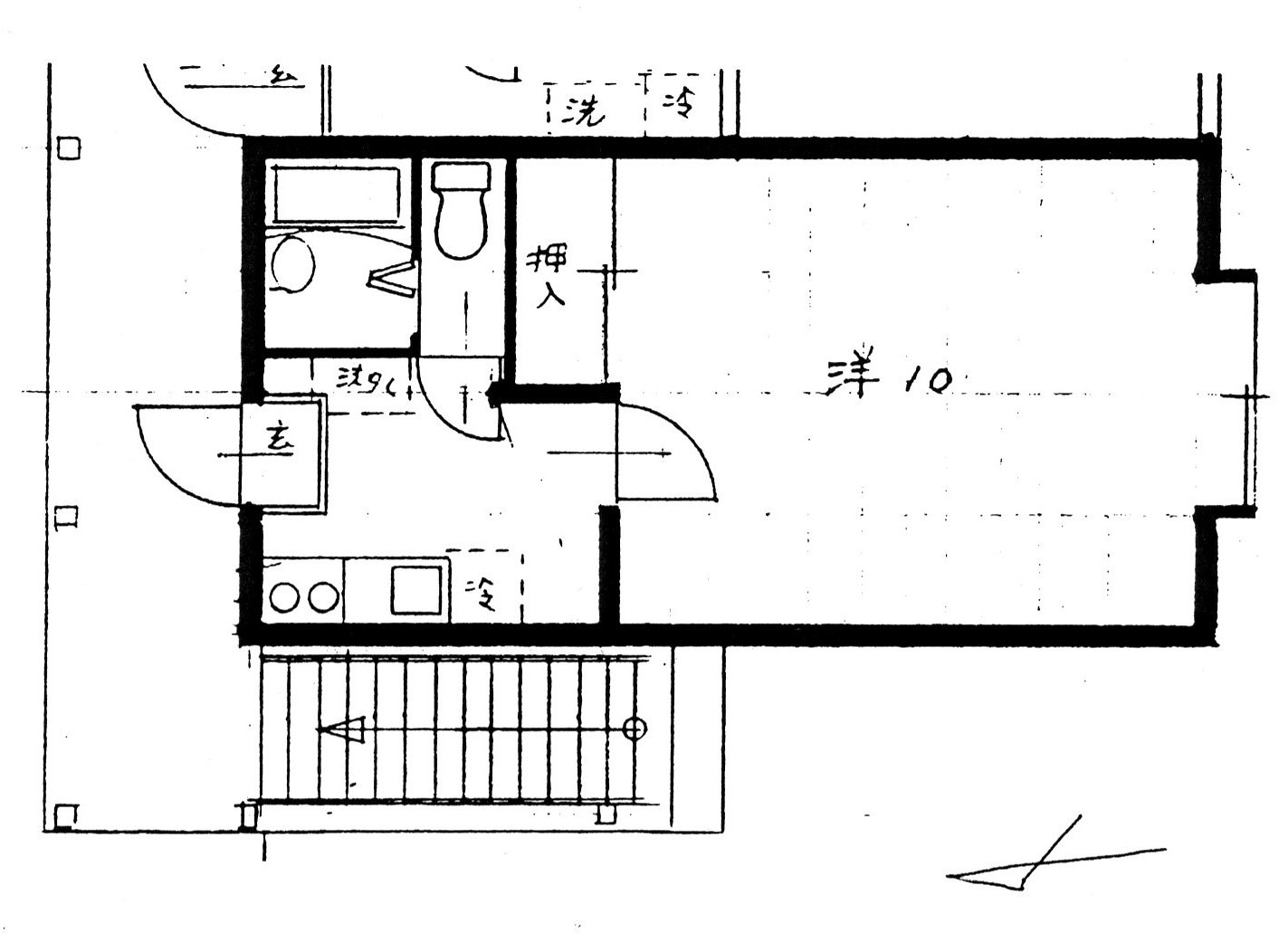
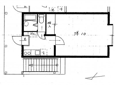
| 間取り | 1K (洋室:10) | ||
| 賃料 | 3.5万円/月
								
								 | 
							管理費 | - | 
| 礼金 | -
								
								 | 
							敷金 | - | 
| ほか初期費用 | - | その他諸費用 | - | 
| 更新料 | - | 火災(家財)保険 | 要加入 | 
| 共益費 | - | 町内費 | 
																									
										400円
										 | 
						
| 駐車場 | 
																									
										
										 付無料  | 
							
														バイク料金 | - | 
| 鍵交換費 | 
																									
										17,600円
										 | 
							清掃料 | - | 
| 更新事務手数料 | - | ||
| 保証区分 | 
								保証会社+緊急連絡先 | 
						||
| 保証会社 | 
							   区分:加入要
							   
							  	 							    保証会社名:ジェイリース ①Jフラット 初回保証料 月額の総賃料70%、継続保証料 月額440円 ②学生プラン 初回保証料 一律 1万円、継続保証料 月額600円 ③留学生 連帯保証人 学校、敷金 5万円、保証会社無し  | 
							
						||
| 家賃保証金 | 
							24,780円							
															 | 
						||
| 連帯保証人 | 
							   区分:不要 -  | 
						||
| 仲介手数料 | 
								
																	38,500円
									 | 
							
						||
| 築年月 | 1995年12月(築29年) | ||
| 利用制限 | 二人入居:不可、ペット:不可、楽器:不可、ルームシェア:不可 | ||
| 学校区 | 大島小学校(377m)・大島中学校(565m) | ||
| 設備 | 閑静な住宅街、バス停近く、駐車場1台無料、角住居、バストイレ別、エアコン、都市ガス、全居室フローリング、洗濯機置場 室内、押入、各居室照明、即入居可、敷金・礼金不要、一人暮らし・学生向け、保証会社要加入 | ||
| 入居時期 | 即入居可 | ||
| 取引態様 | 仲介 | ||
| 備考 | 画像と現況が異なる場合現況を優先します。 | ||
| 手数料負担割合/配分割合 | 貸主:0% 借主:100% / 元付:50% 客付:50% | ||
| 取り扱い会社 | 
								 有限会社 五十嵐商事 新潟県長岡市三ツ郷屋2丁目5-23  | 
						||
| 情報登録日 | 2025/04/25 | 次回更新予定日 | 2025/11/18 | 
| 
																		ファミリーマート 長岡大島本町店(コンビニ)まで240m ウオロク 北山店(スーパー)まで910m クスリのアオキ 大島店(ドラッグストア)まで810m  | 
																
																		長岡西病院(病院)まで640m (株)大光銀行 希望が丘支店(銀行)まで450m 長岡大島郵便局(郵便局)まで650m  | 
															
※カメラのアイコンがある場合は、マウスをポイントするとその施設の画像がご覧いただけます。
| TEL: | 0258-28-1414 | |
|---|---|---|
| 所在地: | 新潟県長岡市三ツ郷屋2丁目5-23 | |
| 交通: | 西長岡案内所バス停徒歩2分 | |
| 営業時間: | 平日9時~18時・土曜日10時~15時(3月のみ日曜、祝祭日10時~15時)/定休日:日曜、祝祭日、年末年始(12/28~1/5) | |
| 免許番号: | 新潟県知事(14)1645号 | |
| 所属団体名: | 新潟県宅地建物取引業協会 長岡支部 | |
| 取引態様: | 仲介 | |
| ホームページ: | https://ikarashi-shouji.com/ | |