物件掲載企業数:301|賃貸物件:3,182件|売買物件:3,223件|今週の登録物件:112
閲覧中のブラウザ(インターネットエクスプローラー)は非推奨ブラウザです。
物件が正しく表示されなかったり、正しく検索されない場合があります。最新のブラウザ(Google Chrome・Edgeなど)にてご利用お願いいたします。
  

新潟県上越市春日山町 店舗 55万円の物件情報

上越の中心春日山、山麓線沿いの角地♪

物件名
所在地
面積
間取り
所在階
築年数
方位
賃料
管理費等
共益費
敷金
保証金
礼金
種別
構造
春日山町2丁目貸店舗
新潟県上越市春日山町
179.75㎡
(54.37坪)
-
1階
15年
-
55万円
なし
なし
3ヶ月
なし
なし
店舗
その他
  • 春日山町2丁目貸店舗
    日成商事株式会社
  • この物件を問い合わせる/無料
  • TEL: 025-524-6441

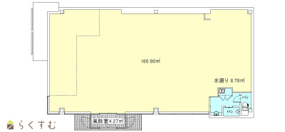
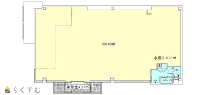
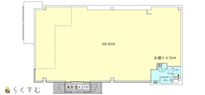
物件画像

外観 間取り
物件画像
※画像クリックで拡大表示
外観
物件画像
※画像クリックで拡大表示
間取り
詳細画像


物件概要

物件コード 00238-100275
物件名 春日山町2丁目貸店舗
交通 駅:妙高はねうまライン春日山駅徒歩約12分
所在地 新潟県上越市春日山町
物件種別 店舗
総戸数 -
構造 その他 階建 地上1階建
所在階/階数 1階/1階 号室 -
面積 179.75㎡ /54.37坪 方位 -
間取り -
賃料 55万円/月
管理費 -
礼金 -
敷金 3ヶ月
ほか初期費用 - その他諸費用 -
更新料 - 火災(家財)保険 -
共益費 - 町内費 -
駐車場 家賃に込み バイク料金 -
鍵交換費 - 清掃料 -
契約一時金 550,000円
更新事務手数料 -
保証区分 連帯保証人のみ
保証会社 区分:指定なし
-
連帯保証人 区分:要
-
仲介手数料 -
築年月 2011年4月(築15年)
利用制限 -
学校区 春日小学校(508m)・春日中学校(849m)
設備 -
入居時期 10月より
取引態様 貸主
備考 -
手数料負担割合/配分割合 貸主:-%   借主:-% / 元付:-%   客付:-%  
取り扱い会社

日成商事株式会社

新潟県上越市木田1-8-11

情報登録日 2026/04/15 次回更新予定日 2026/05/22
  • 春日山町2丁目貸店舗
    日成商事株式会社
  • この物件を問い合わせる/無料
  • TEL: 025-524-6441

この物件の地図・周辺情報・行政情報

この物件の周辺情報・行政情報を詳しく見る
【周辺情報】
物件の近くにあるコンビニや銀行・学校など、アイコン付のマップで詳しく表示できます!
【行政情報】
水道料や下水道料・ガス料金など、暮らしに関係のある情報を表示しています。

担当取扱い店舗情報

取扱い店舗画像
日成商事株式会社
TEL: 025-524-6441
所在地: 新潟県上越市木田1-8-11
交通: 妙高はねうまライン春日山駅徒歩10分
営業時間: 平日9:00~18:30 土9:00~18:00/定休日:日曜、祝日
免許番号: 新潟県知事(15)第861号 この会社の情報を詳しく見る
所属団体名: 公社 新潟県宅地建物取引協会 上越支部
取引態様: 貸主
ホームページ: http://www.nissey.jp/