物件掲載企業数:301|賃貸物件:3,182件|売買物件:3,223件|今週の登録物件:112
閲覧中のブラウザ(インターネットエクスプローラー)は非推奨ブラウザです。
物件が正しく表示されなかったり、正しく検索されない場合があります。最新のブラウザ(Google Chrome・Edgeなど)にてご利用お願いいたします。
  

新潟県上越市鴨島3-7-46 店舗 11.42万円の物件情報

1F角店舗、鴨島の中心地

物件名
所在地
面積
間取り
所在階
築年数
方位
賃料
管理費等
共益費
敷金
保証金
礼金
種別
構造
リバーハイツ日成 店舗A
A号室
新潟県上越市鴨島3-7-46
56.7㎡
(17.15坪)
-
1階
31年
-
11.42万円
なし
なし
2ヶ月
なし
なし
店舗
鉄筋コン
  • リバーハイツ日成 店舗A
    日成商事株式会社
  • この物件を問い合わせる/無料
  • TEL: 025-524-6441

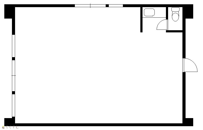
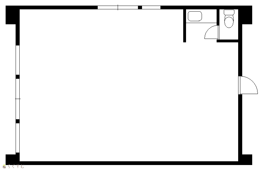
物件画像

外観 間取り
物件画像
※画像クリックで拡大表示
交差点にあるマンションの1Fです。
物件画像
※画像クリックで拡大表示
間取り
詳細画像


物件概要

物件コード 00238-100001
物件名 リバーハイツ日成 店舗A
交通 駅:妙高はねうまライン 高田駅から徒歩40分、バス:鴨島団地前から徒歩1分
所在地 新潟県上越市鴨島3-7-46
物件種別 店舗
総戸数 1戸
構造 鉄筋コン 階建 地上5階建
所在階/階数 1階/5階 号室 A号室
面積 56.7㎡ /17.15坪 方位 -
間取り -
賃料 11.42万円/月
管理費 -
礼金 -
敷金 2ヶ月
ほか初期費用 - その他諸費用 -
更新料 - 火災(家財)保険 相当額
共益費 - 町内費 800円
駐車場 4台無料 バイク料金 -
鍵交換費 - 清掃料 -
契約一時金 114,200円
更新事務手数料 -
保証区分 連帯保証人のみ
保証会社 区分:指定なし
-
連帯保証人 区分:要
-
仲介手数料 -
築年月 1995年4月(築31年)
利用制限 事務所利用:可
学校区 稲田小学校(940m)・城東中学校(723m)
設備 1階、OAフロア、駐車場あり
入居時期 即入居可
取引態様 貸主
備考 -
手数料負担割合/配分割合 貸主:-%   借主:100% / 元付:-%   客付:100%  
取り扱い会社

日成商事株式会社

新潟県上越市木田1-8-11

情報登録日 2026/04/14 次回更新予定日 2026/05/22
  • リバーハイツ日成 店舗A
    日成商事株式会社
  • この物件を問い合わせる/無料
  • TEL: 025-524-6441

この物件の地図・周辺情報・行政情報

この物件の周辺情報・行政情報を詳しく見る
【周辺情報】
物件の近くにあるコンビニや銀行・学校など、アイコン付のマップで詳しく表示できます!
【行政情報】
水道料や下水道料・ガス料金など、暮らしに関係のある情報を表示しています。
セブン-イレブン 上越東城店(コンビニ)まで640m
クスリのアオキ鴨島店(スーパー)まで550m
ナルス 鴨島店(スーパー)まで630m
おおまち薬局鴨島店(ドラッグストア)まで280m
コダマ調剤薬局(ドラッグストア)まで610m
にいがた調剤薬局高田(ドラッグストア)まで790m
かもじま薬局(ドラッグストア)まで590m
ツカダ薬局(ドラッグストア)まで590m
共創未来 とよば薬局(ドラッグストア)まで780m
日本調剤 高田薬局(ドラッグストア)まで720m
クスリのアオキ鴨島薬局(ドラッグストア)まで760m
トモエ薬局高田店(ドラッグストア)まで720m
新潟県立中央病院(病院)まで540m
大野内科医院(病院)まで650m
山崎内科・消化器科医院(病院)まで600m
わか皮ふ科クリニック(病院)まで820m
大島クリニック(病院)まで750m
土田脳神経外科医院(病院)まで760m
セブン銀行ATM(銀行)まで630m
上越鴨島郵便局(郵便局)まで300m

※カメラのアイコンがある場合は、マウスをポイントするとその施設の画像がご覧いただけます。


担当取扱い店舗情報

取扱い店舗画像
日成商事株式会社
TEL: 025-524-6441
所在地: 新潟県上越市木田1-8-11
交通: 妙高はねうまライン春日山駅徒歩10分
営業時間: 平日9:00~18:30 土9:00~18:00/定休日:日曜、祝日
免許番号: 新潟県知事(15)第861号 この会社の情報を詳しく見る
所属団体名: 公社 新潟県宅地建物取引協会 上越支部
取引態様: 貸主
ホームページ: http://www.nissey.jp/