物件掲載企業数:297|賃貸物件:3,613件|売買物件:3,320件|今週の登録物件:244
閲覧中のブラウザ(インターネットエクスプローラー)は非推奨ブラウザです。
物件が正しく表示されなかったり、正しく検索されない場合があります。最新のブラウザ(Google Chrome・Edgeなど)にてご利用お願いいたします。
  

新潟県上越市仲町4丁目3-19 事務所 7.601万円の物件情報

高田駅前のテナントビルです。1階はバス案内所・ハイヤー乗り場です。

物件名
所在地
面積
間取り
所在階
築年数
方位
賃料
管理費等
共益費
敷金
保証金
礼金
種別
構造
マルケー・バスビル 2F4
新潟県上越市仲町4丁目3-19
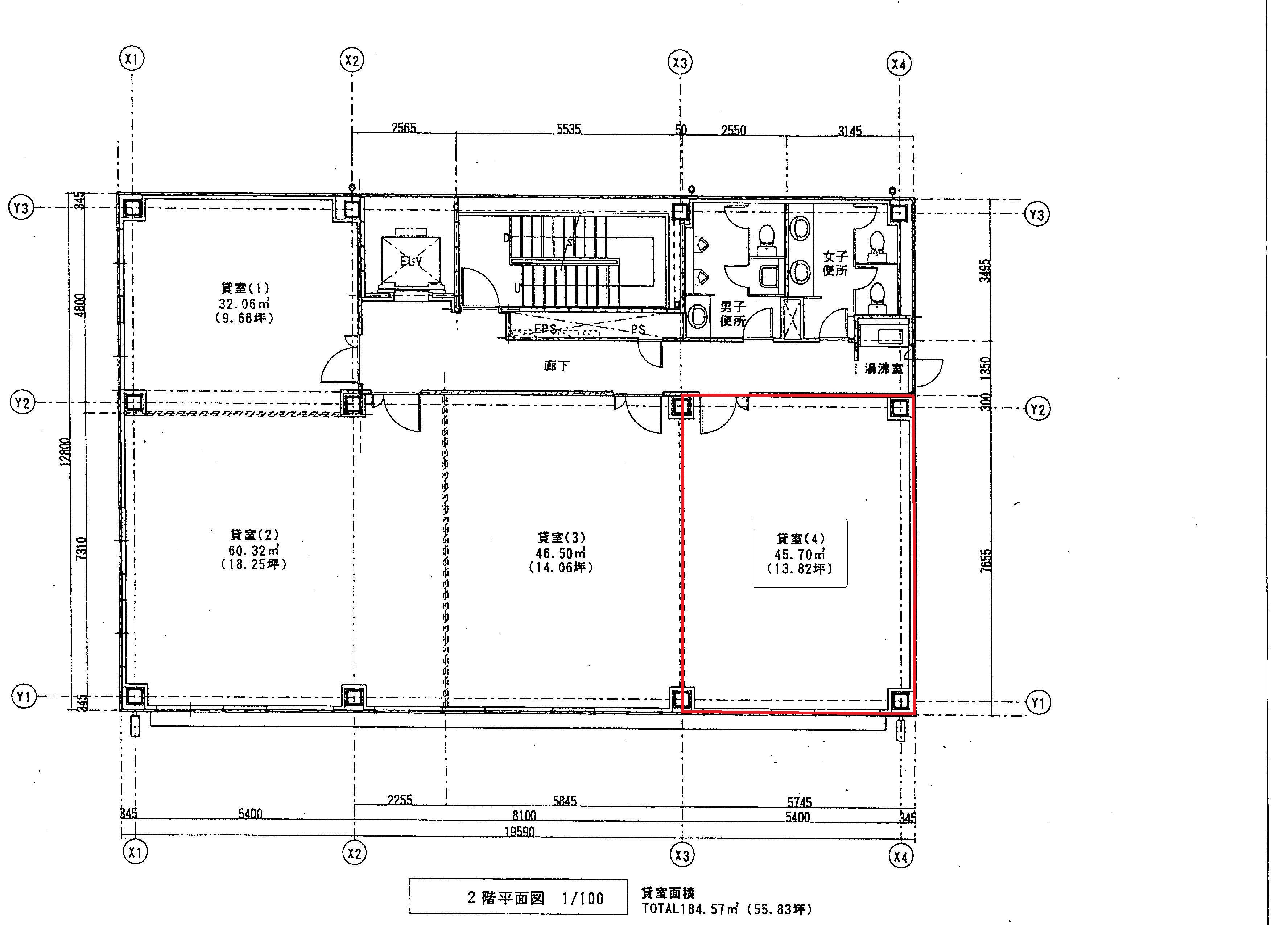
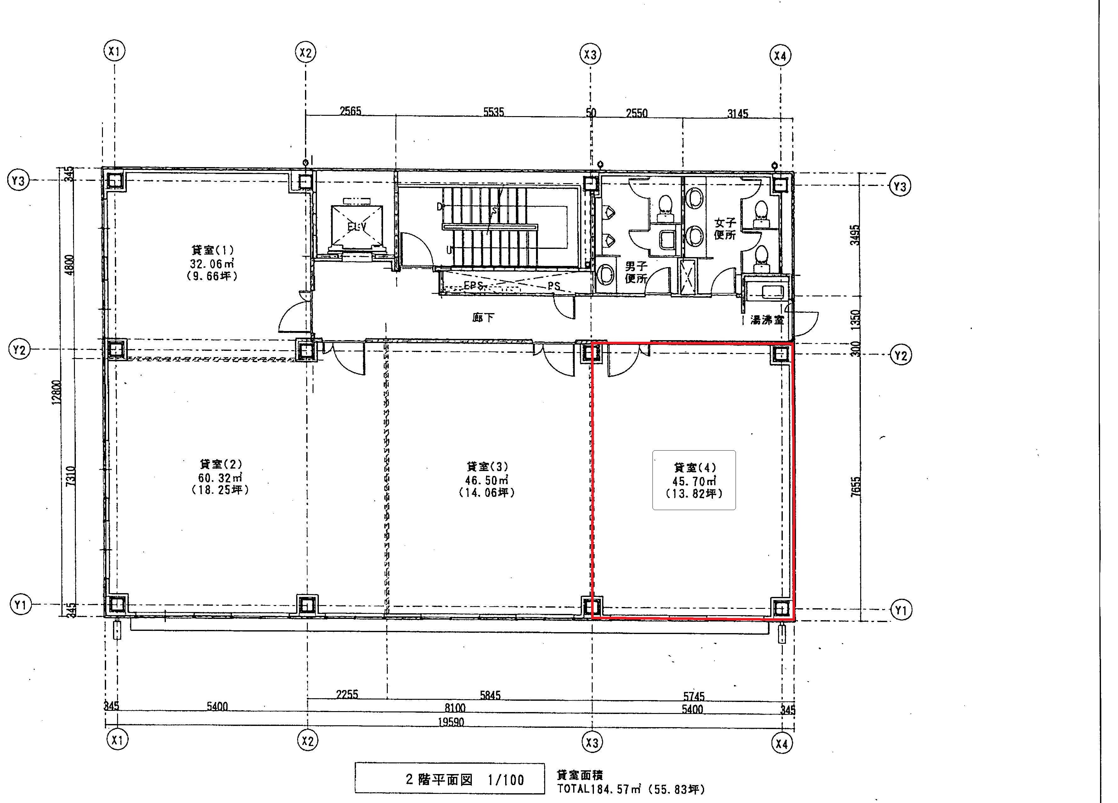
45.7㎡
(13.82坪)
-
2階
28年
-
7.601万円
なし
あり
41.46万円
なし
なし
事務所
鉄骨
  • マルケー・バスビル 2F4
    株式会社マルケー不動産
  • この物件を問い合わせる/無料
  • TEL: 025-544-2724

物件画像

外観 間取り
物件画像
※画像クリックで拡大表示
外観
物件画像
※画像クリックで拡大表示
平面図
詳細画像


物件概要

物件コード 00209-100008
物件名 マルケー・バスビル 2F4
交通 駅:妙高はねうまライン 高田駅から徒歩2分、バス:高田駅前から徒歩0分
所在地 新潟県上越市仲町4丁目3-19
物件種別 事務所
総戸数 -
構造 鉄骨 階建 地上4階建
所在階/階数 2階/4階 号室 -
面積 45.7㎡ /13.82坪 方位 -
間取り -
賃料 7.601万円/月
管理費 -
礼金 -
敷金 41.46万円
ほか初期費用 - その他諸費用 -
更新料 - 火災(家財)保険 -
共益費 38,005円
町内費 実費負担
駐車場 13,200円
1台あたり13200円
バイク料金 -
鍵交換費 - 清掃料 -
更新事務手数料 -
保証区分 連帯保証人のみ
保証会社 区分:指定なし
-
連帯保証人 区分:要
-
仲介手数料 76,010円
築年月 1997年3月(築28年)
利用制限 -
学校区 大町小学校(400m)・城東中学校(1,587m)
設備 24時間セキュリティー、エアコン、男女トイレ別、エレベーター、OAフロア、駐車場あり
入居時期 即入居可
取引態様 仲介
備考 -
手数料負担割合/配分割合 貸主:-%   借主:-% / 元付:-%   客付:-%  
取り扱い会社

株式会社マルケー不動産

新潟県上越市西本町2-3-21

情報登録日 2023/11/10 次回更新予定日 2026/01/04
  • マルケー・バスビル 2F4
    株式会社マルケー不動産
  • この物件を問い合わせる/無料
  • TEL: 025-544-2724

この物件の地図・周辺情報・行政情報

この物件の周辺情報・行政情報を詳しく見る
【周辺情報】
物件の近くにあるコンビニや銀行・学校など、アイコン付のマップで詳しく表示できます!
【行政情報】
水道料や下水道料・ガス料金など、暮らしに関係のある情報を表示しています。
ローソン 上越高田駅前店(コンビニ)まで100m

※カメラのアイコンがある場合は、マウスをポイントするとその施設の画像がご覧いただけます。


担当取扱い店舗情報

取扱い店舗画像
株式会社マルケー不動産
TEL: 025-544-2724
所在地: 新潟県上越市西本町2-3-21
交通: 直江津駅
営業時間: 8:30~17:00/定休日:第2.4土・日・祝
免許番号: 新潟県知事(10)第2765号 この会社の情報を詳しく見る
所属団体名: 公社新潟県宅地建物取引協会 上越支部
取引態様: 仲介
ホームページ: https://www.mkfudo3.jp/