物件掲載企業数:297|賃貸物件:3,618件|売買物件:3,315件|今週の登録物件:266
閲覧中のブラウザ(インターネットエクスプローラー)は非推奨ブラウザです。
物件が正しく表示されなかったり、正しく検索されない場合があります。最新のブラウザ(Google Chrome・Edgeなど)にてご利用お願いいたします。
  

新潟県上越市春日新田5丁目9番13号 一戸建て 5DK 7.5万円の物件情報

建替え等の仮住まいをお探しの方お勧めです!

物件名
所在地
面積
間取り
所在階
築年数
方位
賃料
管理費等
共益費
敷金
保証金
礼金
種別
構造
春日新田5丁目短期貸家
新潟県上越市春日新田5丁目9番13号
151.15㎡
(45.72坪)
5DK
-
45年
-
7.5万円
なし
なし
1ヶ月
なし
1ヶ月
アパート・マンション・一戸建て
木造
  • 春日新田5丁目短期貸家
    株式会社 すむとこ
  • この物件を問い合わせる/無料
  • TEL: 025-520-7103

物件画像

外観 間取り
物件画像
※画像クリックで拡大表示
外観
物件画像
※画像クリックで拡大表示
間取り図
詳細画像


物件概要

物件コード 00160-100021
物件名 春日新田5丁目短期貸家
交通 駅:妙高はねうまライン 直江津駅から徒歩25分、バス:春日新田五丁目から徒歩2分
所在地 新潟県上越市春日新田5丁目9番13号
物件種別 アパート・マンション・一戸建て
総戸数 -
構造 木造 階建 地上2階建
所在階/階数 - 号室 -
面積 151.15㎡ /45.72坪 方位 -
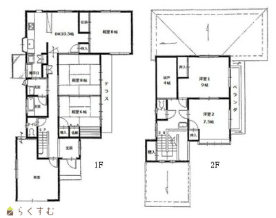
間取り 5DK (和室:8畳、8畳、6畳) (洋室:9、7.5)
DK10.5
賃料 7.5万円/月
管理費 -
礼金 1ヶ月
敷金 1ヶ月
ほか初期費用 - その他諸費用 -
更新料 - 火災(家財)保険 別途借主にて加入が必要
共益費 - 町内費 別途借主にて支払
駐車場 賃料に含む バイク料金 -
鍵交換費 - 清掃料 -
更新事務手数料 -
保証区分 連帯保証人+緊急連絡先
保証会社 区分:指定なし
-
連帯保証人 区分:要
-
仲介手数料 82,500円
築年月 1980年11月(築45年)
利用制限 -
学校区 春日新田小学校(479m)・直江津東中学校(890m)
設備 閑静な住宅街、日当り良好、駐車2台可、トイレ2か所以上、洗面所独立、エアコン3基、都市ガス、公営水道、下水、押入
入居時期 相談
取引態様 仲介
備考 仮住まい等短期専門の貸家です。(更新なし)
手数料負担割合/配分割合 貸主:-%   借主:100% / 元付:-%   客付:-%  
取り扱い会社

株式会社 すむとこ

新潟県上越市下門前1705

情報登録日 2025/06/21 次回更新予定日 2026/01/01
  • 春日新田5丁目短期貸家
    株式会社 すむとこ
  • この物件を問い合わせる/無料
  • TEL: 025-520-7103

この物件の地図・周辺情報・行政情報

この物件の周辺情報・行政情報を詳しく見る
【周辺情報】
物件の近くにあるコンビニや銀行・学校など、アイコン付のマップで詳しく表示できます!
【行政情報】
水道料や下水道料・ガス料金など、暮らしに関係のある情報を表示しています。

担当取扱い店舗情報

取扱い店舗画像
株式会社 すむとこ
TEL: 025-520-7103
所在地: 新潟県上越市下門前1705
交通: はねうまライン 直江津駅
営業時間: 9:00~18:00/定休日:日曜・祝祭日
免許番号: 新潟県知事(4)第4991号 この会社の情報を詳しく見る
所属団体名: 新潟県宅地建物取引業協会 上越支部
取引態様: 仲介
ホームページ: http://sumutoko.jp.net/