物件掲載企業数:299|賃貸物件:2,844件|売買物件:3,239件|今週の登録物件:342
閲覧中のブラウザ(インターネットエクスプローラー)は非推奨ブラウザです。
物件が正しく表示されなかったり、正しく検索されない場合があります。最新のブラウザ(Google Chrome・Edgeなど)にてご利用お願いいたします。
  

長岡市西神田町2-5-18 店舗 8万円の物件情報

居酒屋・定食・レストラン等に最適 冷蔵庫・ストッカー・エアコン等の設備機器付のきれいな店舗です 

物件名
所在地
面積
間取り
所在階
築年数
方位
賃料
管理費等
共益費
敷金
保証金
礼金
種別
構造
西神田町 店舗事務所
長岡市西神田町2-5-18
49.09㎡
(14.84坪)
-
-
24年
-
8万円
なし
なし
3ヶ月
なし
なし
店舗
木造
  • 西神田町 店舗事務所
    有限会社 アットホーム
  • この物件を問い合わせる/無料
  • TEL: 0258-37-5450

物件画像

外観 間取り
物件画像
※画像クリックで拡大表示
きれいな状態を保っています
物件画像
※画像クリックで拡大表示
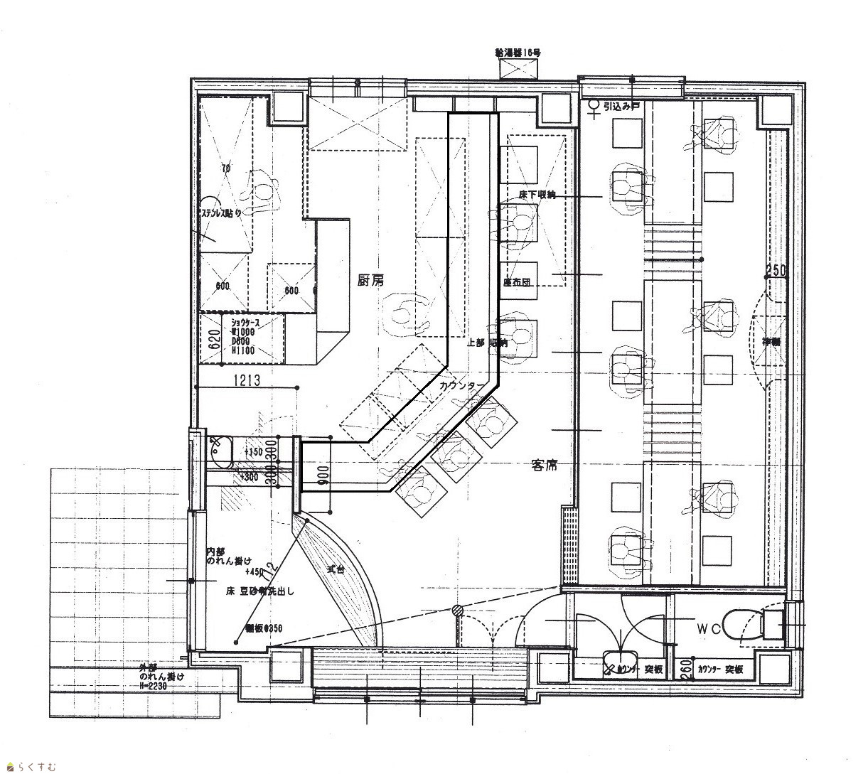
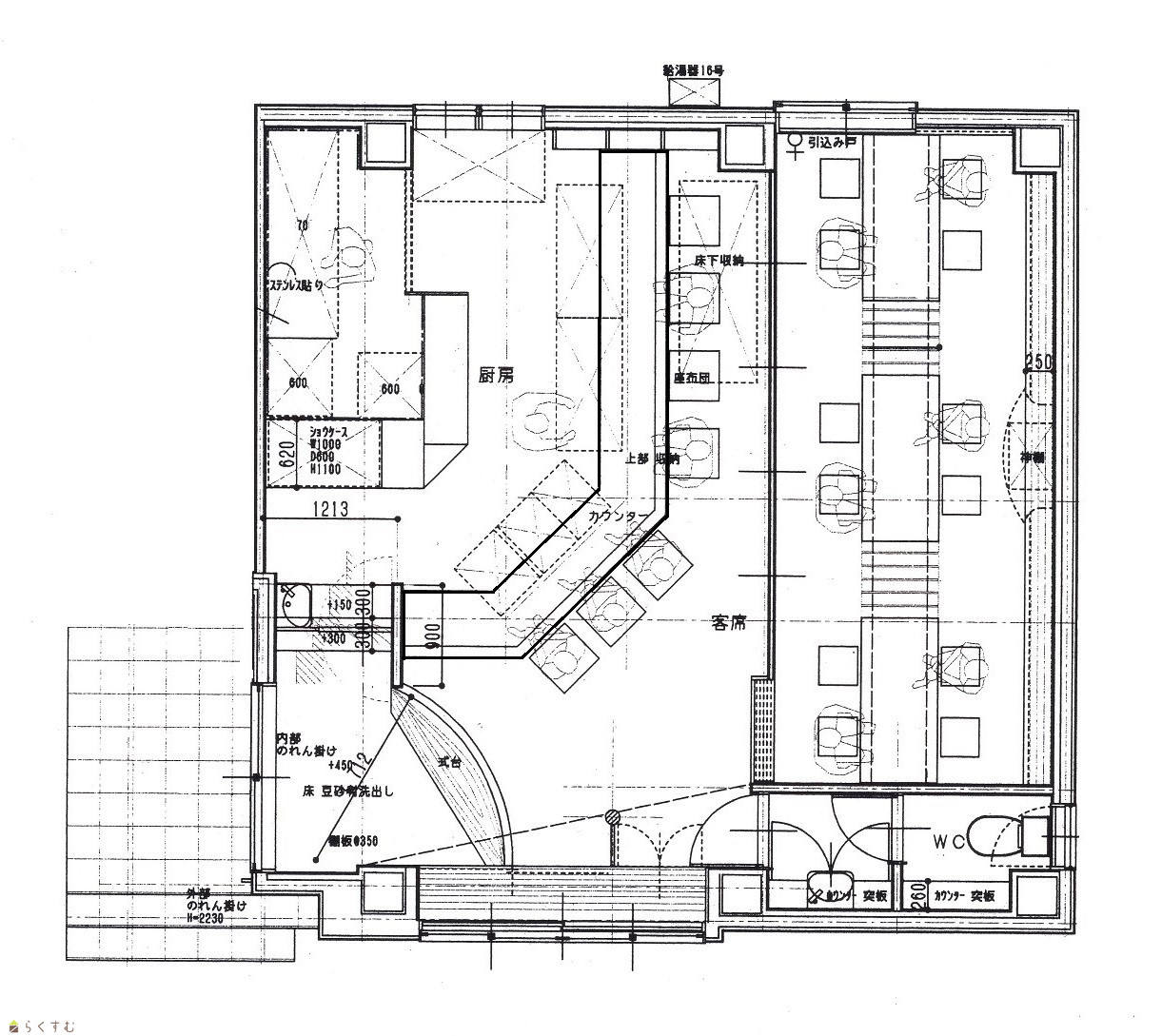
間取り
詳細画像


物件概要

業種により敷金等を応談致します 
物件コード 00144-100015
物件名 西神田町 店舗事務所
交通 駅:上越新幹線 長岡駅から徒歩18分、バス:昭和通りから徒歩1分
所在地 長岡市西神田町2-5-18
物件種別 店舗
総戸数 -
構造 木造 階建 地上1階建
所在階/階数 - 号室 -
面積 49.09㎡ /14.84坪 方位 -
間取り -
賃料 8万円/月
管理費 -
礼金 - 敷金 3ヶ月
ほか初期費用 - その他諸費用 -
更新料 - 火災(家財)保険 業種により応談
共益費 - 町内費 500円
駐車場 - バイク料金 -
鍵交換費 - 清掃料 -
融雪組合費 800円
更新事務手数料 -
保証区分 連帯保証人のみ
保証会社 区分:指定なし
-
連帯保証人 区分:要
-
仲介手数料 88,000円
築年月 2002年2月(築24年)
利用制限 -
学校区 神田小学校(134m)
設備 1階、エアコン、即引き渡し可、飲食店可、給湯
入居時期 相談
取引態様 仲介
備考 -
手数料負担割合/配分割合 貸主:-%   借主:-% / 元付:-%   客付:-%  
取り扱い会社

有限会社 アットホーム

新潟県長岡市西神田町2-5-17

情報登録日 2025/12/15 次回更新予定日 2026/04/03
  • 西神田町 店舗事務所
    有限会社 アットホーム
  • この物件を問い合わせる/無料
  • TEL: 0258-37-5450

この物件の地図・周辺情報・行政情報

この物件の周辺情報・行政情報を詳しく見る
【周辺情報】
物件の近くにあるコンビニや銀行・学校など、アイコン付のマップで詳しく表示できます!
【行政情報】
水道料や下水道料・ガス料金など、暮らしに関係のある情報を表示しています。

担当取扱い店舗情報

取扱い店舗画像
有限会社 アットホーム
TEL: 0258-37-5450
所在地: 新潟県長岡市西神田町2-5-17
交通: 長岡駅
営業時間: 9:00~18:00/定休日:不定休
免許番号: 新潟県知事(5)第4575号 この会社の情報を詳しく見る
所属団体名: 公益社団法人 全日本不動産協会 新潟県本部
取引態様: 仲介
ホームページ: http://www.athome-no1.co.jp/