| 物件名
							 所在地  | 
							面積
							 間取り 所在階  | 
							築年数
							 方位  | 
							賃料
							 管理費等 共益費  | 
							敷金
							 保証金 礼金  | 
							種別
							 構造  | 
						
|---|---|---|---|---|---|
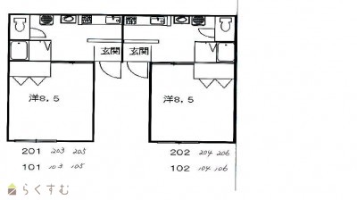
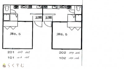
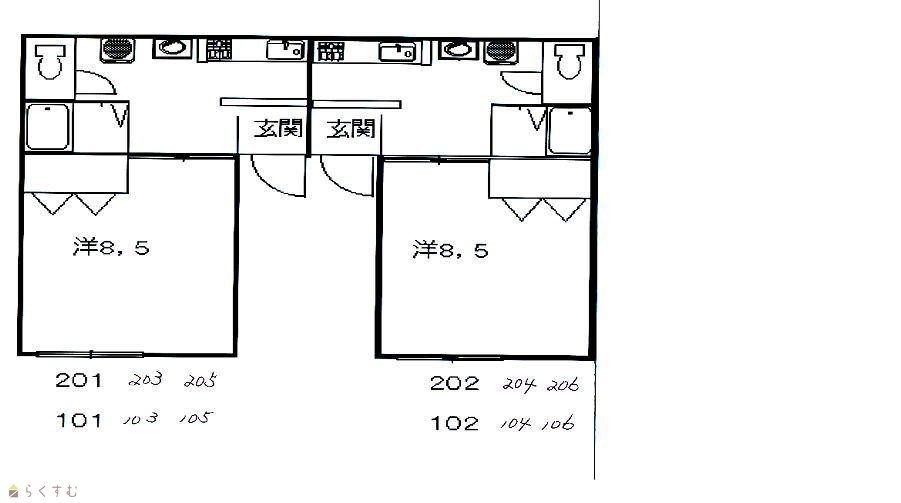
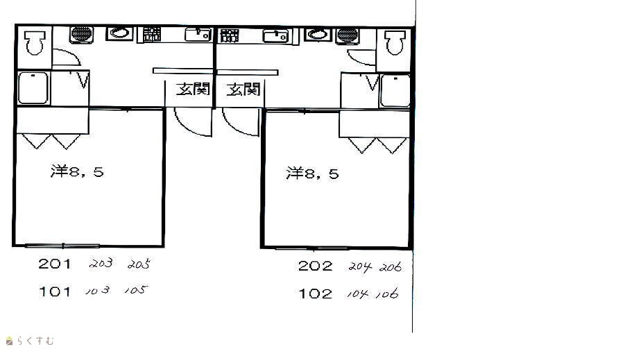
| ロイヤルミナミ 203号室 新潟県柏崎市田中1-5  | 28.35㎡ (8.57坪) 1K 2階  | 29年 指定なし  | 4.7万円 なし なし  | 1ヶ月 なし なし  | アパート・マンション・一戸建て 鉄骨  | 
						
| 外観 | 間取り | 
|---|---|
| 
								 ※画像クリックで拡大表示 ロイヤルミナミ 203 
							 | 
							
								 ※画像クリックで拡大表示 間取り 
							 | 
						
| 詳細画像 | |
| 
								 | 
						|
| 物件コード | 00084-100039 | ||
|---|---|---|---|
| 物件名 | ロイヤルミナミ | ||
| 交通 | 駅:信越線 柏崎駅から徒歩20分、バス:田中から徒歩2分 | ||
| 所在地 | 新潟県柏崎市田中1-5 | ||
| 物件種別 | アパート・マンション・一戸建て | ||
| 総戸数 | - | ||
| 構造 | 鉄骨 | 階建 | 地上2階建 | 
| 所在階/階数 | 2階/2階 | 号室 | 203号室 | 
| 面積 | 28.35㎡ /8.57坪 | 方位 | 指定なし | 
| 間取り | 1K | ||
| 賃料 | 4.7万円/月
								
								 | 
							管理費 | - | 
| 礼金 | -
								
								 | 
							敷金 | 1ヶ月
								
								 | 
						
| ほか初期費用 | - | その他諸費用 | - | 
| 更新料 | - | 火災(家財)保険 | 要加入 | 
| 共益費 | - | 町内費 | - | 
| 駐車場 | 
																									
										
										 家賃1台込み  | 
							
														バイク料金 | - | 
| 鍵交換費 | - | 清掃料 | - | 
| 更新事務手数料 | - | ||
| 保証区分 | 
								連帯保証人のみ | 
						||
| 保証会社 | 
							   区分:指定なし
							   
							  	 
							   
							   							    -  | 
							
						||
| 連帯保証人 | 
							   区分:要 -  | 
						||
| 仲介手数料 | 
								
																	51,700円
									 | 
							
						||
| 築年月 | 1996年3月(築29年) | ||
| 利用制限 | 二人入居:相談、ペット:不可、楽器:不可 | ||
| 学校区 | 枇杷島小学校(723m)・鏡が沖中学校(510m) | ||
| 設備 | 日当り良好、駐車場1台無料、バストイレ別、洗面所独立、エアコン、柏崎 大和・積水物件 | ||
| 入居時期 | 即入居可 | ||
| 取引態様 | 仲介 | ||
| 備考 | - | ||
| 手数料負担割合/配分割合 | 貸主:-% 借主:-% / 元付:-% 客付:-% | ||
| 取り扱い会社 | 
								 JAえちご中越 柏崎不動産センター 新潟県柏崎市駅前1丁目3番22号  | 
						||
| 情報登録日 | 2025/07/11 | 次回更新予定日 | 2025/11/18 | 
| TEL: | 0257-23-3412 | |
|---|---|---|
| 所在地: | 新潟県柏崎市駅前1丁目3番22号 | |
| 交通: | 柏崎駅 | |
| 営業時間: | 8:30~17:00/定休日:土・日・祝 | |
| 免許番号: | 新潟県知事(1)第5669号 | 
										
											 | 
								
| 所属団体名: | 新潟県宅地建物取引業協会 柏崎支部 | |
| 取引態様: | 仲介 | |
| ホームページ: | http://www.ja-kasiwazaki-fudousan.jp/ | |