物件掲載企業数:300|賃貸物件:2,775件|売買物件:3,237件|今週の登録物件:262
閲覧中のブラウザ(インターネットエクスプローラー)は非推奨ブラウザです。
物件が正しく表示されなかったり、正しく検索されない場合があります。最新のブラウザ(Google Chrome・Edgeなど)にてご利用お願いいたします。
  

新潟県三条市東裏館2丁目6番5号 事務所 7.7万円の物件情報

ピアノ教室♪美容院♪ネイルサロン♪ジムの入った賑やかなビルです

物件名
所在地
面積
間取り
所在階
築年数
方位
賃料
管理費等
共益費
敷金
保証金
礼金
種別
構造
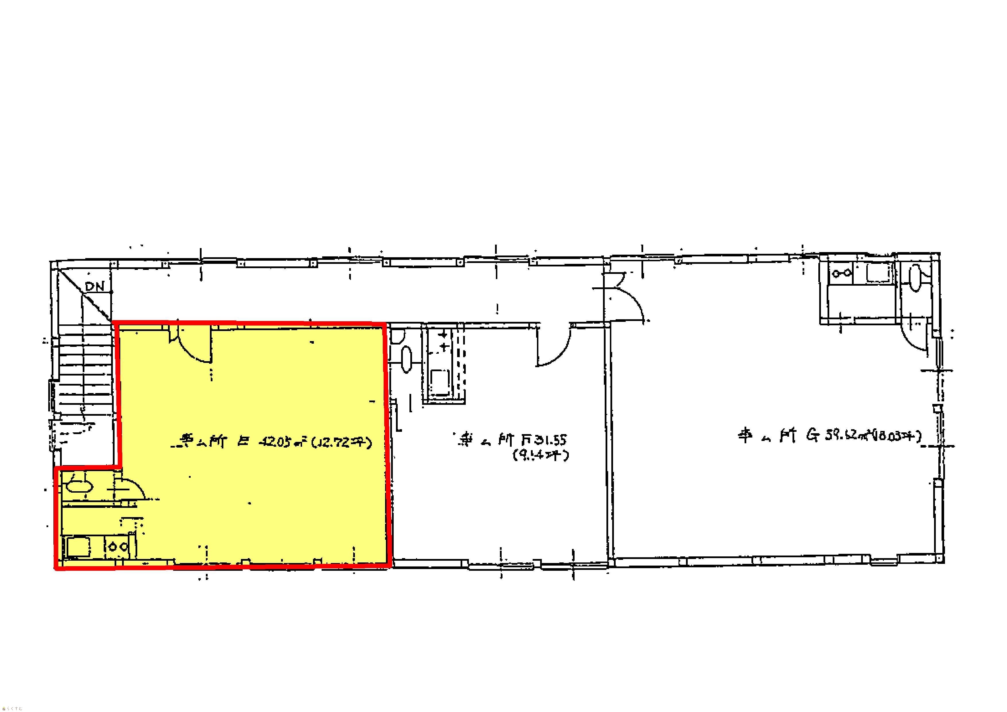
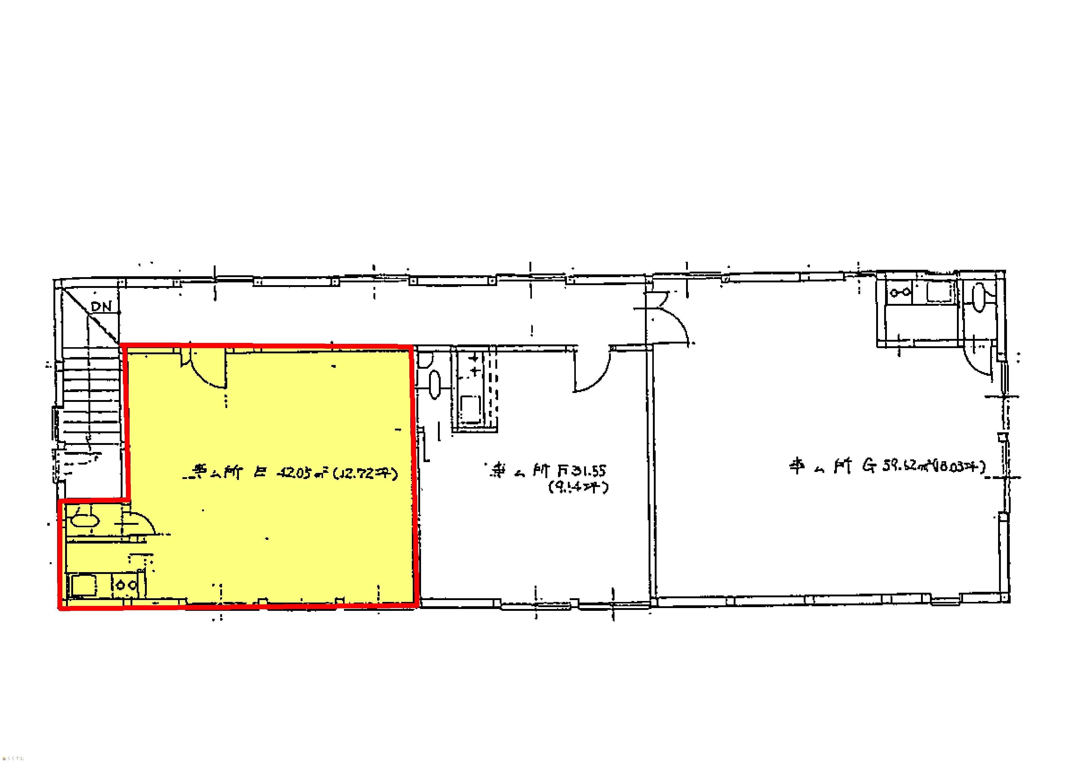
アグロスビル
E号室
新潟県三条市東裏館2丁目6番5号
42.05㎡
(12.72坪)
-
2階
33年
-
7.7万円
なし
あり
2万円
なし
なし
事務所
木造
  • アグロスビル
    株式会社 ユタカ不動産
  • この物件を問い合わせる/無料
  • TEL: 0256-35-5825

物件画像

外観 間取り
物件画像
※画像クリックで拡大表示
外観
物件画像
※画像クリックで拡大表示
図面
詳細画像


物件概要

来客用駐車場は他店舗共有で無料★
物件コード 00052-100179
物件名 アグロスビル
交通 駅:弥彦線 北三条駅から徒歩6分、バス:西裏館から徒歩2分
所在地 新潟県三条市東裏館2丁目6番5号
物件種別 事務所
総戸数 -
構造 木造 階建 地上2階建
所在階/階数 2階/2階 号室 E号室
面積 42.05㎡ /12.72坪 方位 -
間取り -
賃料 7.7万円/月
管理費 -
礼金 -
敷金 2万円
ほか初期費用 - その他諸費用 -
更新料 事務手数料22,000円 火災(家財)保険 加入必須
共益費 8,800円
町内費 -
駐車場 従業員用は近隣にてお借りください。来客用は他店舗共有で無料です。 バイク料金 -
鍵交換費 - 清掃料 -
更新事務手数料 -
保証区分 連帯保証人+保証会社
保証会社 区分:加入要
保証会社名:その他 (ジェイリース株式会社)
初回保証料:月額総額の100%。 継続保証料:月額総額の10%(年)必須。
連帯保証人 区分:要
-
仲介手数料 77,000円
築年月 1992年12月(築33年)
利用制限 -
学校区 裏館小学校(682m)・第三中学校(431m)
設備 最上階、2階以上、融雪設備あり、即引き渡し可、給湯、駐車場あり
入居時期 即入居可
取引態様 仲介
備考 ・飲食店不可。
・只今、駐車場利用者様が多数の為、従業員のみ出入りの事務所利用もしくは予約制営業での業種利用に限らせて頂きます。
手数料負担割合/配分割合 貸主:-%   借主:100% / 元付:50%   客付:50%  
取り扱い会社

株式会社 ユタカ不動産

新潟県三条市旭町1丁目1-19-3ユタカビル

情報登録日 2025/12/15 次回更新予定日 2026/05/01
  • アグロスビル
    株式会社 ユタカ不動産
  • この物件を問い合わせる/無料
  • TEL: 0256-35-5825

この物件の地図・周辺情報・行政情報

この物件の周辺情報・行政情報を詳しく見る
【周辺情報】
物件の近くにあるコンビニや銀行・学校など、アイコン付のマップで詳しく表示できます!
【行政情報】
水道料や下水道料・ガス料金など、暮らしに関係のある情報を表示しています。

担当取扱い店舗情報

取扱い店舗画像
株式会社 ユタカ不動産
TEL: 0256-35-5825
所在地: 新潟県三条市旭町1丁目1-19-3ユタカビル
交通: 東三条駅
営業時間: 9:00~18:00/定休日:火曜・祭日
免許番号: 新潟見知事(9)第3203号 この会社の情報を詳しく見る
所属団体名: 新潟県宅地建物取引協会 三条支部
取引態様: 仲介
ホームページ: http://www.yutakafudousan.com