物件掲載企業数:299|賃貸物件:2,886件|売買物件:3,218件|今週の登録物件:297
閲覧中のブラウザ(インターネットエクスプローラー)は非推奨ブラウザです。
物件が正しく表示されなかったり、正しく検索されない場合があります。最新のブラウザ(Google Chrome・Edgeなど)にてご利用お願いいたします。
  

新潟県三条市林町2丁目18-24 店舗 14.3万円の物件情報

国道289号線沿い!1階店舗

物件名
所在地
面積
間取り
所在階
築年数
方位
賃料
管理費等
共益費
敷金
保証金
礼金
種別
構造
BIBAプラザ
新潟県三条市林町2丁目18-24
49.58㎡
(14.99坪)
-
1階
36年
-
14.3万円
なし
なし
2ヶ月
なし
1ヶ月
店舗
木造
  • BIBAプラザ
    株式会社 ユタカ不動産
  • この物件を問い合わせる/無料
  • TEL: 0256-35-5825

物件画像

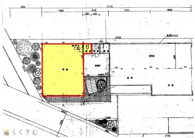
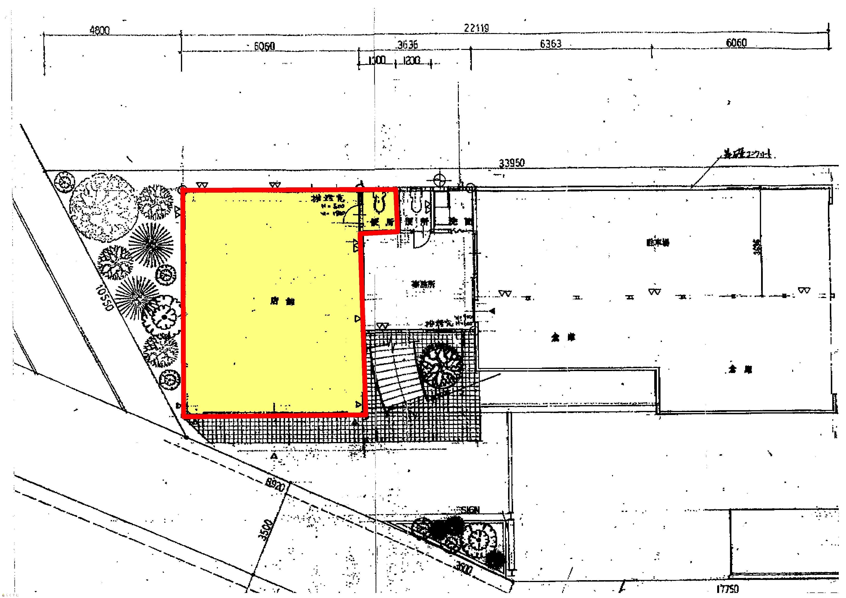
外観 間取り
物件画像
※画像クリックで拡大表示
外観
物件画像
※画像クリックで拡大表示
間取り
詳細画像


物件概要

物件コード 00052-100156
物件名 BIBAプラザ
交通 駅:弥彦線 北三条駅から徒歩17分、バス:三条警察署から徒歩2分
所在地 新潟県三条市林町2丁目18-24
物件種別 店舗
総戸数 -
構造 木造 階建 地上2階建
所在階/階数 1階/2階 号室 -
面積 49.58㎡ /14.99坪 方位 -
間取り -
賃料 14.3万円/月
管理費 -
礼金 1ヶ月
敷金 2ヶ月
ほか初期費用 - その他諸費用 -
更新料 - 火災(家財)保険 加入必須
共益費 - 町内費 -
駐車場 お客様用共用駐車場有 バイク料金 -
鍵交換費 - 清掃料 -
更新事務手数料 -
保証区分 連帯保証人+保証会社
保証会社 区分:加入要
保証会社名:その他 (ジェイリース株式会社)
初回保証料:月額賃料等総額の100% 継続保証料(年):月額賃料等総額の10%
連帯保証人 区分:要
-
仲介手数料 143,000円
築年月 1990年3月(築36年)
利用制限 事務所利用:可
学校区 一ノ木戸小学校(251m)・第二中学校(251m)
設備 1階、駐車場あり
入居時期 2026年5月10日以降引き渡し可能予定
取引態様 仲介
備考 ※飲食店不可。
※従業員駐車場はございません。近隣でご契約ください。
手数料負担割合/配分割合 貸主:-%   借主:100% / 元付:50%   客付:50%  
取り扱い会社

株式会社 ユタカ不動産

新潟県三条市旭町1丁目1-19-3ユタカビル

情報登録日 2026/03/06 次回更新予定日 2026/04/08
  • BIBAプラザ
    株式会社 ユタカ不動産
  • この物件を問い合わせる/無料
  • TEL: 0256-35-5825

この物件の地図・周辺情報・行政情報

この物件の周辺情報・行政情報を詳しく見る
【周辺情報】
物件の近くにあるコンビニや銀行・学校など、アイコン付のマップで詳しく表示できます!
【行政情報】
水道料や下水道料・ガス料金など、暮らしに関係のある情報を表示しています。

担当取扱い店舗情報

取扱い店舗画像
株式会社 ユタカ不動産
TEL: 0256-35-5825
所在地: 新潟県三条市旭町1丁目1-19-3ユタカビル
交通: 東三条駅
営業時間: 9:00~18:00/定休日:火曜・祭日
免許番号: 新潟見知事(9)第3203号 この会社の情報を詳しく見る
所属団体名: 新潟県宅地建物取引協会 三条支部
取引態様: 仲介
ホームページ: http://www.yutakafudousan.com