物件掲載企業数:298|賃貸物件:3,608件|売買物件:3,294件|今週の登録物件:202
閲覧中のブラウザ(インターネットエクスプローラー)は非推奨ブラウザです。
物件が正しく表示されなかったり、正しく検索されない場合があります。最新のブラウザ(Google Chrome・Edgeなど)にてご利用お願いいたします。
  

新潟県長岡市殿町3丁目5番15号 事務所 6.6万円の物件情報

物件名
所在地
面積
間取り
所在階
築年数
方位
賃料
管理費等
共益費
敷金
保証金
礼金
種別
構造
ドルミーレインボー 1階
新潟県長岡市殿町3丁目5番15号
41.25㎡
(12.47坪)
-
1階
34年
-
6.6万円
なし
なし
2ヶ月
なし
なし
事務所
鉄筋コン
  • ドルミーレインボー 1階
    髙頭不動産 株式会社
  • この物件を問い合わせる/無料
  • TEL: 0120-1818-27

物件画像

外観 間取り
物件画像
※画像クリックで拡大表示
外観
物件画像
※画像クリックで拡大表示
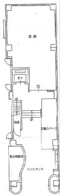
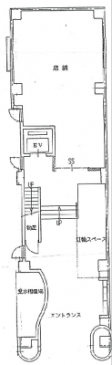
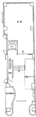
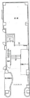
間取り
詳細画像


物件概要

物件コード 00040-100086
物件名 ドルミーレインボー 1階
交通 駅:JR信越本線長岡駅から徒歩7分、バス:大手通2丁目から徒歩4分
所在地 新潟県長岡市殿町3丁目5番15号
物件種別 事務所
総戸数 -
構造 鉄筋コン 階建 地上5階建
所在階/階数 1階/5階 号室 -
面積 41.25㎡ /12.47坪 方位 -
間取り -
賃料 6.6万円/月
管理費 -
礼金 -
敷金 2ヶ月
ほか初期費用 - その他諸費用 -
更新料 - 火災(家財)保険 要加入
共益費 - 町内費 月額200円
駐車場 - バイク料金 -
鍵交換費 - 清掃料 -
更新事務手数料 -
保証区分 保証会社+緊急連絡先
保証会社 区分:加入要
保証会社名:日本インシュア
-
連帯保証人 区分:不要
-
仲介手数料 726,000円
築年月 1991年6月(築34年)
利用制限 -
学校区 阪之上小学校(925m)・東中学校(1,449m)
設備 1階、オートロック、エアコン、エレベーター、給湯
入居時期 即入居可
取引態様 仲介
備考 -
手数料負担割合/配分割合 貸主:0%   借主:100% / 元付:50%   客付:50%  
取り扱い会社

髙頭不動産 株式会社

新潟県長岡市千歳1-3-25

情報登録日 2025/11/19 次回更新予定日 2025/12/08
  • ドルミーレインボー 1階
    髙頭不動産 株式会社
  • この物件を問い合わせる/無料
  • TEL: 0120-1818-27

この物件の地図・周辺情報・行政情報

この物件の周辺情報・行政情報を詳しく見る
【周辺情報】
物件の近くにあるコンビニや銀行・学校など、アイコン付のマップで詳しく表示できます!
【行政情報】
水道料や下水道料・ガス料金など、暮らしに関係のある情報を表示しています。

担当取扱い店舗情報

取扱い店舗画像
髙頭不動産 株式会社
TEL: 0120-1818-27
所在地: 新潟県長岡市千歳1-3-25
交通: 長岡駅
営業時間: 8時30分~17時30分(大手支店は9時~18時)/定休日:本社:土日祝日(事前予約での対応可能)、支店:日曜祝日第5土曜(毎年2月下旬から3月は休みなし)
免許番号: 新潟県知事(17)第191号 この会社の情報を詳しく見る
所属団体名: 新潟県宅地建物取引協会 長岡支部
取引態様: 仲介
ホームページ: http://www.takato-f.com