
栃尾の医院建物 介護施設の利用も可














| 物件名 所在地 | 面積 間取り 所在階 | 築年数 方位 | 賃料 管理費等 共益費 | 敷金 保証金 礼金 | 種別 構造 | 
|---|---|---|---|---|---|
| 栃尾 栄町2丁目 医院 新潟県長岡市栄町2丁目7-15 | 314.55㎡ (95.15坪) - - | 22年 - | 22万円 10,000円/月 なし | 3ヶ月 なし なし | 店舗 鉄骨 | 
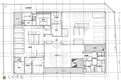
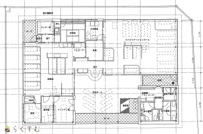
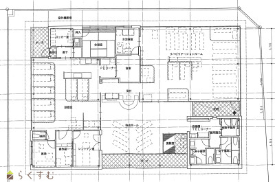
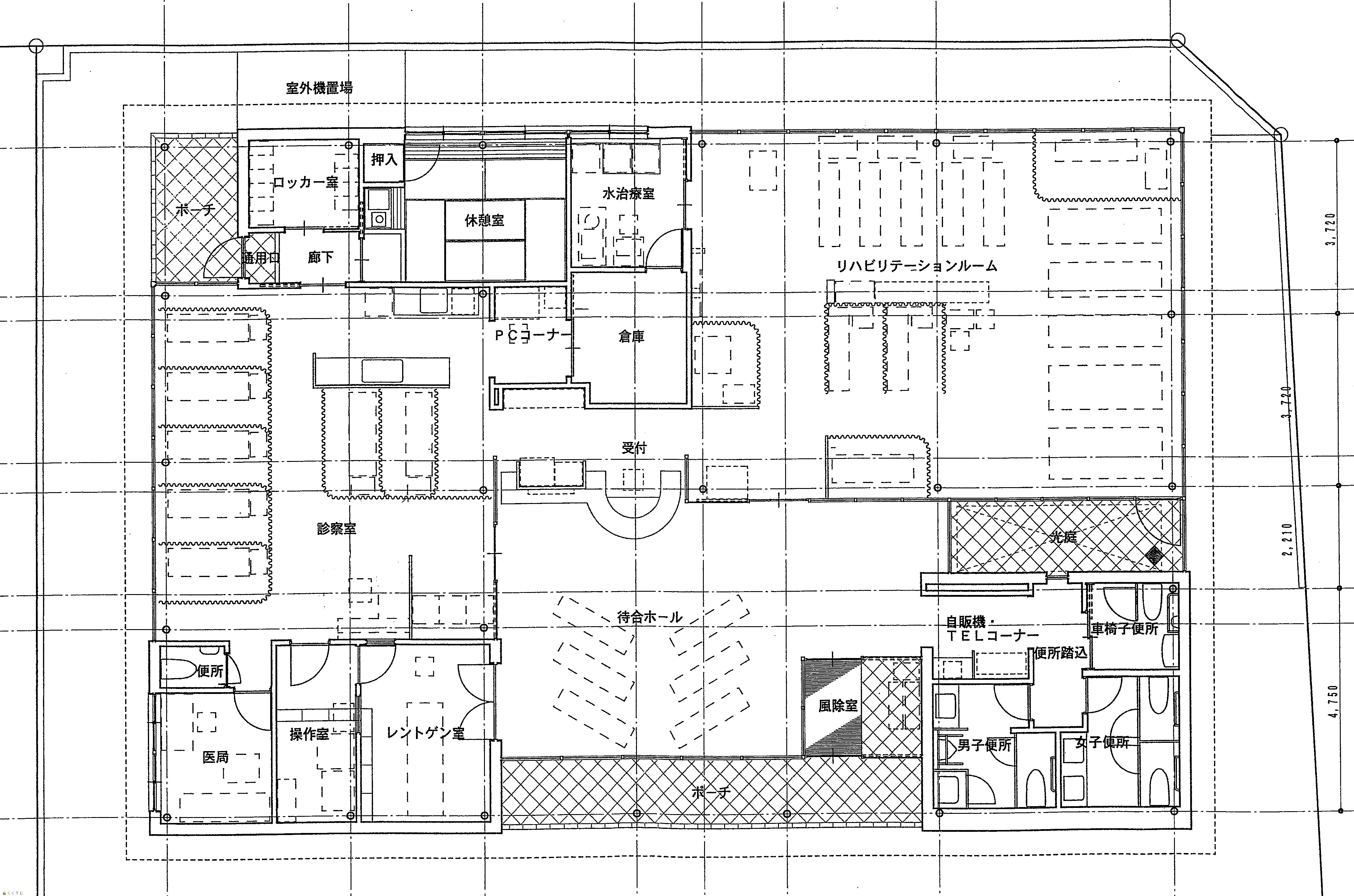
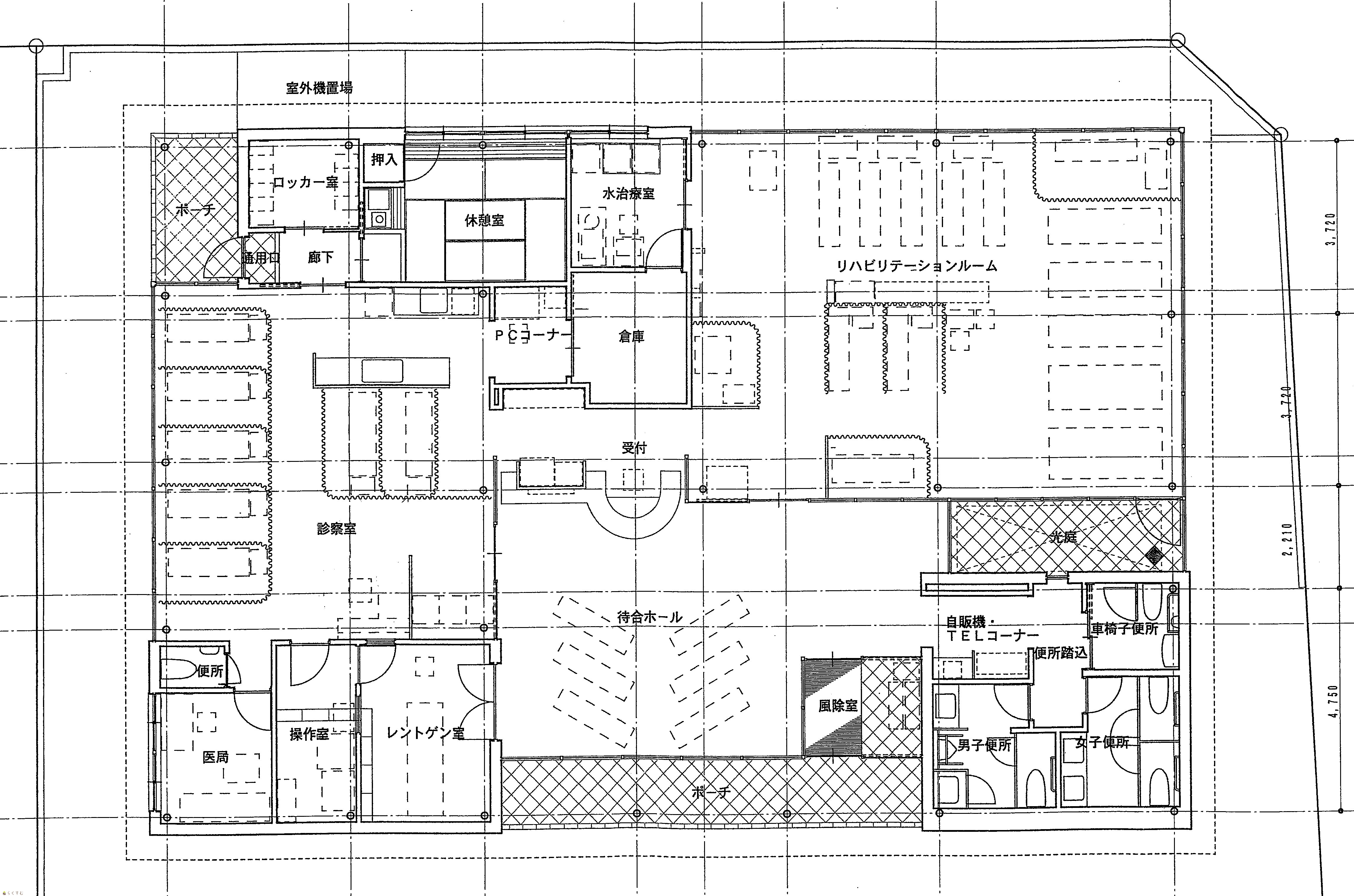
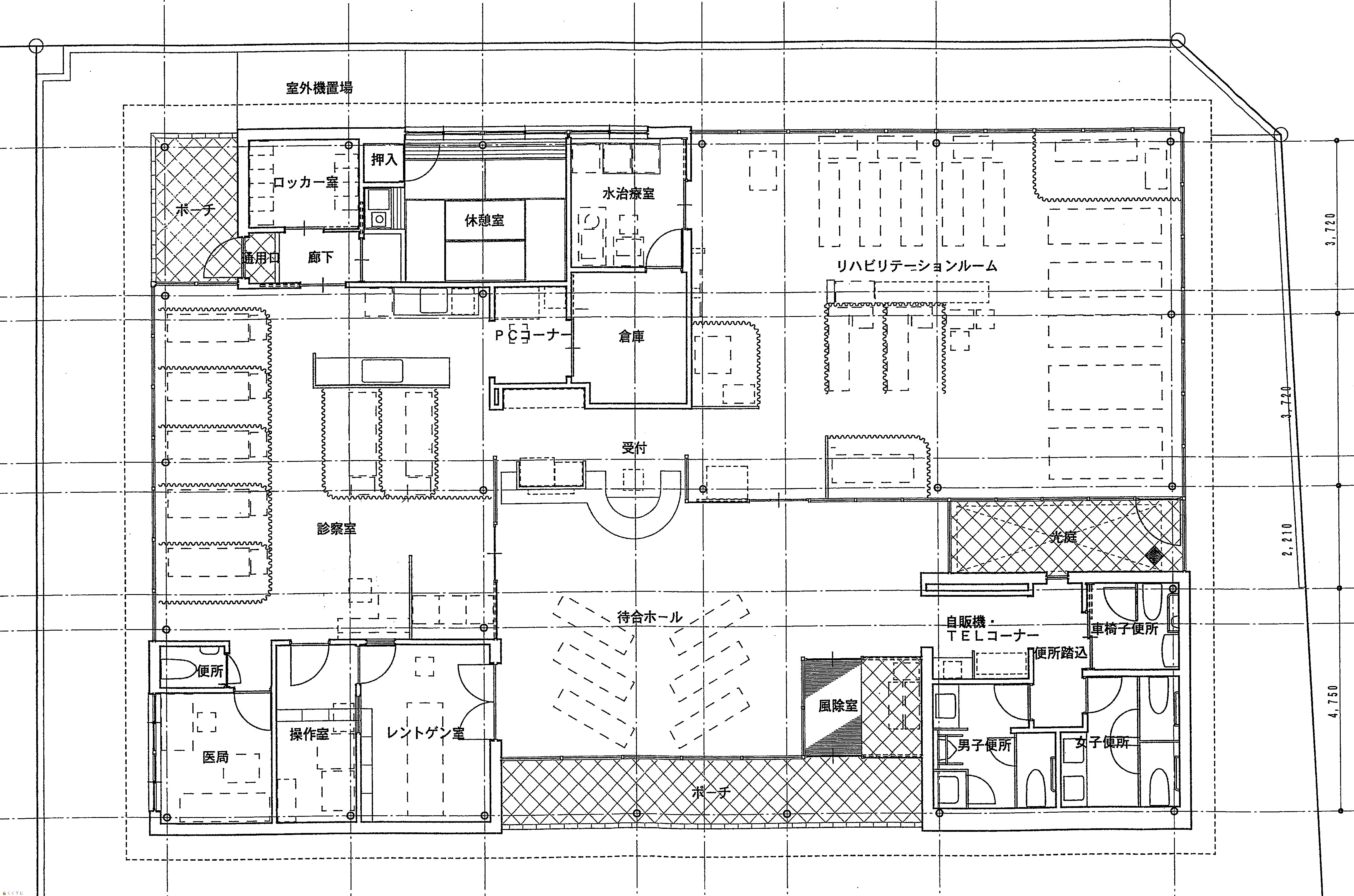
| 外観 | 間取り | 
|---|---|
| ※画像クリックで拡大表示 外観 |  ※画像クリックで拡大表示 間取り | 
| 詳細画像 | |
|  | |
| 物件コード | 00039-100104 | ||
|---|---|---|---|
| 物件名 | 栃尾 栄町2丁目 医院 | ||
| 交通 | 駅:信越線 見附駅から徒歩145分、バス:警察署前から徒歩4分 | ||
| 所在地 | 新潟県長岡市栄町2丁目7-15 | ||
| 物件種別 | 店舗 | ||
| 総戸数 | - | ||
| 構造 | 鉄骨 | 階建 | 地上1階建 | 
| 所在階/階数 | - | 号室 | - | 
| 面積 | 314.55㎡ /95.15坪 | 方位 | - | 
| 間取り | - | ||
| 賃料 | 22万円/月 | 管理費 | 10,000円/月 | 
| 礼金 | - | 敷金 | 3ヶ月 | 
| ほか初期費用 | - | その他諸費用 | - | 
| 更新料 | - | 火災(家財)保険 | - | 
| 共益費 | - | 町内費 | - | 
| 駐車場 | - | バイク料金 | - | 
| 鍵交換費 | - | 清掃料 | - | 
| 更新事務手数料 | - | ||
| 保証区分 | 保証会社のみ | ||
| 保証会社 | 区分:加入要 保証会社名:ジェイリース jakinai 初回保証料100%+継続保証料(毎年)10% | ||
| 家賃保証金 | 230,000円 | ||
| 連帯保証人 | 区分:不要 - | ||
| 仲介手数料 | - | ||
| 築年月 | 2002年12月(築22年) | ||
| 利用制限 | 法人:可、学生:不可、単身者:不可、二人入居:不可、シニア(60歳以上)入居:不可、子供:不可、ペット:不可、楽器:不可、事務所利用:可、ルームシェア:不可 | ||
| 学校区 | 栃尾東小学校(488m)・刈谷田中学校(1,340m) | ||
| 設備 | 1階、エアコン | ||
| 入居時期 | 相談 | ||
| 取引態様 | 貸主 | ||
| 備考 | - | ||
| 手数料負担割合/配分割合 | 貸主:-% 借主:100% / 元付:50% 客付:50% | ||
| 取り扱い会社 | ふどうさんの相談所 (ライフデザイン合同会社 イオン長岡店) 新潟県長岡市古正寺1-249-1イオン長岡店3F | ||
| 情報登録日 | 2025/10/25 | 次回更新予定日 | 2025/11/14 | 
 
						| TEL: | 0258-94-4370 | |
|---|---|---|
| 所在地: | 新潟県長岡市古正寺1-249-1イオン長岡店3F | |
| 交通: | 長岡駅 | |
| 営業時間: | 10:00~20:00/定休日:年末年始・特別日はお休みいたします | |
| 免許番号: | 新潟県知事(3)第5090号 |   | 
| 所属団体名: | 全日本不動産協会 新潟県本部 | |
| 取引態様: | 貸主 | |
| ホームページ: | http://life-dn.com | |