物件掲載企業数:298|賃貸物件:3,608件|売買物件:3,294件|今週の登録物件:181
閲覧中のブラウザ(インターネットエクスプローラー)は非推奨ブラウザです。
物件が正しく表示されなかったり、正しく検索されない場合があります。最新のブラウザ(Google Chrome・Edgeなど)にてご利用お願いいたします。
  

新潟県長岡市千秋2丁目2788番地1 事務所 75.46万円の物件情報

古正寺エリアに事務所をお探しの方にお勧めです!各室ALSOK警備がついているのでセキュリティー面も安心♪上層階の為、窓からの眺望も良好です★

物件名
所在地
面積
間取り
所在階
築年数
方位
賃料
管理費等
共益費
敷金
保証金
礼金
種別
構造
千秋が原ビル
6A号室
新潟県長岡市千秋2丁目2788番地1
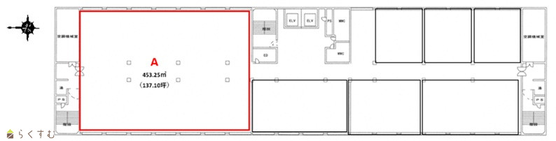
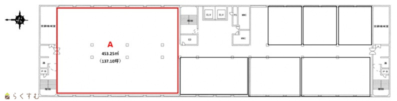
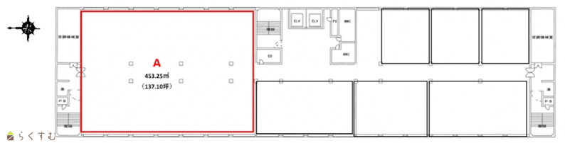
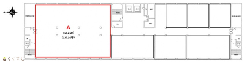
453.25㎡
(137.1坪)
-
6階
40年
-
75.46万円
なし
あり
150.92万円
なし
なし
事務所
鉄骨鉄筋コン
  • 千秋が原ビル
    株式会社 エヌ・アール・ケー総合企画
  • この物件を問い合わせる/無料
  • TEL: 0258-41-5336

物件画像

外観 間取り
物件画像
※画像クリックで拡大表示
外観
物件画像
※画像クリックで拡大表示
間取り
詳細画像


物件概要

物件コード 00024-100806
物件名 千秋が原ビル
交通 駅:上越新幹線 長岡駅から徒歩42分、バス:本社営業所前から徒歩3分
所在地 新潟県長岡市千秋2丁目2788番地1
物件種別 事務所
総戸数 -
構造 鉄骨鉄筋コン 階建 地上8階建
所在階/階数 6階/8階 号室 6A号室
面積 453.25㎡ /137.1坪 方位 -
間取り -
賃料 75.46万円/月
(税込)
管理費 -
礼金 - 敷金 150.92万円
ほか初期費用 - その他諸費用 -
更新料 - 火災(家財)保険 借主負担
共益費 241,400円
町内費 -
駐車場 7,700円
(税込)/1台
バイク料金 -
鍵交換費 - 清掃料 -
更新事務手数料 -
保証区分 連帯保証人のみ
保証会社 区分:指定なし
-
連帯保証人 区分:要
-
仲介手数料 754,600円
築年月 1985年11月(築40年)
利用制限 -
学校区 大島小学校(1,186m)・大島中学校(1,046m)
設備 2階以上、エアコン、男女トイレ別、即引き渡し可、エレベーター、給湯、駐車場あり
入居時期 即入居可
取引態様 仲介
備考 ・電気、ガス、水道は別途請求
・給湯室、トイレは共同利用
・ALSOKの警備あり
・貸室内装工事及び撤去費用は借主負担
・定期借家契約(2年)
・現況渡し
・フロアを間仕切りして196㎡で契約する事も可能。
(間仕切工事は貸主負担。詳細はお問い合わせください。)
・賃料、駐車場料金は税込の金額です。
手数料負担割合/配分割合 貸主:-%   借主:100% / 元付:50%   客付:50%  
取り扱い会社

株式会社 エヌ・アール・ケー総合企画

新潟県長岡市与板町与板119番地

情報登録日 2025/09/18 次回更新予定日 2025/12/09
  • 千秋が原ビル
    株式会社 エヌ・アール・ケー総合企画
  • この物件を問い合わせる/無料
  • TEL: 0258-41-5336

この物件の地図・周辺情報・行政情報

この物件の周辺情報・行政情報を詳しく見る
【周辺情報】
物件の近くにあるコンビニや銀行・学校など、アイコン付のマップで詳しく表示できます!
【行政情報】
水道料や下水道料・ガス料金など、暮らしに関係のある情報を表示しています。

担当取扱い店舗情報

取扱い店舗画像
株式会社 エヌ・アール・ケー総合企画
TEL: 0258-41-5336
所在地: 新潟県長岡市与板町与板119番地
交通:
営業時間: 9:30~17:30/定休日:土日・祝祭日 (電話対応しております)
免許番号: 新潟県知事(4)第4750号 この会社の情報を詳しく見る
所属団体名: 新潟県宅地建物取引業協会 長岡支部
取引態様: 仲介
ホームページ: http://www.nrk-sogo.jp