| 物件名
							 所在地  | 
							面積
							 間取り 所在階  | 
							築年数
							 方位  | 
							賃料
							 管理費等 共益費  | 
							敷金
							 保証金 礼金  | 
							種別
							 構造  | 
						
|---|---|---|---|---|---|
| ピュアハイツC102 102号室 新潟県長岡市上除町西1丁目173番地  | 26.49㎡ (8.01坪) 1K -  | 27年 指定なし  | 3.7万円 なし なし  | 4万円 なし なし  | アパート・マンション・一戸建て 木造  | 
						
| 外観 | 間取り | 
|---|---|
								![]() ※画像クリックで拡大表示 外観 
							 | 
							
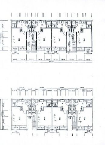
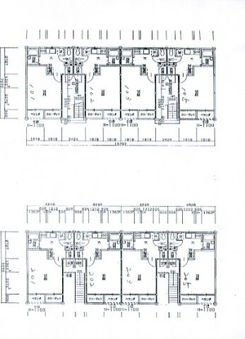
								![]() ※画像クリックで拡大表示 平面図 
							 | 
						
| 詳細画像 | |
| 
								 | 
						|
| 物件コード | 00018-100041 | ||
|---|---|---|---|
| 物件名 | ピュアハイツC102 | ||
| 交通 | バス:関原南から徒歩7分 | ||
| 所在地 | 新潟県長岡市上除町西1丁目173番地 | ||
| 物件種別 | アパート・マンション・一戸建て | ||
| 総戸数 | - | ||
| 構造 | 木造 | 階建 | - | 
| 所在階/階数 | - | 号室 | 102号室 | 
| 面積 | 26.49㎡ /8.01坪 | 方位 | 指定なし | 
| 間取り | 1K (洋室:8) | ||
| 賃料 | 3.7万円/月
								
								 | 
							管理費 | - | 
| 礼金 | -
								
								 | 
							敷金 | 4万円
								
								 | 
						
| ほか初期費用 | - | その他諸費用 | - | 
| 更新料 | - | 火災(家財)保険 | 15,000円(家財2年) | 
| 共益費 | - | 町内費 | 350円 | 
| 駐車場 | 融雪駐車場無料 | バイク料金 | - | 
| 鍵交換費 | - | 清掃料 | - | 
| 更新事務手数料 | - | ||
| 保証区分 | 
								連帯保証人のみ | 
						||
| 保証会社 | 
							   区分:指定なし
							   
							  	 
							   
							   							    -  | 
							
						||
| 連帯保証人 | 
							   区分:要 -  | 
						||
| 仲介手数料 | 
								
																	40,700円
									 | 
							
						||
| 築年月 | 1998年4月(築27年) | ||
| 利用制限 | ペット:不可 | ||
| 学校区 | 関原小学校(942m)・関原中学校(616m) | ||
| 設備 | 閑静な住宅街、駐車場1台無料、バストイレ別、温水洗浄便座、エアコン、都市ガス、クロゼット、フローリング/バルコニー/駐車場あり/駐車場2台分可/融雪パイプあり/ウォークインクローゼット/都市ガス | ||
| 入居時期 | 即入居可 | ||
| 取引態様 | 仲介 | ||
| 備考 | - | ||
| 手数料負担割合/配分割合 | 貸主:-% 借主:-% / 元付:-% 客付:-% | ||
| 取り扱い会社 | 
								 青葉不動産 新潟県長岡市関原南1-4344  | 
						||
| 情報登録日 | 2024/02/20 | 次回更新予定日 | 2025/11/18 | 
| 
																		セブン-イレブン 長岡関原南店(コンビニ)まで550m 原信 関原店(スーパー)まで620m わきや医院(病院)まで440m  | 
																
																		大光銀行 関原支店(銀行)まで520m 長岡西郵便局(郵便局)まで280m  | 
															
※カメラのアイコンがある場合は、マウスをポイントするとその施設の画像がご覧いただけます。
| TEL: | 0258-46-6673 | |
|---|---|---|
| 所在地: | 新潟県長岡市関原南1-4344 | |
| 交通: | ||
| 営業時間: | 9:00~17:00/定休日:日曜・祭日 | |
| 免許番号: | 新潟県知事(8)2804号 | 
										
											 | 
								
| 所属団体名: | 新潟県宅地建物取引業協会 長岡支部 | |
| 取引態様: | 仲介 | |