物件掲載企業数:299|賃貸物件:2,844件|売買物件:3,239件|今週の登録物件:342
閲覧中のブラウザ(インターネットエクスプローラー)は非推奨ブラウザです。
物件が正しく表示されなかったり、正しく検索されない場合があります。最新のブラウザ(Google Chrome・Edgeなど)にてご利用お願いいたします。
  

新潟県長岡市関原南2丁目4305 アパート 2DK 4万円の物件情報

国道8号線付近 スーパーマーケット近く

物件名
所在地
面積
間取り
所在階
築年数
方位
賃料
管理費等
共益費
敷金
保証金
礼金
種別
構造
リバティー・ハイツ 
202号号室
新潟県長岡市関原南2丁目4305
46.84㎡
(14.16坪)
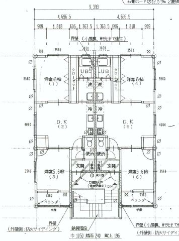
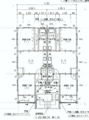
2DK
2階
27年
指定なし
4万円
なし
なし
1ヶ月
なし
なし
アパート・マンション・一戸建て
木造
  • リバティー・ハイツ 
    青葉不動産
  • この物件を問い合わせる/無料
  • TEL: 0258-46-6673

物件画像

外観 間取り
物件画像
※画像クリックで拡大表示
外観
物件画像
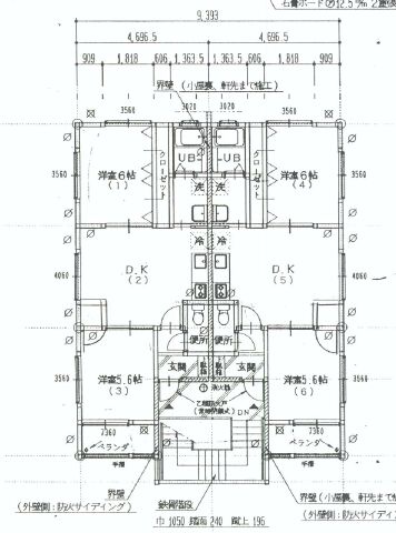
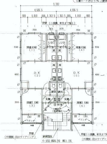
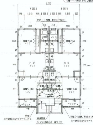
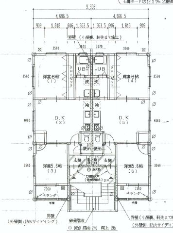
※画像クリックで拡大表示
平面図
詳細画像


物件概要

物件コード 00018-100006
物件名 リバティー・ハイツ 
交通 バス:関原南から徒歩7分
所在地 新潟県長岡市関原南2丁目4305
物件種別 アパート・マンション・一戸建て
総戸数 4戸
構造 木造 階建 地上2階建
所在階/階数 2階/2階 号室 202号号室
面積 46.84㎡ /14.16坪 方位 指定なし
間取り 2DK (洋室:6、5.6)
DK8畳
賃料 4万円/月
管理費 -
礼金 -
敷金 1ヶ月
ほか初期費用 - その他諸費用 -
更新料 - 火災(家財)保険 20,000円 (2年)
共益費 - 町内費 月300円
駐車場 融雪駐車場 1台無料 バイク料金 -
鍵交換費 - 清掃料 -
更新事務手数料 -
保証区分 連帯保証人のみ
保証会社 区分:指定なし
-
連帯保証人 区分:要
-
仲介手数料 44,000円
築年月 1999年3月(築27年)
利用制限 ペット:不可、事務所利用:不可
学校区 関原小学校(715m)・関原中学校(271m)
設備 閑静な住宅街、公園そば、駐車場1台無料、南向き、バストイレ別、追いだき機能付き、温水洗浄便座、暖房便座、洗面所独立、エアコン、都市ガス、バルコニー、全居室フローリング、クロゼット、シューズBOX、各居室照明、即入居可、礼金不要、エアコン、ベランダ、駐車場、融雪装置、トイレバス独立、シャワー便座、前面道路消雪パイプあり
入居時期 即入居可
取引態様 仲介
備考 融雪駐車場、シャワートイレ、追い炊き給湯設備、前面道路消雪パイプあり
手数料負担割合/配分割合 貸主:-%   借主:-% / 元付:50%   客付:50%  
取り扱い会社

青葉不動産

新潟県長岡市関原南1-4344

情報登録日 2025/06/22 次回更新予定日 2026/04/03
  • リバティー・ハイツ 
    青葉不動産
  • この物件を問い合わせる/無料
  • TEL: 0258-46-6673

この物件の地図・周辺情報・行政情報

この物件の周辺情報・行政情報を詳しく見る
【周辺情報】
物件の近くにあるコンビニや銀行・学校など、アイコン付のマップで詳しく表示できます!
【行政情報】
水道料や下水道料・ガス料金など、暮らしに関係のある情報を表示しています。
セブン-イレブン 長岡関原南店(コンビニ)まで470m
原信 関原店(スーパー)まで480m
ウエルシア長岡関原店 (調剤薬局)(ドラッグストア)まで560m
わきや医院(病院)まで170m
大光銀行 関原支店(銀行)まで550m
長岡西郵便局(郵便局)まで270m

※カメラのアイコンがある場合は、マウスをポイントするとその施設の画像がご覧いただけます。


担当取扱い店舗情報

取扱い店舗画像
青葉不動産
TEL: 0258-46-6673
所在地: 新潟県長岡市関原南1-4344
交通:
営業時間: 9:00~17:00/定休日:日曜・祭日
免許番号: 新潟県知事(8)2804号 この会社の情報を詳しく見る
所属団体名: 新潟県宅地建物取引業協会 長岡支部
取引態様: 仲介