物件掲載企業数:299|賃貸物件:3,617件|売買物件:3,316件|今週の登録物件:277
閲覧中のブラウザ(インターネットエクスプローラー)は非推奨ブラウザです。
物件が正しく表示されなかったり、正しく検索されない場合があります。最新のブラウザ(Google Chrome・Edgeなど)にてご利用お願いいたします。
  

長岡市四郎丸3-1-1 店舗 14.5万円の物件情報

店舗併用住宅です。悠久山通りに面した好立地

物件名
所在地
面積
間取り
所在階
築年数
方位
賃料
管理費等
共益費
敷金
保証金
礼金
種別
構造
四郎丸3丁目 『四郎丸3丁目ビル』
長岡市四郎丸3-1-1
118.65㎡
(35.89坪)
-
-
40年
-
14.5万円
なし
なし
2ヶ月
なし
なし
店舗
鉄骨
  • 四郎丸3丁目 『四郎丸3丁目ビル』
    ㈱スタッフサイトウ不動産部
  • この物件を問い合わせる/無料
  • TEL: 0258-24-0623

物件画像

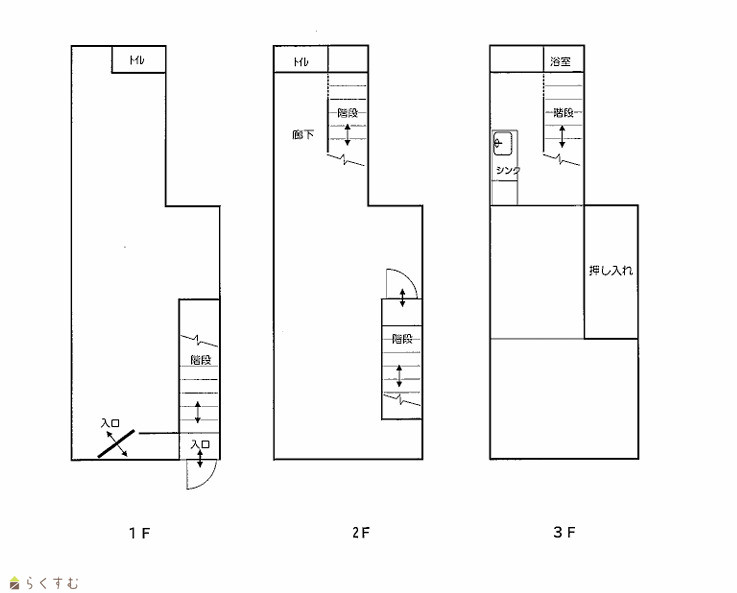
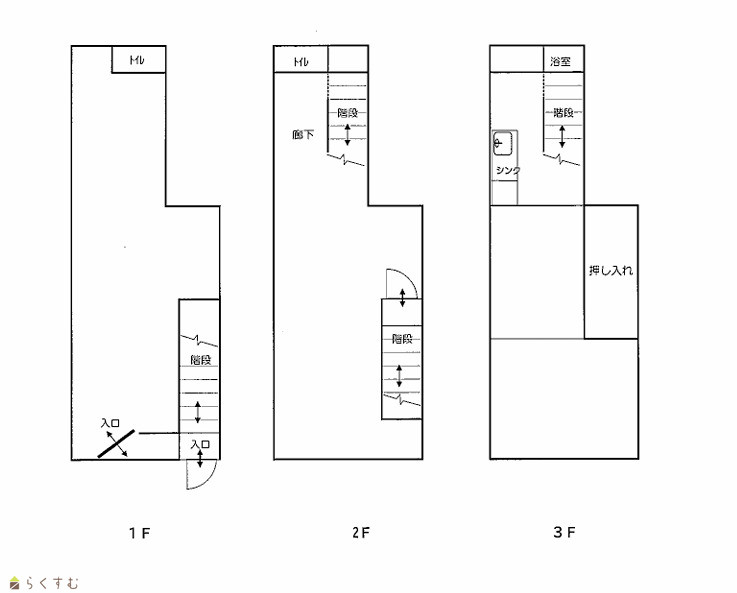
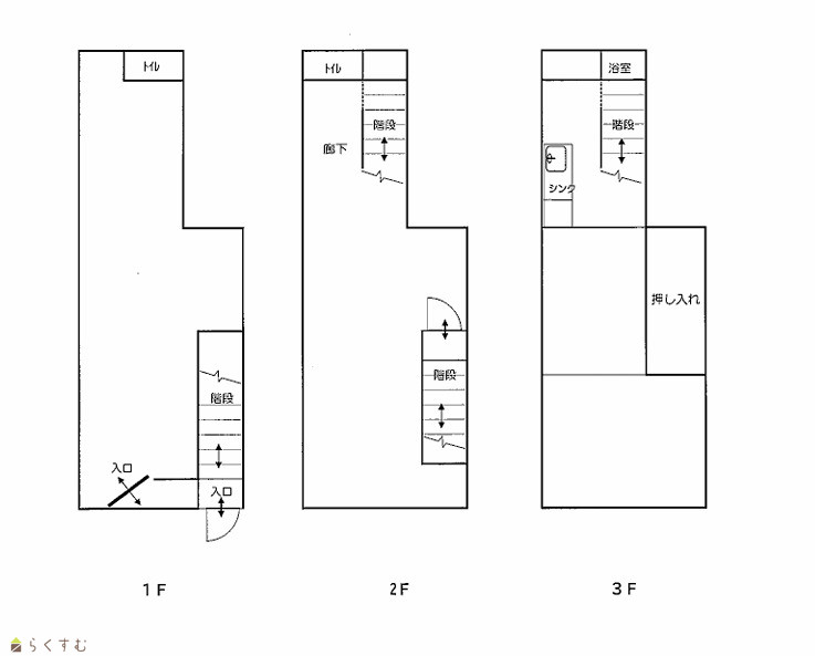
外観 間取り
物件画像
※画像クリックで拡大表示
外観
物件画像
※画像クリックで拡大表示
間取り
詳細画像


物件概要

屋上より長岡花火が見れます
物件コード 00011-100529
物件名 四郎丸3丁目 『四郎丸3丁目ビル』
交通 駅:信越線 長岡駅から徒歩12分、バス:学校町1丁目から徒歩2分
所在地 長岡市四郎丸3-1-1
物件種別 店舗
総戸数 -
構造 鉄骨 階建 地上3階建
所在階/階数 - 号室 -
面積 118.65㎡ /35.89坪 方位 -
間取り -
賃料 14.5万円/月
管理費 -
礼金 - 敷金 2ヶ月
ほか初期費用 - その他諸費用 -
更新料 - 火災(家財)保険 -
共益費 - 町内費 -
駐車場 - バイク料金 -
鍵交換費 - 清掃料 -
更新事務手数料 -
保証区分 保証会社+緊急連絡先
保証会社 区分:加入要
保証会社名:その他 (Jリース)
-
連帯保証人 区分:不要
-
仲介手数料 159,500円
築年月 1985年3月(築40年)
利用制限 ペット:不可、楽器:不可
学校区 四郎丸小学校(276m)・南中学校(963m)
設備 2階以上、エアコン、給湯
入居時期 即入居可
取引態様 仲介
備考 全館内装工事済です。
手数料負担割合/配分割合 貸主:-%   借主:100% / 元付:50%   客付:50%  
取り扱い会社

㈱スタッフサイトウ不動産部

新潟県長岡市蔵王2丁目4番17号

情報登録日 2025/07/30 次回更新予定日 2025/11/02
  • 四郎丸3丁目 『四郎丸3丁目ビル』
    ㈱スタッフサイトウ不動産部
  • この物件を問い合わせる/無料
  • TEL: 0258-24-0623

この物件の地図・周辺情報・行政情報

この物件の周辺情報・行政情報を詳しく見る
【周辺情報】
物件の近くにあるコンビニや銀行・学校など、アイコン付のマップで詳しく表示できます!
【行政情報】
水道料や下水道料・ガス料金など、暮らしに関係のある情報を表示しています。
マルイ 長岡学校町店(スーパー)まで410m
セブン銀行ATM(銀行)まで690m
長岡四郎丸郵便局(郵便局)まで100m

※カメラのアイコンがある場合は、マウスをポイントするとその施設の画像がご覧いただけます。


担当取扱い店舗情報

取扱い店舗画像
㈱スタッフサイトウ不動産部
TEL: 0258-24-0623
所在地: 新潟県長岡市蔵王2丁目4番17号
交通: JR北長岡駅
営業時間: 8:30~17:30/定休日:第2・4土曜・日曜・祭日
免許番号: 新潟県知事(2)第5364号 この会社の情報を詳しく見る
所属団体名: 新潟県宅地建物取引業協会 長岡支部
取引態様: 仲介
ホームページ: http://hokuetsu-fudousan.com